荔园外国语小学(景田)位于深圳市中心福田区核心地带,周围楼宇密布。我们的原始场地是一片茂密树林,相触的树冠像是连绵的伞盖。四十多年前,这片土地的周边区域叫做“猫颈田”,是基建工程兵来到深圳经济特区的驻扎营地,布满了连排铺开的工棚。随着城市的发展,工棚陆续迁移,这里便被用来堆置土方。如今,土方上人工种植的垂叶榕已长至二十多米高,成为城市中心一片难得的绿洲,树林下这片真实的土壤也得以留存。方案提出最大化保留场地原有树林和地形的策略,尝试以垂直立体校园的方式探索高密度城市空间背景下,新校园建筑类型的建构与空间创新。
在我们看来,这片树林贮存着深圳几十年城市化进程的历史记忆。从某种意义上来讲,一定程度上保护住这片树林和地形,将有益于实现城市空间发展的连续性。同时,我们相信,拥有这片“小森林”的校园将成为一个具备独特品质的教育场所。树林和真实土壤、阳光、风和四季等自然元素能够在这里被切实而生动地感知,这些都将成为学生们童年学习生活中具体而美好的记忆。
在设计开始阶段,我们面临的挑战是如何在南北高差近5米,面积有限且榕树密布的场地内完成一所36班小学的设计任务。为了最大化保留这片“小森林”,传统小学设计中的梳型平面格局不再适用。经过一系列对比推敲,我们最终选择了占地面积最小的垂直集中型建筑体量——往往占据场地中心的主体建筑变成了围合场地的“界墙”,校园中心区域让位给树林。
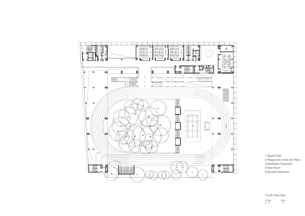
垂直运动场地系统将传统校园中的大尺度的体育空间分散布置于屋顶和半地下。运动跑道被架起,仅有结构部件落地。跑道与“小森林”相互嵌套,学生将奔跑于成片的树冠之下。
我们希望这个建筑能够充分适应深圳当地的气候条件,呈现出一种南方特有的气质。因此,我们在集约型建筑的体量里设置了一系列具备相当尺度的半户外公共平台,它提供了完善的避雨、防晒、通风等功能,成为承载校园公共生活的重要场所。
半户外平台系统在校园多个位置与跑道相连,跑道上的师生能够透过平台上的开口看向城市街道,街道上的人们又能抬头望向校园内的“小森林”。校园内,水平向设置的公共平台、跑道、连廊与垂直向分布的体育、交通空间系统相互连接,构成一套完整的立体户外活动空间系统。
在建筑的南、东、西三个方向立面上,我们设置了一层外挂预制混凝土遮阳板。外遮阳能够有效抵御深圳当地的强烈日照对教室所产生的热辐射,也能避免高太阳高度角直射光进入教室形成眩光,在保障景观视野的同时,也为师生创造出柔和的自然光环境。
我们相信,空间也是教育的一种重要方式。这所拥有一片“小森林”的校园,将会成为孩子们在这里学习、生活的情感寄托,也将为福田区的城市发展留下一片重要的空间印记。
项目图纸
△模型图
△设计草图
△设计草图
△总平面图
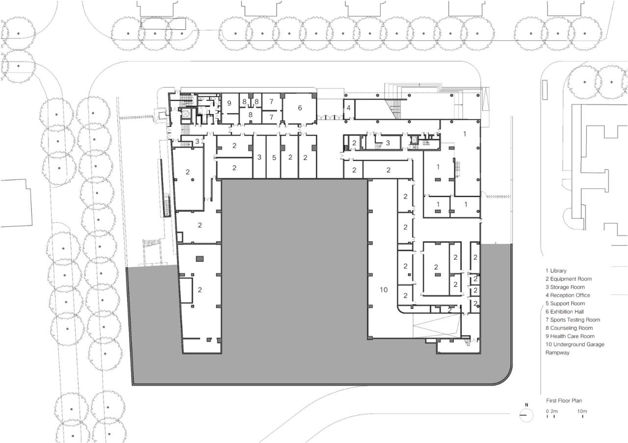
△一层平面图
△二层平面图
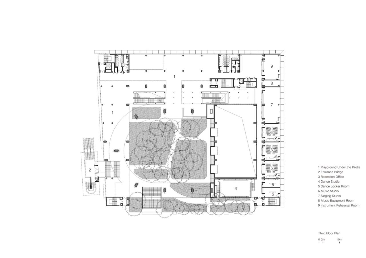
△三层平面图
△四层平面图
△五层平面图
△六层平面图
△七层平面图
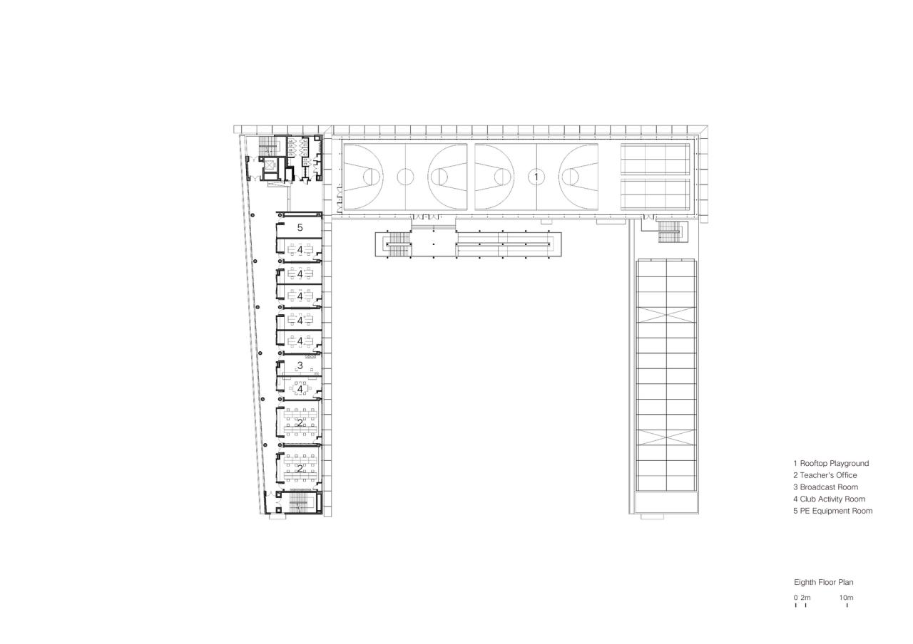
△八层平面图
△九层平面图
△屋顶平面图
△剖面图
△剖面图
△细部结构大样图
项目信息
建筑师: 直向建筑
面积: 29061 m²
项目年份: 2023
摄影师:罗灿辉, 张钦泉, 陈颢, Arch-Exist, DONG Image
主持建筑师: 董功
项目建筑师: 冯超颖、陈周杰
施工管理: 赵亮亮、李锦腾
驻场建筑师: 赵可、黄天植、黄雄深、张杰、程洋
项目成员: 陈功、陶巍、赵亮亮、马小凯、管世鹏、高雨滴、赖建希、李想、刘世达、艾心、覃琛
合作设计院: 深圳市华阳国际工程设计股份有限公司, 合作设计院总建筑师:龙玉峰;合作设计院项目建筑师:谌贻涛;合作设计院建筑师:梁茵、熊玮、林兴、李鹏程;结构设计:徐宇鸣、吴亚平、肖政健、刘名;机电设计:陈娟、张晶、周天养、谢振、宋靖、钟展文、雷亚雄、苏东坡、王会兵、林佩怡、王业铭、李贝贝;室内设计:李建华、谢吉龙;绿建设计:林子滔;景观设计:陈欢敏、叶向前、施惠霞
项目工程施工管理团队: 郑攀登、廖明宇、陈福广、童金宝、刘玉忠、胡炜、郑立旋、古培钦、王欣杰、宁平贵、范云卓
业主: 深圳市福田区教育局、深圳市福田区工务署
竞赛学术策划、监督与组织方: 深圳市规划与国土资源委员会福田管理局、福田新校园行动计划组委会
声学顾问: 黄展春剧场建筑设计顾问(北京)有限公司
幕墙设计: 深圳市盈科幕墙设计咨询有限公司
标识设计: 上谷创意设计(深圳)有限公司
采光顾问: 清华大学建筑学院张昕工作室
代建单位: 深圳市华阳国际工程设计股份有限公司
施工方: 深圳市华晟建设集团股份有限公司
地点: 深圳

BIM建筑网












































