仙林学校[1]是对“普通学校”的一次探讨。虽然关于普通教育(Общеобразовательная)[2]的系统早在建国后就从苏联引入,但考虑到当时的国情,中央下放教育事业管理权,区域内中小学由地方负责投入,直到1985年义务教育才转变为以国家财政性投入为主;次年,我们才正式进入“普九”的重要阶段。因此,在相当长一段时间内,学校的建设标准是以各个省份的标准设计室或建筑院校提供的学校图集作为参照。
“普通”(generality)关注点落在了经济性建造和关于教室单元的采光、通风、噪音、温控等基本物理性能的讨论。其背后既是应对在经济困难、机电匮乏时期的大班化教学的刚需,也是朴实地回应学生在青少年时期的生理成长和心理安全的需求。同时,因学校整体规模较小,尺度适中,建筑大多围绕操场线性布置,学生课间活动与场地的关系也就相对紧密。这种关系在大量的集体照中被记录下来,形成了那个时期的一种集体记忆。
之后,在1986年推出的《中小学建筑设计规范》,与“普通”挂钩的基本性能被纳入到规范中,设计的关注点开始慢慢转向形式的讨论,这在同期出版的一系列关于学校的竞赛和优秀选集中亦是清晰可见。到1994年分税制实行后,土地财政模式主导了新区开发,推动了快速的城市化,农村人口大量流入城市。随后在90年代末农村入学适龄儿童减少,导致了当地撤点并校的政策,到2001年撤点并校也正式成为全国范围内的政策,在优化教育资源配置的原则下,也变相推动了学校规模的扩大化,重点学校、巨型学校开始站上舞台。
△90年代后大型学校的卫星影像图
△1956-1994年各省标准设计工作室的学校平面
而“普通学校”则陷入乏善可陈的困境,作为伴随新区开发的基础性教育配套,它也成为了平庸图景中的一部分,就其集约用地、师生配比、班级规模,以及综合造价而言,它最终是一个经济测算的结果。规范作为提供基本物理性能的保障,同时也暗示着按部就班、大同小异的设计结果。所谓的独特性,大多不在里子,而在一种如画的面子[3];其愈是试图抵抗平庸的图景,愈是加剧了现状。“普通”与经济性的挂钩,由原先的物理建造,演变为如今可考核的指标。普遍通用(general)渐渐的滑向了一般的、广泛的、无差别化的(generic)生产。
因此,仙林学校尝试重新考察“普通学校”的可能——“普通”在抽象化的同时,是否还暗含着一种具体化的胜任。它瞄准的是一系列与经济性相关的问题——大容量教学模式与大体量的化解,校舍操场的布局模式与僵化的间距控制,教室单元与结构单跨规范限制,公共空间的比例与混合分区,结构预制率与管线综合,采光通风与运营能耗,学生心理安全与活动便利性,上下学接送对周边社区的交通压力与社区开放分享的衔接等等。这些诸多问题隐匿在了一种标准容积率的暗示中,所以它也有一个代号“FAR= 1.0”。
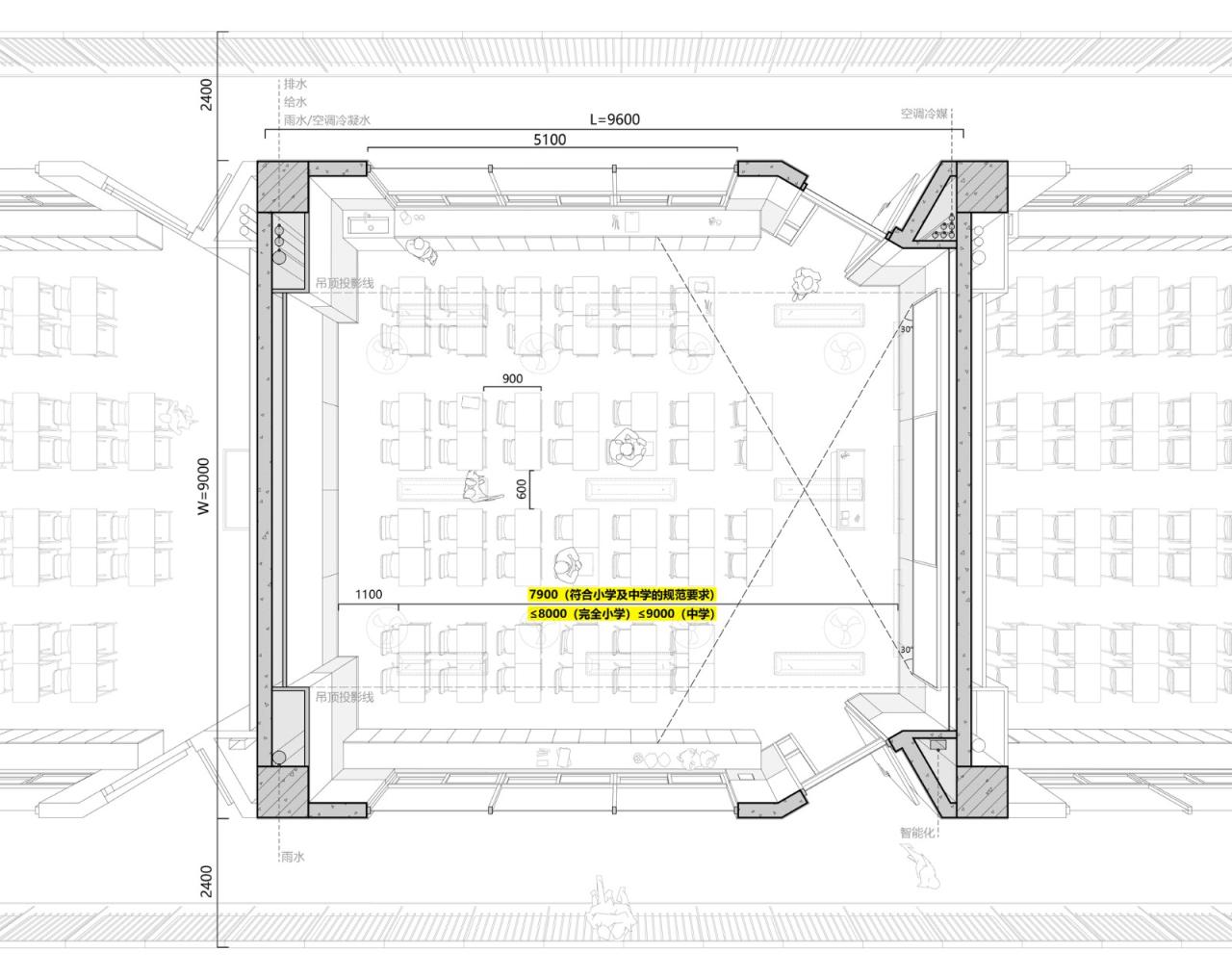
然而化解策略不在改弦易张,而与规范的重新调和,回到制定这些物理条件的本身——也就是在维持大规模化、大班教育的前提下,如何更新“普通学校”的基本性能。比如南北双廊带来更稳定的双向均匀采光,大部分时间利用自然光就可以达到室内教学的照度要求;对称门窗的布置具备良好自然通风,也带来更稳定的内部布局,更良好的课桌与黑板的视线关系以及日常的收纳储藏;40m宽的空中内院(multi-datum)[4] 不仅为学生在课间提供了充沛的活动场地,也有效地降低了前后排教室之间噪音干扰。
遇上气候宜人的季节,门户大开的课堂里的琅琅书声亦是一景。材料和机电的使用既考虑其通用性便于日常维护,也尽量避免装饰面在系统层面的使用,以降低造价。比如采用独立竖向管井,安置空调外机于屋顶或地面,隐蔽桥架于室内吊顶,预埋灯光于叠合楼板,结合栏杆和廊柱设置排水系统。
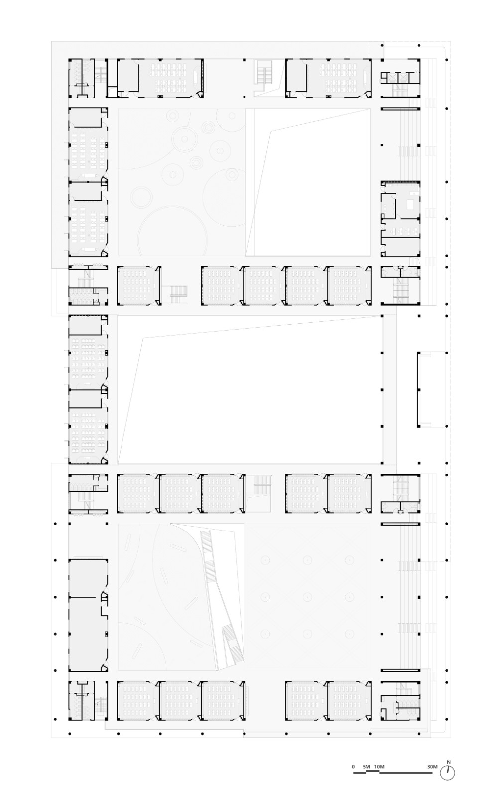
而模数8.4m×9.6m的轴网,一方面回应了与上下学接送的地库需求,以降低周边已有学校带来的交通压力,另一方面也实现了中小学教学单元在视距上的通用性,同时一些留白单元也考虑将来教室的扩容。通过这些基本性能的微调,最终形成仙林学校多维叠合的平面:3至5层为教学区,1至2层为公共功能,-1层为接送及设备区。
内外廊两种尺度,前者照应了曾经普通学校的那些操场紧邻校舍的集体记忆;后者双层挑空,结合内部实现局部双跨以应对抗震要求的四个立面程度不同,而在看台部分配合视线抽柱挑梁,却是对于周边环绕百米住宅的超街区一种城市性回应。两种尺度的配合意在即维系它的体量,但又让它变得透明。
仙林学校如今已临时作为小学二年级部投入使用一年,原来构架预留下来的空白单元,因生源压力也逐步被填充上了普通教室。这样的变化是在意料之外,但也在情理之中。虽然二年级的小学生在这个规模的尺度下显得有些人小鬼大,但当我们记录下这些使用的场景——无论是课时门窗大开教室里的诵读,课间内院里的奔跑,午饭时食堂的熙攘,还是体育课前在檐廊下享受微风,傍晚操场的各类体育社团活动,放学时在接送大厅鸟兽散状的一哄而散;他们嬉戏玩耍的状态赋予了这些空间另一种活力,也都让我们真实地感受建筑的承受力和堪用。
仙林学校所引发的关于“普通学校”的探讨,并非是简单地出于对经济性所塑造的庸常生活的批判,也许更多的是提供另一种选择——当我们身处看似无特性的大众生活里,是否还有一种相对西方诗意(poiēsis)更延绵的可能,一种平淡中见新意的契机。
注释:
[1] 仙林学校:仙林湖北部中学,按39轨加6(预留)的初中规划设计,现临时作为金陵小学(仙林湖校区)二年级部使用,文中简称“仙林学校”。
[2] Общеобразовательная“普通教育”:苏联采用的普及教育原则最早可以追溯到1903年俄罗斯社会民主工党第二次代表大会上宣布的《俄国社会民主工党纲领》,提出“对16岁以下的男女儿童实行普遍免费义务教育”。由于国际局势的影响与经济水平的制约,至1930年左右,儿童普及初等教育才在苏联开始全面实施,期间公共教育事业取得了重大进展。1949年12月23日至31日,新中国召开了第一次全国教育工作会议,提出新中国教育应以“老解放区新教育经验为基础,吸收旧教育有用经验,借助苏联经验,建设新民主主义教育”。新中国早期的普及教育体系与教育理念大量借鉴了苏联经验,与此同时,众多苏联的学校设计理论与设计案例著作被译为中文版本,成为当时建筑行业从业者学习与研究的重要资料。
[3] 如画的面子:picturesque“如畫美景”:“庫:对,我們所参照的正是這類的景觀美學。因爲只有這種方式才能解釋現在的中國之美,這种根本無法相容的元素恐怖地並列的情况。”夏斯藍,馮斯瓦. (2003). 庫哈斯談庫哈斯-兩場對談及其他. 林宜萱, 译. 田园城市,p. 134.
[4] multi-datum: "A second aspect of the Domino diagram which can becalled self-referential is the horizontal datum. The notion of a datum in the traditional architectural sense is not modernist but an attitude to the vertical plane which seems to have originated in the 16th century, ”Eisenman, P. (2014). Aspects of Modernism: Maison Dom-ino and the Self-Referential Sign. Log, 30, 139-151.
项目图纸
△设计草图
△模型图
△模型图
△总平面图
△一层平面图
△二层平面图
△三层平面图
△地下一层平面图
△剖面图
△剖面图
△分析图
△重叠VS强排
△剖面序列
△大班教室单元规范图集
△仙林学校教室单元
△采光分析
△通风分析
△噪声研究
△多维平面
△分析图
项目信息
建筑师: 雁飞建筑事务所
面积: 61749 m²
项目年份: 2022
摄影师:苏圣亮, 雁飞建筑事务所, 陈颢
厂家: CIMIC, Fusite, Weichang Aluminum
主持建筑师: 水雁飞
项目建筑师: 王浩丞
设计团队: 邹拥君、徐翰骅、宋菁菁、李格格、周谷阳、叶莹、石明雨、敖斐、卿思远(驻场)、胡馨予、简仕翰、谭佳琪、李文伟、李豪、吕远、陈圳杰、Jae Sok Surh、高钧怡、张伊佳、周简、张硕桐、毛宇俊、魏铭路、孙晶、邓钧文(实习)、宋雨琦(实习)、马晨钟(实习)、姜天一蓝(实习)、卢镛汀(实习)、范家玮(实习)
研究团队: 李格格、王溱、左壮壮、王浩丞、邹拥君、裘怡霖、陈圳杰、张翔、李豪、丁凯怡(实习)
结构顾问: 和作结构建筑研究所, 张准-和作结构建筑研究所
项目类型: 教育建筑
建设单位: 南京市仙林大学城管理委员会、南京仙林开发投资集团有限公司
代建单位: 南京城市建设管理集团有限公司
合作设计院: 南京长江都市建筑设计股份有限公司
施工方: 中国建筑第八工程局有限公司
地点: 南京市


BIM建筑网




















































