“将一所废弃小学改造成一座托老所,是低生育率和人口老龄化大背景下的一种功能置换策略。我们希望通过空间改造,为96位海岛留守老人塑造属于他们的精神家园,唤醒他们沉淀在时光中的温馨回忆。”——孟凡浩
在舟山群岛的怀抱中,柴山岛如同一颗被时光遗忘的珍珠。这个曾经渔业繁荣的渔村,见证了数百艘渔船满载而归的盛景。而随着渔业资源保护,过度捕捞的时代已经过去,年轻一代纷纷离岛寻找新的机遇,这里逐渐沦为了一座“孤岛”。岛上仅存的96位老人,成了这片土地最后的守望者。
△ 柴山岛风貌 图源:《梦想改造家》
随着人口向城市外迁,乡村日渐凋敝,留守老人的养老问题也日益凸显。在老龄化趋势加剧的背景下,乡村养老服务成为治理的当务之急。为解决岛上老人的医养护理需求,line+联合创始人、主持建筑师孟凡浩受舟山市普陀区白沙管委会委托,将一所小学,设计改造成一座托老所。作为line+的首个公益项目,我们期冀这座托老所能成为海岛的一盏明灯,驱散老人的孤独,为他们提供一个兼具公共社交与医养功能的养老家园,让老人们能够安享晚年。
与传统乡村振兴侧重于文旅开发不同,line+以柴山岛留守老人的人文关怀为导向,帮助老人就地养老,为乡村注入生机和活力。通过创造一个拥有共享性公共空间、和谐宜居的生活环境,让他们在宁静中重拾温馨记忆,将托老所打造成连接老人与社区的桥梁,回应在乡村提供公共性养老基础服务的课题探索。
△ 柴山岛鸟瞰 图源:《梦想改造家》视频截图
01 现状及限制
柴山岛隶属舟山普陀区白沙乡,是一座陆域面积 0.88 平公里的悬水小岛。原有建筑地处柴山岛中心区位,是全岛屈指可数的几个公共建筑之一。场地是一栋始建于20年前的小学,并于4年前改造成为临时养老院,因为设施简陋,很少有老人愿意入住。
△ 托老所改造前
经由前期调研,团队对场地的现存问题予以了梳理。地形因素致使场地内外高差显著;公共区域狭促,难以契合活动需求;老人居室南向为公共走廊,加剧光照匮乏与潮湿之弊端。上述缺陷致使养老院的实际使用价值低下,不利于老人居住。因此,改造所需要解决的不单单在于建筑物的修缮,更在于空间的重构。
△ 现状问题分析
在改造施工过程中,团队面临诸多挑战。柴山岛每日航运次数有限,建筑废料无法及时移至填埋场,只得暂时在岛上空余之处堆积。同时,运输水泥、沙石和钢筋等建材也是棘手难题。岛上道路狭窄且老旧,三千多吨建筑材料只能通过施工队伍分批次小规模运送至现场。
为解决这一问题,我们与业主团队一起讨论,决定修建一条贯通至码头的环形道路。同时,结合未来岛屿的综合开发计划,连接山顶与各区域。所有材料首先集中运抵山顶,再逐步向下配送至指定位置。
02 记忆的回溯
柴山岛自然原始,小居古朴,环抱于山与海之间。设计初始,孟凡浩与团队深入岛中,与岛上的老人们紧密交流,了解他们的真实需求,倾听他们的故事。在实地考察中,得知这些老人大部分都是渔民,靠海吃海。回忆往昔,那段青春壮年的时光依旧历历在目。想到过去,如今这些眼神黯淡的老人们,双眼重新焕发神采。
△ 倾听留守老人的需求图源:《梦想改造家》视频截图
托老所设计灵感源自渔船,其端部形体底面经曲面处理和悬挑,使整体形象更为鲜明,宛如一艘“漂浮”于岛上的船只。以此触动老人的情绪与感知体验,唤醒老人的青春记忆,且以建筑为媒介传递柴山岛的故事。
△ 生成分析
△ 模型照
03 公共空间最大化,立体化
改造前托老所住有4位老人,其余岛上老人则居家养老。随着老年人的生活半径会随着年龄的增加逐步缩小,老人更需要聚集性公共空间满足日常、文化和社会交往需求。改造旨在帮助老人与社会建立联系纽带,减少他们的孤独感。
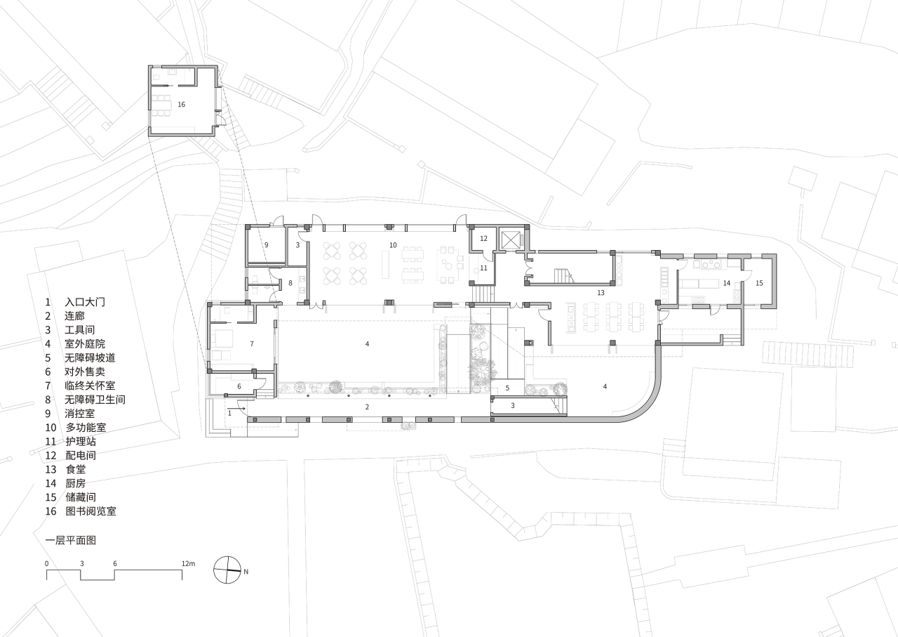
因为用地面积狭小,我们将首层空间全部用于公共空间,临终关怀室、共享食堂、厨房、多功能厅等,开放给岛上所有居民,二层则是养老居住空间。
△ 1F平面改造前后对比
设置多层屋顶露台,以一条坡道串联首层院落与所有露台,用花池和座椅区隔动线与空间,为老人提供充足的户外活动和停留空间,实现狭小用地下的公共空间最大化和立体化。
流线重组
原托老所依山而建,所占的东西两块台地间有1.2米的高差。若仅抬高西侧地基,从场地外部进入院落内的高差达到近两米,对老人不便。因此,我们保留原台地,将西侧地势低的台地与外部道路相连,确保通行无阻。
△ 改造前院落空间
原院落虽开敞但空间利用率低。为了塑造新的空间层次,我们改变入口位置,优化动线,使用一条连廊将人流引导至中间一层院落空间再进入室内,串联托老所的外部与内部。
开放庭院与多功能厅的边界,在保留院子完整性的同时,增大了户外公共区域与室内的联动性。实现主院落室内外的景观互动,增强托老所的社交性。
厨房与食堂的联动
在一层东侧,我们将场地周边的一栋民居纳入到整体改造范围中,将其与主体建筑连接,共同构建成了一个宽敞明亮的共享食堂和厨房。这一改造不仅为老人们提供了一个更高质量的用餐空间,更是成为了一个活动交流的多功能空间。
△ 改造前餐厅内部空间
屋顶视野创造
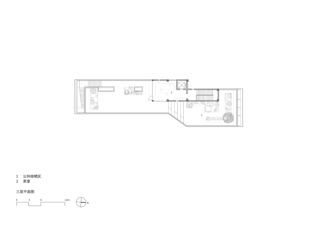
屋顶空间改造加强托老所与岛屿景观联系,拓宽老人视野。屋顶花园预留了天窗,增强二层卫生间的采光,最大限度地增加了光线进入建筑的方式。
围绕天窗还建造了座椅、菜园等景观空间。同时,增设视野开阔的屋顶茶室,丰富了屋顶的活动性和功能性。宽敞明亮的窗户将小岛风景揽入茶室,提供给老人一个自然雅致的休憩交流空间。
对屋面的空间释放,放大了景观势能,扩大实际使用面积。让老人从屋顶视角眺望岛屿和大海,增添慰藉。
04 医养空间的蜕变
针对建筑空间布局不均、功能兼容性差的问题,我们通过区域划分,实现小空间多功能融合,优化医养空间布局。
△ 爆炸分析图
居住区的重塑
二层原为居住空间,改造前,走廊位于建筑朝阳面,对老人卧室的采光有较大影响。基于此,我们将走廊、楼梯等辅助动线调整至建筑背阴面,而将向阳面留给老人居住,以提供更好的光照,通风和视野。
△ 2F平面改造前后对比
△ 改造前老人卧室
△ 窗套体系轴测图
原本二层有连接东西建筑的高差区域,不便于老人通行。从而加入一个公共空间,将东西两边标高不同的卧室区分隔开,用无障碍坡道连接。还增设了书吧这类多样化休息、交流空间。书吧将室内空间室外化,让出行不便的老人也能亲近自然,享受岛屿风光。
△ 改造前建筑内部高差区域
适老化提升
安全性是适老化设计的关键,改造目标为打造有适老化细节的建筑空间。原建筑内由于高低地势而建造的陡峭台阶对于养老居住并不合理。因此,改造时移动楼梯间至场地中心,并配置一台可达屋面层的电梯联系各个空间,垂直交通动线的方式解决了老人上下楼的问题。
同时,将室内外全部楼梯踏步放宽改缓,增加扶手适合老人缓步而行。在整体空间中全部采用无障碍通道相连,提高场地的通达性。设置间隔性的座椅辅助于长距离走廊,辅助行动不便老人休息。
△ 改造前内部空间
在老人卧室中强化了适老性细节,更新了专业的护理床和呼救设备提升护老便捷性,并将家具的边角都经过了处理,减少了尖锐的边缘和角落。
原卫生间空间狭小,不满足无障碍设计规范1.5m的轮椅回转空间,因此整改了布局,提高室内无障碍设施的合规性。同时消除卧室与卫生间之间的地面高差,将光面地砖替换为防滑耐摔的水磨石材质,提升了内部空间使用的安全性。
△ 改造前卫生间
05 色彩与在地材料的延续
我们尊重岛上的场地记忆和村落肌理,为了更好的将建筑融入环境,使用在地元素作为色彩与材料运用的依据。
△ 柴山岛民居立面风貌
红与蓝缘起于渔民为船只涂上新漆之后,总将剩余的颜料涂于自家门窗上,这些色彩凝聚成了特有的居民立面印记。我们将红色和蓝色使用在二层卧室的外部立面以及内部窗台上,也以彩漆木板的形式穿插于交通空间和户外坡道上。鲜明的色彩帮助老人清晰定位空间,区别场地内不同地点。
建筑主体材料选用了水洗石涂料,以其独特的颗粒感赋予建筑表面丰富的肌理效果,显著提升了建筑的质感。入口围墙应用岛上常用的毛石材料,连廊采用钢柱,形成轻与重的对比。丰富托老所的材料层次,呼应在地建筑氛围。
△ 墙身大样
此外,周围老房子中常常将渔网作为入口或者围栏的隔档材料。我们提取这一元素,将连廊和顶层眺望灯塔的防护网的质地仿照渔网样式呈现,赋予材料新的表现力。
06 结语
柴山岛的老人们与海相依,生于海边、养于海边,也许就是他们最朴实的愿望。深知这份期盼与需求,line+怀着对乡村激活和振兴的关注,投身于这个公益性托老所项目。我们渴盼能让更多人留意到这些弱势群体的生活景况,期冀将其打造成契合养老需求且独具在地特色的空间,为留守老人送上温暖与关怀。
此次项目,不仅是乡村改造设计上的一次探索与实践,更是心灵的一场深深触动与传递。我们联动各行业的精英团队,共同为柴山岛的未来助力。在此,我们衷心感谢所有参与此项目的团队与赞助品牌,正因有你们,柴山岛的浮船之梦得以更臻圆满,孤岛不孤。
项目模型照
项目图纸
△ 总平面图
△ 一层平面图
△ 二层平面图
△ 三层平面图
△四层平面图
△剖面图
项目信息
项目信息项目名称:白沙港村托老所
建筑、室内、景观设计:line+建筑事务所
主持建筑师/项目主创:孟凡浩
项目建筑师:何雅量
设计团队:徐一凡、胥昊、王炯皓(实习)(建筑),金煜庭、范笑笑、叶鑫、徐以唱、金凯迪、张玮轩(实习)、陈寒熙(实习)(室内),李上阳、金剑波、饶非儿、苏陈娟(景观)
驻场设计师:徐一凡、徐以唱、叶鑫
业主:舟山市普陀区白沙岛管委会
项目策划:朱晓鸣、赵利军
节目合作方:上海东方卫视梦想改造家
施工图合作单位:三峡大学建筑设计研究院
施工总包单位:浙江昌屹建设有限公司
现场施工总协调:赵利军
导视设计:M.TP 104
项目位置:浙江舟山,柴山岛
建筑面积:799㎡
设计周期:2023/6-2023/9
建设周期:2023/9-2024/5
结构:钢筋混凝土框架结构
材料:混凝土、钢材、水洗石涂料、肌理涂料、哑光不锈钢、木纤维板、毛石
摄影:存在建筑-建筑摄影、line+
感谢赞助品牌
外立面水洗石:特丽宇
外立面木纤维板:克姆伍德
门窗:墅标门窗
室内涂料:立邦涂料
室内厨电:林内
室内木作:墅湃家居
瓷砖地砖:东鹏瓷砖
灯光灯具:企一照明
空调地暖:约克空调
卫浴:恒洁卫浴
水磨石,岩板:东星
室外座椅:宁波禾隆新材料

BIM建筑网


















































































