在设计过程中,我们与客户 Dharohar 密切合作,这是一个非盈利组织,旨在实现乌代布尔第三空间的愿景——这是乌代布尔的第一个学习和文化中心。我们的目标是超越家庭或学校,创建一个可达、开放和包容的场所。
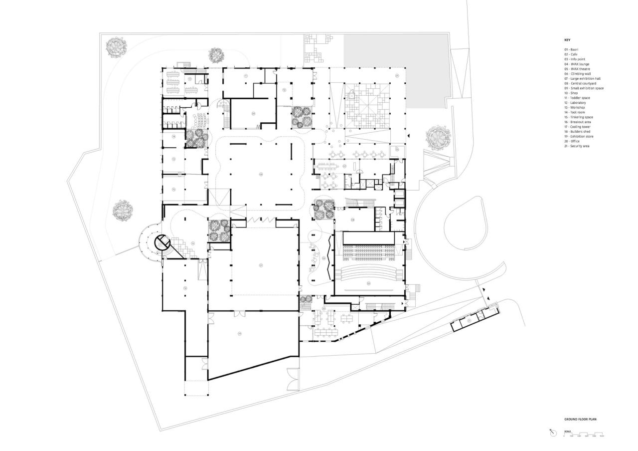
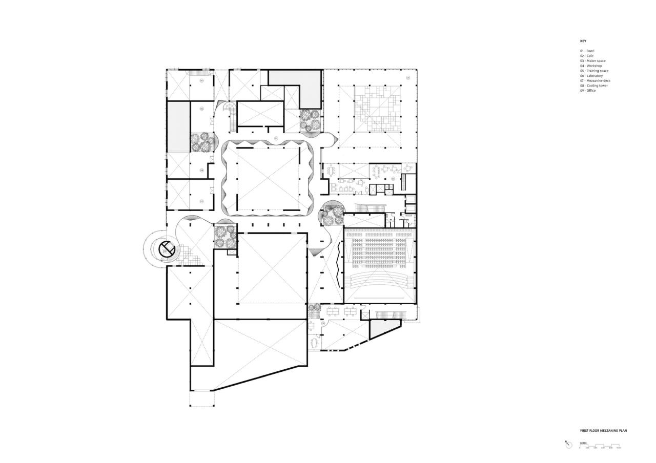
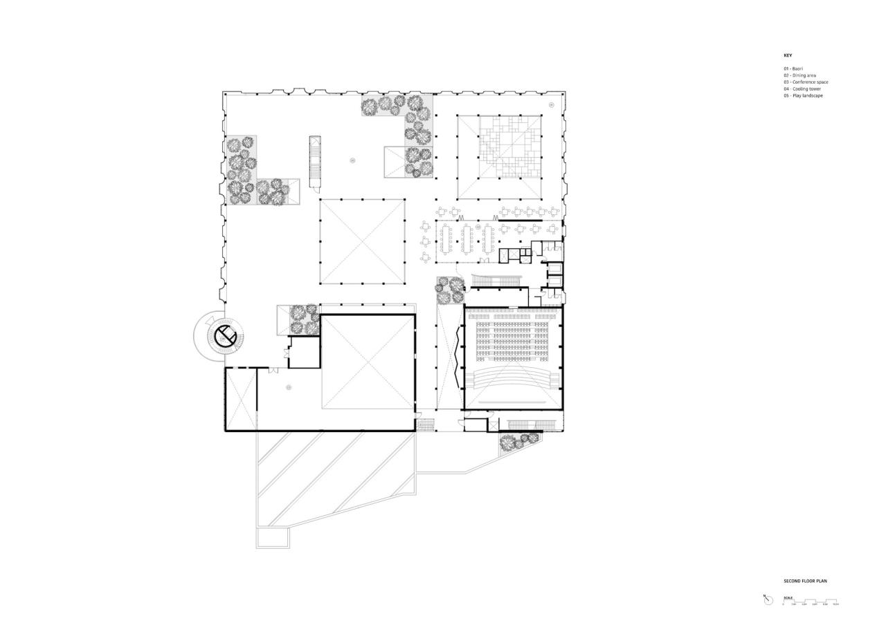
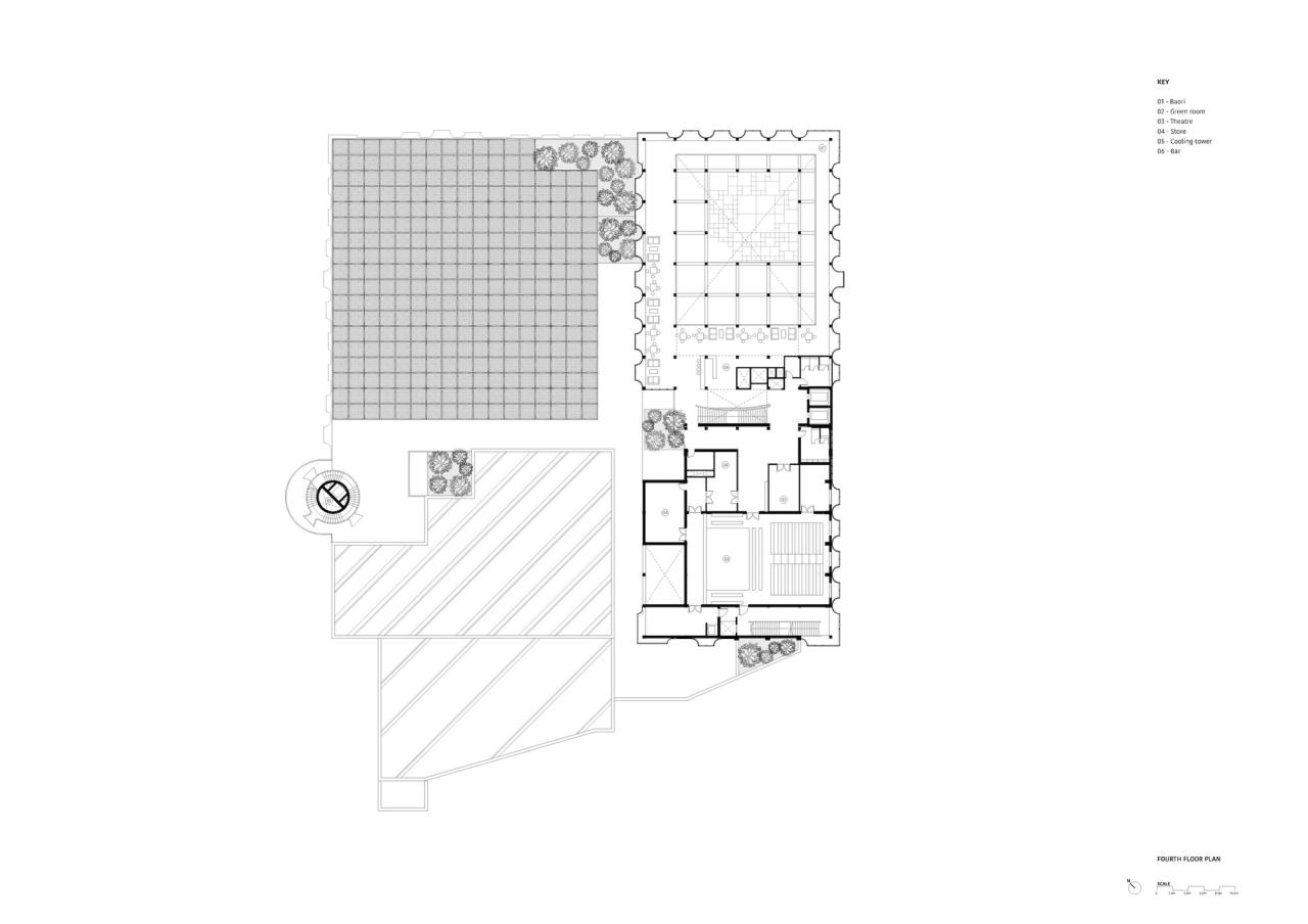
第三空间被设计为一个可以培养终身学习者的目的地,人们可以聚集在一起创造有意义的联系,获得新的体验,或者追求长期爱好。一个主要挑战是容纳多样化的用途:它不仅仅是一个博物馆,一个创客空间,一个电影院或者表演空间、攀岩墙,甚至更多功能。为了满足这些需求,我们围绕一个环绕中央庭院的风车形回廊布局了主要功能。
最大的挑战是将多项活动整合到一个连贯的空间中。为了克服这一难题,我们决定将主要的社区活动置于中央庭院。同时,入口、走廊和庭院等经常被建筑设计所忽视的空间被设计成为灵活的空间,用于表演和社区聚会,使所有活动都能在同一个屋檐下举行。
最大的挑战是将多项活动整合到一个连贯的空间中。为了克服这一难题,我们决定将主要的社区活动置于中央庭院。同时,入口、走廊和庭院等经常被建筑设计所忽视的空间被设计成为灵活的空间,用于表演和社区聚会,使所有活动都能在同一个屋檐下举行。
最后,为了确保“第三空间”能够尽可能地满足多种用途,我们借鉴了克里斯托弗·亚历山大(Christopher Alexander)在《建筑模式语言》中提出的“模式”,这些模式有助于为整个体验带来秩序。
在建造“第三空间”时,我们专注于使用能够适应该地区恶劣气候条件的当地材料,并有助于减少运输过程中的碳排放。砌体墙由附近矿山的废弃大理石碎石和石灰砂浆构成,而大理石粉尘——一种大理石开采和加工行业的副产品——被用作混凝土的替代水泥,从而制成了一种颜色较浅的混凝土,这种混凝土能更好地反射阳光,有助于建筑的自然通风。
为了减少浪费,我们再次利用从外立面切下的大理石作为地板材料,并将金属废料重新加工成门和隔墙所用的铰链。使用的白色大理石是本地生产的,同样,屋顶上使用的陶瓷砖也是以碎片的形式拼接而成。屋顶设有竹编遮阳篷,以提供防晒功能。我们选择竹子作为材料,而不是使用寿命长的铝制遮阳篷,从而提供了一种低碳、经济且可生物降解的解决方案,与更坚固但长期有害的材料相比,这种解决方案更为环保。
“第三空间”带给我们的一个重要启示是如何与所有合作者一起工作。我们共同学习和开发了许多元素。从与 Webb Yates 工程师共同创造的建筑遮阳篷,到与 Sarnar 共同发明的立面固定装置,以及需要测试抗震性能的大理石幕墙,这样的例子不胜枚举!
在建筑设计方面,我们从拉贾斯坦邦的建筑遗产中汲取灵感,并将其以当代形式重新诠释,将多种用途融入一个连贯的建筑中。“第三空间”的一个关键特点是中央庭院,它受到当地建筑遗产 havelis(一种传统住宅形式)的启发,主要空间都围绕其组织。这个庭院作为灵活的展览、表演和会议空间,四周环绕着通道,为所有学习和活动空间提供了清晰的路线。
在建筑入口处,游客会看到“ Baori ”,它受拉贾斯坦邦和古吉拉特邦的梯井启发。这个广阔的露天公共空间由看似随意的立方体组成,形成可以奔跑、跳跃、坐卧和放松的台阶。
项目图纸
△负一层平面图
△一层平面图
△二层平面图
△三层平面图
△四层平面图
△五层平面图
△六层平面图
△立面图
△立面图
△剖面图
△剖面图
项目信息
建筑师:Studio Saar
面积:20100m²
项目年份:2023
摄影师:Edmund Sumner,Ankit Jain
主持建筑师:Ananya Singhal
景观顾问:Studio Saar
结构工程师:Webb Yates Engineers, AMI Engineers
电力顾问:Secure Meters Ltd.
暖通工程师:Anjaria Associates
主承包商:Sarnar Buildtech
地点:印度,乌代布尔

BIM建筑网










































