Kibi Kogen N 广场位于冈山县中心高原上的吉备町,是一个以共享办公和咖啡馆为中心的区域交流和创意设施。该项目由当地公司 Systems Nakashima 主导开发。
冈山是日本最大的CLT面板生产商,该项目整个结构和内部都使用了CLT面板。
这些CLT面板宽2.2米,长35米,厚21厘米,在场地上以不同角度堆叠,高差约为4米。面板的角度错位创造了各种空间和开口。
这种开放空间不同于传统CLT结构的封闭和重复,体现了设施的开放性和社区内的合作精神,包括冈山大学在共享办公空间中的参与。通过这些空间,期待跨代和产学界限的交汇融合。
项目图纸
△总平面图
△一层平面图
△二层平面图
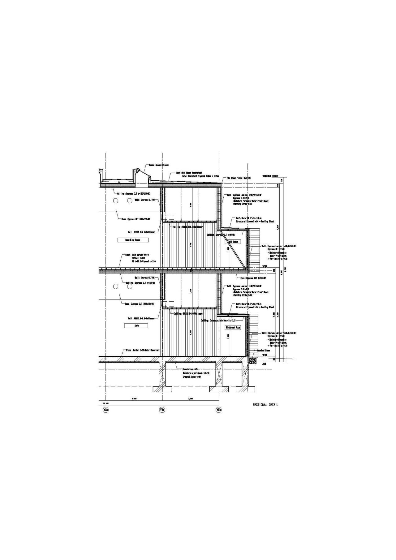
△剖面图
△细部大样图
△细部大样图
项目信息
建筑师:隈研吾建筑都市设计事务所
面积:585m²
项目年份:2024
摄影师:Kawasumi-Kobayashi Kenji Photograph Office
设计团队:Shin Oba, Taiki Monaka, Kyoko Mase
施工方:UG Giken
合作方:Kozo Keikaku Engineering
地点:日本,冈山
微信公众号:xuebim
关注建筑行业BIM发展、研究建筑新技术,汇集建筑前沿信息!
← 微信扫一扫,关注我们+

BIM建筑网

























