浙江千万工程余村展示馆位于安吉余村核心区位,是余村展示浙江“千万工程”成果的窗口,更是传播生态文明理念的重要平台。
改造前的两栋建筑
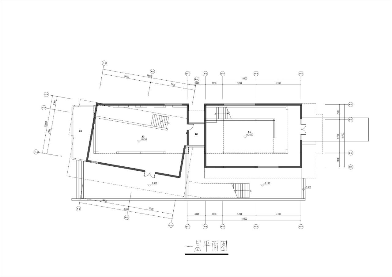
改造前的建筑为两栋八十年代的二层厂房,总建筑面积约为450㎡。两栋建筑相邻但内部空间互不连通,存在空间过小、利用率低、流线不合理等问题,对实现新的展示功能需求构成挑战。
通过场地流线设计,重建了余村景区核心区域的游览路径。设计尊重场地肌理及生态环境,没有开辟新的道路,而是让游客通过现状游客中心的公共展示空间及连廊进入展示馆,使得游客中心与千万工程展示馆在流线上形成连续的展示序列,通过不同空间共同展示“千万工程”这一宏观命题,从而建立了余村公共核心区域整体叙事路径。
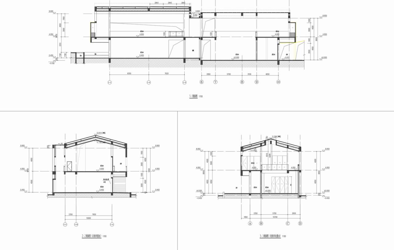
将空间叙事这一概念置入改造设计中,两栋厂房的功能变化是反映余村伴随“千万工程”进程蝶变的容器。设计保留原有建筑的结构及墙体,在其外部包裹了一个更大容器,新旧两个容器以嵌套的方式组合,形成“你中有我,我中有你”的格局。屋面与墙体形成简洁的几何转折,新旧表皮错位叠加,向外悬挑,形成多重表皮的层次变化,这不仅改变了建筑原本琐碎的立面,也使得空间得以扩大。重塑后的窗洞,框景山峦竹林,成为展示余村生态景观的特殊展品:“生态之窗”。
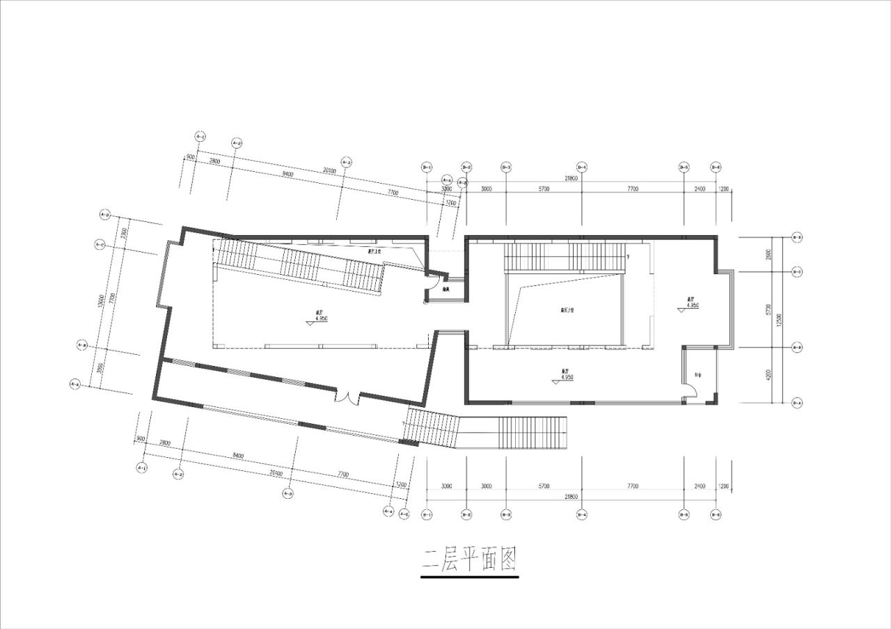
设计延续两栋建筑不连通的空间特征,在二楼增加连廊,形成纵向立体展陈路径,并将交通空间纳入展陈空间,将原有的灰砖墙转化为展墙,这不仅尊重了建筑的原始记忆,也强化了展览的连续叙事性,让观众观展过程中建立了与空间、展品、自然的情感互动。
设计在本土材料的运用上进行技术创新。主体墙面采用具有当地传统元素的竹模混凝土,竹模板在墙体表面留下的痕迹肌理,与四周自然竹林相呼应,实现乡土自然与工业记忆的叠加。屋面整体下凹之后用钢构件作为支撑,上铺轻质混凝土装饰板,形成中空的空气流动层,以增强保温隔热效果,并减轻屋顶的压力。
项目图纸
△总平面图
△立面图
△立面图
△剖面图
△设计生成
△“嵌套”记忆容器
△浏览路径示意图
△各展区及流线图
△无界立体观展流线
△细部结构大样图
项目信息
项目名称:浙江千万工程(余村)展示馆
设计方:上海交通大学设计学院杜春宇团队
联络邮箱:592924150@qq.com
公司所在地:上海
项目完成年份:2023年7月
建筑面积:879.51㎡
项目地址:浙江省安吉县天荒坪镇余村 主创建筑师: 杜春宇
摄影师: 吴清山
设计团队: 金凌骏、徐叶、王园园、杨姬、张杰
委托方:浙江安吉天荒坪镇人民政府
施工图专业:万华军、张会军
结构专业:孟庆月

BIM建筑网











































