龙南村位于桐乡开发区(高桥街道)西南部,作为浙江省第三批省级未来乡村创建村,近年来基础设施提升与发掘历史文化并行,以水乡、画乡、诗乡、蚕乡为主题,打造“诗画龙南”的整体风貌与文化定位。
龙南村农田广袤,树木成荫,有河流南北向蜿蜒而过,呈现一片自然田园的景致。场地贴邻水边,老房子最初作为学校使用,建筑成L型布局并有一个还算宽敞的大院。后来场地多了一个仓库,变为小型的加工厂。时至今日,工厂已迁,留下的仅有危楼状态的老房子和一棵自始至终伴随着的老梧桐树。
村子希望续写这块场地的故事,建立一座记录历史的文化馆和便民服务的办公楼,打造龙南村新的党群中心。
△鸟瞰图
△水岸环境
场地:水院-庭院-大院
场地周边的环境与建筑还保留着传统民居的格局,周边的小学、艺术馆都还留有院落的空间,马路与桥围合成的河流也有着水院的形态。
设计希望延续人文脉络下的乡村聚落肌理,将党群中心与历史文化馆以院落的空间组织布局,仓库拆除后的场地一半复建,另一半则与保留建筑围合成内庭院,给予到访文化馆的人们一个公共休闲的区域,在了解历史的同时,也能感受到有着传统文化的院落空间。场地内原有的广场尽可能保留最大的场地,成为以停车和集散功能为主的党群大院。
△村路旁的“桥屋”
△前场
△入口
“水院-庭院-大院”的空间序列格局将周边的环境纳入到建筑组团中,并有序的梳理了公共与私密的区域,满足了不同的功能需求,形成具备乡村文化空间标识的场地特征。
△水院
△庭院
△大院
设计:桥的故事
△场地中的桥
△水岸与桥
河流如脉络串联着龙南村,往来的道路便形成了众数的桥。水乡的桥就像是这里文脉的缩影,依托独特的环境条件,与驳岸、河道、台阶等创造了多层次的空间体验。沿桥过河,沿桥入院,设计以“桥”的姿态为形,以庭院为中心,串联着新老建筑与各个功能区。
△水岸旁的“桥屋”
“桥”系统的组成包含了建筑的外廊、组团间的连廊以及室内的走廊部分,以主要交通流线为主体,贯穿了整个院落与建筑组团。在路径的转折与重要交接部位利用露台、半室外区或前厅完成空间与功能的转换。这一流线系统也汇集了部分纵向交通空间,由入口到院落,从展厅到屋顶平台,都成为了此游线中重要的空间节点。
△“桥”系统
主体建筑为办公服务区,由接待服务厅、各级办公室与大会议室组成。二层可通过原建筑的连廊部分通往后勤配套区。相比较为功能独立的办公区,村史馆更注重开放性并与河岸环境保持空间的连续性。各出入口平台与连廊相接,曲折有致,结合踏步与台阶的起伏,引导人群的往来,有序的在各建筑空间内穿行,聆听“桥屋”继续讲述龙南村的故事。
版图:文化地图
近年来,龙南村充分挖掘特色文化内涵,开展“最美家庭”评选、“浙风十礼”专题讲座、“移风易俗”商讨会等形式多样的活动。沿河已经分布了鲍月景艺术馆、伯鸿书屋、陈家厅、专家研学民宿等带有人文艺术特质的合院聚落。建成后的党群中心作为龙南村文化地图的重要节点,共同组成集旅游、培训、宣传、教育于一体的文化游线,为乡村的文化历史续写了新的篇章,实现了传统文化的传承、创新与发展。
项目图纸
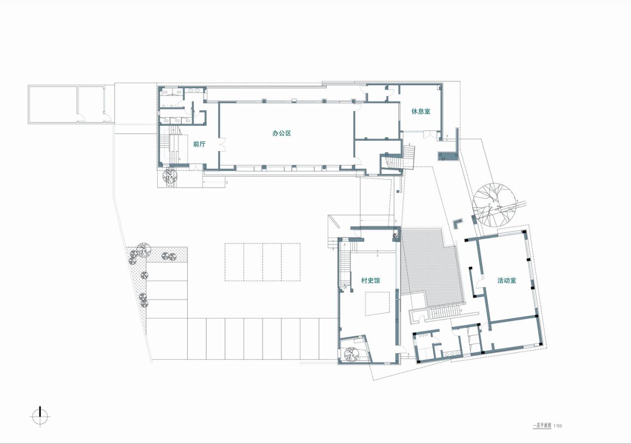
△一层平面图
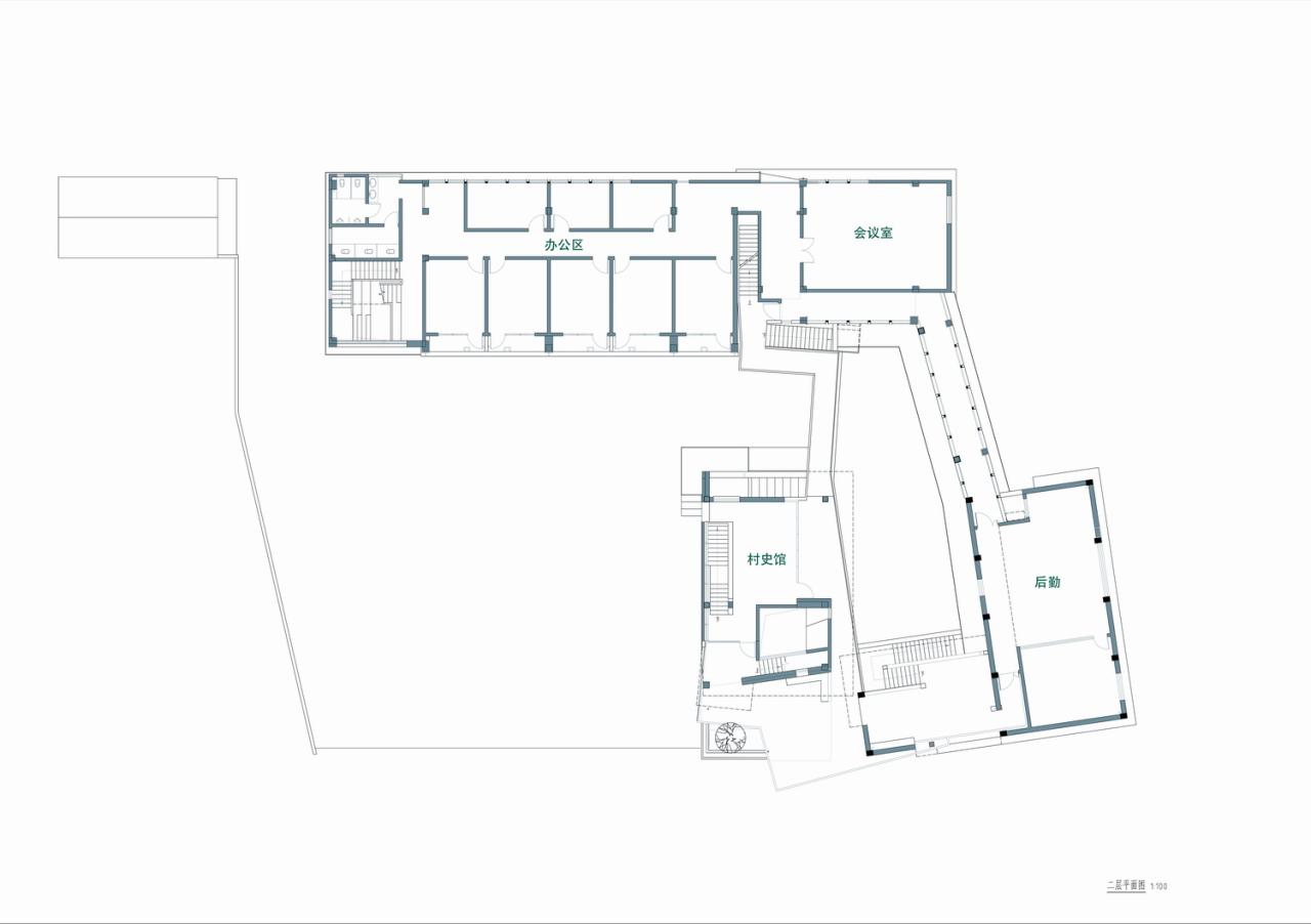
△二层平面图
△三层平面图
项目信息
项目名称:龙南村党群中心
项目类型:建筑设计
设计方:森上建筑
项目设计:2022.09
完成年份:2024.03
主要设计团队:章钧添 孙鸿斐 王鑫 欧阳丹
合作团队:结构顾问:苏勤军
项目地址:浙江桐乡
建筑面积:2000㎡
摄影版权:吴清山
客户:桐乡市高桥街道龙南股份经济合作社
材料:钢材,混凝土,青砖

BIM建筑网





































