新建的12班大洋幼教集团协成幼儿园位于中国浙江省台州市临海市,可容纳360名3到6岁的幼儿。设计以“孩子们的大玩具”为设计理念,旨在打造一个让孩子感到安心、放松的学习环境,并建立一个尊重天性,发展个性,培养灵性的幼儿教学空间。园区采用波浪形态,与山体形成呼应,引入阳光、风和植物,让孩子感受四季交替自然变化,激发儿童的想象力、自然感知力以及艺术体验力。
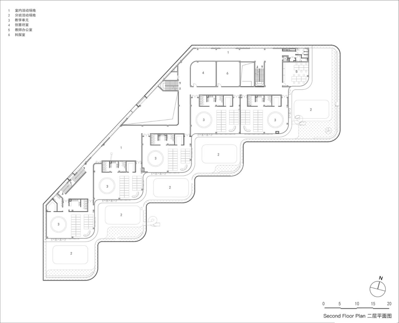
扩大的交通空间模式受制于特殊的梯形用地,设计上打破传统幼儿园的单一化空间形态,将交通空间扩大为以不同设计主题为线索的室内外活动空间:扩大尺寸的折线形活动走廊形成交往空间、交通空间的局部扩大为厅作为室内公共游戏活动空间、在室内外都布置儿童滑梯上下连接不同的楼层,为幼儿提供丰富多彩的活动和游戏场地。
教学单元仍采用标准化的活动单元式,逐层退台布置,既有内部各尺度不一的室内活动场所,外部又设置各班相互融合的室外活动空间。各幼儿室外活动空间用“小道”分隔空间,弱化班与班之间严格的界限,形成可以融合的、较为开放的空间关系。
“Affordance”理念下的多维童趣空间将"可供性"理念引入幼儿教育环境设计,旨在通过环境的营造提高促发幼儿行为的可能性,丰富环境中的教育属性。幼儿教育空间不仅仅是物质组合,更是教师、幼儿与环境相互融合的关系。通过感知环境的可供性,幼儿在探索中发现新的可能性。
在幼儿园,设计一些小而有趣的空间,如角落的隐蔽空间或只有孩子们能够站立玩耍的低矮空间,培养孩子感性认识。除了适合儿童尺度的小空间,公共空间同样重要,如设计让图书室提供多样的阅读空间,在中庭中布置天窗和多样的玩乐设施,创造明亮且富有趣味的多维环境。
最后:“开放式”幼儿园教育模式现代幼儿教育理论(“蒙台梭利法”)认为,不同年龄幼儿的交往活动有利于其心理成长、知识增长、社交能力的培养。幼儿园应该提供不同年龄的幼儿在一起交往活动的空间,创造有利于不同年龄幼儿在一起活动的机会。因此设计幼儿园建筑空间时需要突破分隔、封闭的格局,强调既分又合、灵活多变,并且要重视公共活动和交往空间的创造。
项目图纸
△总平面图
△一层平面图
△二层平面图
△三层平面图
△四层平面图
△屋顶平面图
△剖面图
△立面图
△展开立面图
△立面图
△爆炸图
项目信息
建筑师:任天建筑工作室
面积:6667m²
项目年份:2023
摄影师:山间影像
主创设计师:任天
设计团队:林为依、李诗怡、郑思伊
合作设计方:中国美术学院风景建筑设计研究总院有限公司
委托方=:临海市国有资产投资控股集团有限公司
功能:教育建筑-幼儿园
施工方:浙江大经建设集团股份有限公司
室内装修:浙江旭瑞建设有限公司
地点:台州

BIM建筑网













































