SAFRA蔡厝港会所坐落在广阔的公共公园中心,是一个休闲会所,为国家军人及其家属提供丰富多样的健身和保健活动,包括游泳池、五人制足球场、卡拉 OK 厅和水疗中心。SAFRA CCK 的建筑风格张扬、独特,让人联想到健身运动并从中受到启发–从大胆的超大桁架到象征团结和力量的预制颜料混凝土拱形正面。而在其坚固的外表下,则是一个充满活力的自然和人文社区,通过一条中央主干线从公园流淌而入。其结果是自然与健身的无缝交错,为社区注入了新的活力,重振了社区精神。
从一开始,体量和程序的安排就不仅受有关层次和目的的内部逻辑的指导,还受视觉可达性和空间互连等外部因素的影响。会所位于公园内,其设计理念是利用公园的地理位置,重点打造多孔的公共空间,将周围的绿化与建筑结构完美融合。建筑有意朝向公园,吸引周围的自然景观和活动,营造出一个绿意盎然的中央庭院,将室外景观引入室内。为了进一步增强通透性,游泳池被架空到树冠中,腾出地面层与公园相连。这样不仅可以从空中俯瞰公园的壮丽景色,还可以将泳池延伸到树丛中,与树叶完美融合。
毗邻庭院的“生命阶梯”是项目的垂直中心,它不仅将会所内的健身设施连接在一起,还将公园的跑步路线与建筑第四层的空中跑道连接在一起。它体现了积极的流动性,邀请游客登上 100 级台阶,打破了健身和公园仅限于地面的传统观念。它跨越了公共和私人、水平和垂直等不同领域,为会所注入了独特的活力和热情。会所内的大容量空间沿建筑的伸展臂布置,以最大限度地利用自然光和交叉通风。在空调空间内,采用了高性能的双层玻璃,以减少热量传递,从而显著节约能源。
除了被动式设计策略,SAFRA CCK 还通过绿色技术和可持续建筑优化能源消耗。它拥有高效水冷式冷水机组、100% 智能自动灌溉景观雨水收集系统、屋顶光伏板和节能照明系统。在施工过程中,还使用了绿色混凝土和回收钢材,使单位建筑面积的碳排放量减少了 23%。由于总体节能 42.7%,总计 1890 兆瓦时,该项目获得了新加坡建设局颁发的绿色标志铂金级–超低能耗认证。这一认可体现了会所与自然和谐共处的承诺,突出了其作为一个有思想的可持续发展空间的作用,在设计和功能的各个方面都优先考虑了居住者的福祉。
项目图纸
△总平面图
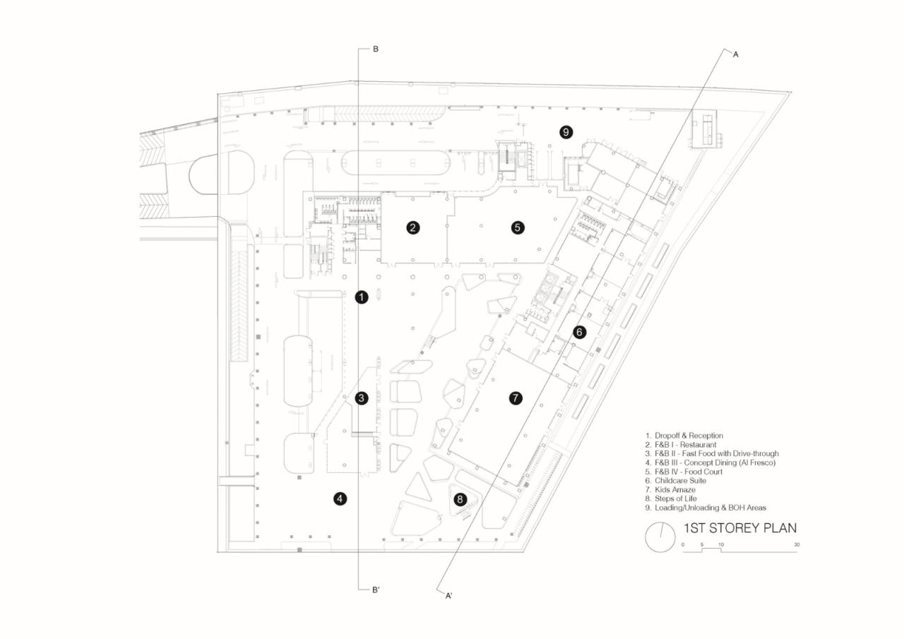
△一层平面图
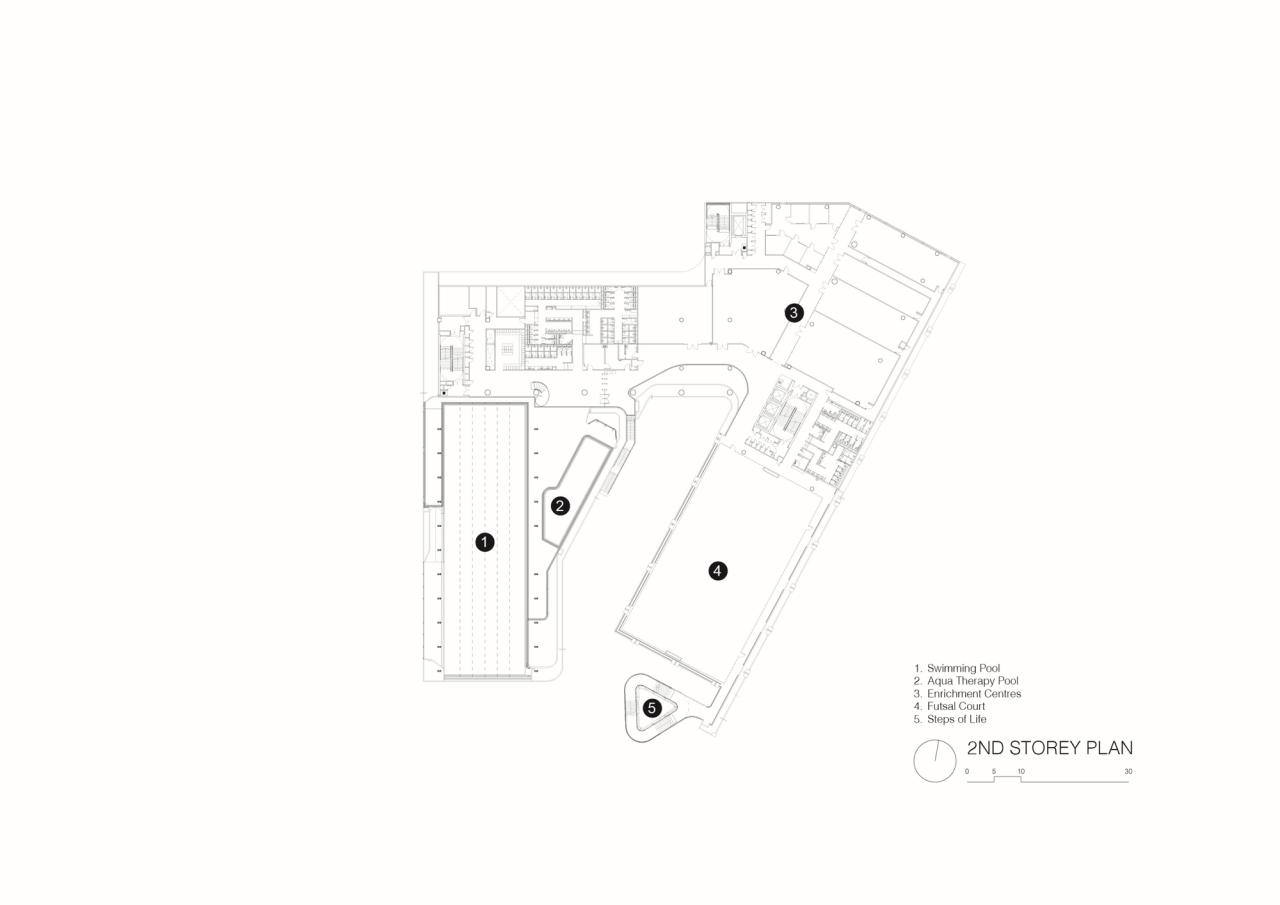
△二层平面图
△三层平面图
△四层平面图
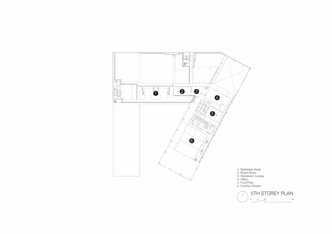
△五层平面图
△剖面图
△剖面图
△立面图
△立面图
项目信息
建筑师:DP Architects Pte Ltd
面积:19700m²
项目年份:2023
摄影师:DP Architects
主创建筑师:Ng San Son
项目主管:Tan Kok Ming
建筑设计:Jireh Lee, Nigel Chew
工料测量师:Northcroft Lim Consultants Pte Ltd
景观设计:DP Green Pte Ltd
主承包商:Hytech Builders Pte Ltd
地点:新加坡

BIM建筑网


























