▲建筑外观©张雷
“方院”位于云南省红河哈尼族彝族自治州工业园区内,业主希望我们利用园区内的一个角落用地,设计一幢服务用房,在这个高度工业化的园区内营造一处安静的办公及休闲场所。
命题:还原一座真实的房子
当业主把我们带到一片深藏在工业园区内的工地,指着那栋一层主体混凝土框架已完工的“仿古四合院”说:我想让你们重新设计一座四合院。这时我们知道:他不只是想要传统意义上的四合院。于是命题便清晰起来——在基本不改变已建成的结构体系的前提下,设计一栋既适合现代工业园区环境,同时保有“四合院”空间特色,并兼顾办公及生活的房子。对我们而言,更重要的是,扒掉“仿古”的虚假的外壳,还原一座真实的院子。
▲原四合院设计方案效果图
▲建筑原始结构©张雷
作文:封闭与开放
我们首先面对的问题是:如何让一栋具备传统合院空间的建筑在一个现代工业园区的场地环境中显得合理而自然。在维持原始结构体系及建筑技术经济指标不变的前提下,扔掉仿古的壳,重新梳理功能空间。
▲设计手稿
传统“合院”空间对外封闭,景观内求,恰好可与界面封闭工业建筑构成形式上的协调。因此,外墙的开窗设计务求克制,加之景墙对入口界面的进一步统一净化,我们得以不失情趣地完成了与工业建筑的形态对话。
▲封闭的外墙 ©张雷
▲克制的立面开窗 ©张雷
▲景观内院 ©张雷
在推门进院之前,我们希望获得一个与干净敦厚且尺度感模糊的外立面截然相反的灵动体验。于是在大门两侧嵌入镂空隔板,消解厚重墙体带来的沉闷。让视线有节制地穿透院墙,内景随步伐推进而时隐时现,空间序列逐渐展开。
秩序与空间序列
传统的云南民居有相对固定的制式,无论是昆明“一颗印”的“三间四耳倒八尺”,或是大理的“四合五天井”,都在形式上有其传统原型要求。设计在格局制式与空间轴线关系方面均严格对应传统。中庭四周一圈均分的柱列,形式虽不“古”,目的却还是用于强化传统天井空间的秩序中心的仪式性。交通组织也将“回马廊”的形式进行了当代演绎。
▲建筑平面秩序
在传统合院的秩序的基础上,我们试图构建出一个连续的游览序列:入口“甬道”——门厅——庭院——柱廊——小庭院——楼梯间——二层内廊。入院,办公、餐厅、茶室等公共属性相对较强的功能安置在首层,首层对内外庭院借景的需求因而更强。既要借景,又要避免视线延伸至外围工业建筑,外庭之外的围墙提供了视线的限定,外立面也得以借景而不见窗,解放出首层的开窗自由。
▲建筑入口 ©张雷
▲入口甬道 ©张雷
▲门厅 ©张雷
▲内院柱廊 ©张雷
▲小庭院 ©张雷
▲楼梯间 ©张雷
▲二层内廊 ©张雷
空间序列与光线
传统的合院民居虽强调制式,却往往不拘泥于制式,建造在不同的场地中,房子也会在制式的基础上“适应性”的生长。我们设计“四合院”,更希望灵活的传承制式而非原样搬运。适当的变通让我们得以有目的的组织空间与光线。光线在游览序列中都被特意地精心处理:或从拔高的门头一泻而下,或从廊道的格栅板上滤出,又或是透过外墙的空心砌块渗透进来。人们在院落与廊道被光冲洗后,方才进入室内。至此,有序而灵动的“新合院”空间序列才终告完整。
▲ 门厅的光影 ©张雷
▲ 柱廊的光影 ©张雷
▲楼梯间的光影 ©张雷
▲ 回廊的光影 ©张雷
▲光与建筑 ©张雷
结语
这原本是“盖一座四合院”这样一个命题清晰明了的项目,却因其独特的场域环境,被赋予了复杂的内涵,进而可以被更具体地操作。这个项目对我们来说是一个限定得比较明确的“命题作文”,我们需要在明确预算的前提,在“非居住”园区内设计一个,以传统“居住”建筑类型为原型的功能混合的建筑——工业园区配套服务用房。这本是一个在整个工业园区所有建筑项目中会被最简单、最集约设计和建造的建筑,而我们希望通过这个项目能够传达出一个理念——任何一个建筑都值得用心思考和建造,在尽量控制建筑投资的前提之下,生活和工作都值得被更好的建筑去容纳。我们利用简单的建造方式、普通的材料去建造一个不太普通的建筑。我们想,设计这样一栋建筑,并非造一栋“豪宅”,未必要借贵重的材料与复杂的建造抬高身价;转而把它视为一栋生产建筑则更不恰当。抛开塑造物理性内外环境的题中应有之义,我们把这个项目中对场所与空间处理理解为:对生产与生活两种行为发生交融时的平衡与调试。这个空间既需容纳主人眼下工作忙碌,也应寄托对诗意生活方式的向往。这是一个被精心设计过的简单盒子,是一个抽象得当的“四合院”,也是我们对这一命题的答案 —— 一个尽可能简单却又内涵丰富的容器,去容纳生活的复杂与矛盾。
▲夜景 ©张雷
▲庭院夜景 ©张雷
项目图纸
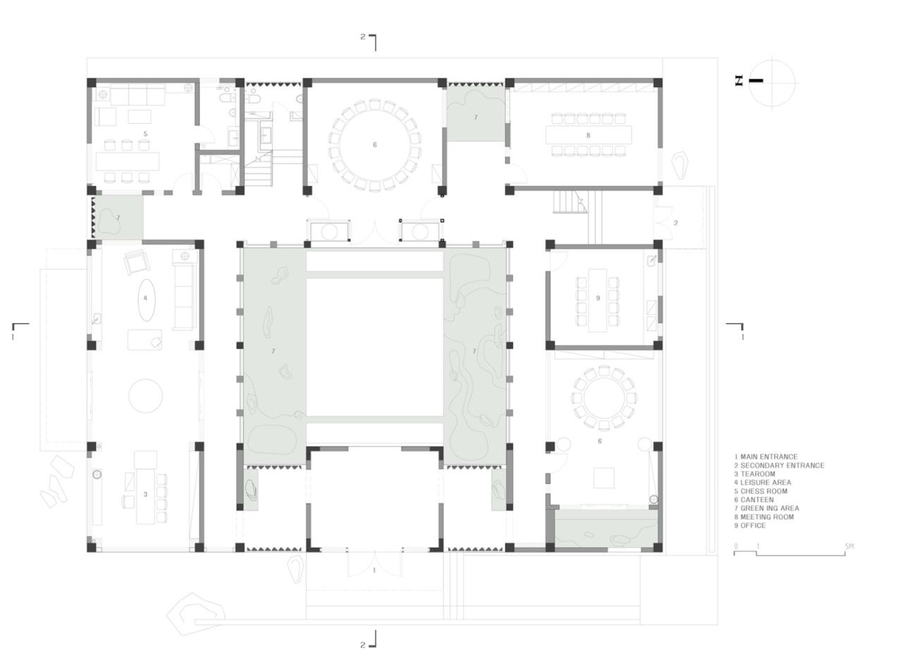
▲一层建筑平面
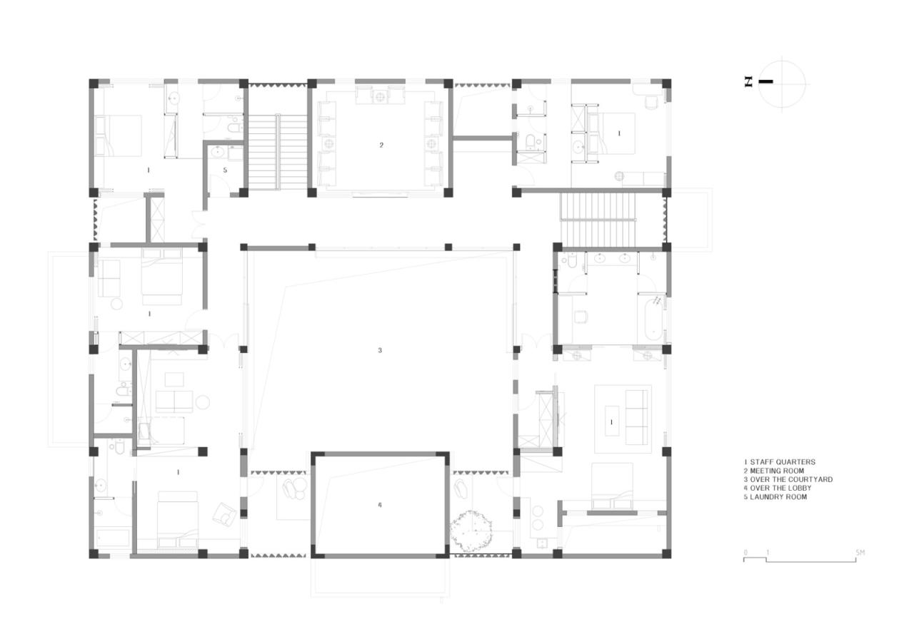
▲二层建筑平面
▲立面1
▲立面2
▲1-1剖面
▲2-2剖面
▲建筑轴测
项目信息
建筑设计:素造建筑
面积:646.88㎡
项目年份:2023年
摄影师:张雷
主创建筑师:郭旌 董文 杜杰
设计团队:郭旌 董文 杜杰 尹晓文 朱文逸 张雷 程春杨 赵胜超 杨宇航 马丽娜 李璟 陆继行 陈涛 赵阳 王慧涵
建筑施工图:云南吉成园林设计有限公司
景观:云南吉成园林设计有限公司
装修工程施工:云南雅木居古典装饰有限公司
地点:云南省红河哈尼族彝族自治州工业园区内

BIM建筑网






































