在科尔多瓦,一个坡度接近45°的地方,伴随着河水潺潺以及山峦和树梢的美景,该项目得以开展。这是一栋用于居住、工作和写作的房子,环境孤独而宁静,适合开展哲学工作。
项目灵感来源于互补的对立面,下部沉重,上部轻盈。打开时,它可以捕捉美景,迎接阳光。它也可以紧紧闭合,用于自省。
这是一座为景观增添价值的建筑。该项目可从屋顶进入,屋顶不超过地块的最高点,以避免破坏景观。它是逐渐穿越的,直到通过一段沉思之旅从下部进入,通过这种方式可以进入自然地形。
与山体相连的挡土墙勾勒出清晰的几何图形;一座桥梁延伸并增加了连接性。几何形状狭窄,就像“山羊”的脚印,与陡峭的山坡相似。
从外面看,它是一个单一材料的结构,成为一个从场地中浮现出来的巨大作品。钢筋混凝土是结构、内部空间和地面与天空关系的主要材料。其墙壁表面粗糙,能够揭示时间的流逝,并将当地的气候和色调印在结构上。内部空间比例独特,高度变化很大。它既有大开间,也有完全封闭的空间,可以展现或隐藏景观。室内使用木材,这种温暖的材料与粗犷的外观形成鲜明对比,一进入室内就会散发出独特的香味。
居住、用餐、烹饪和起床的主要区域与树冠高处的景观相连。与之形成鲜明对比的是,一个内敛的夹层,采用开放式的平面布局,悬浮在整个空间之上。夹层从下往上照亮,营造出一个内省的环境,它为写作和阅读提供了一个与外界隔绝的场所。
它绝非一座脆弱的建筑,而是一座形式综合、材料简洁的新山峰。该方案采用了基本的“手工”技术和少量简单的操作,尊重了周围的环境。方案没有改变自然地形,并提出了不同类型的空间:室内和室外,私密或开放。同时,空气和水继续在房屋下方流动。
项目图纸
△剖面示意图
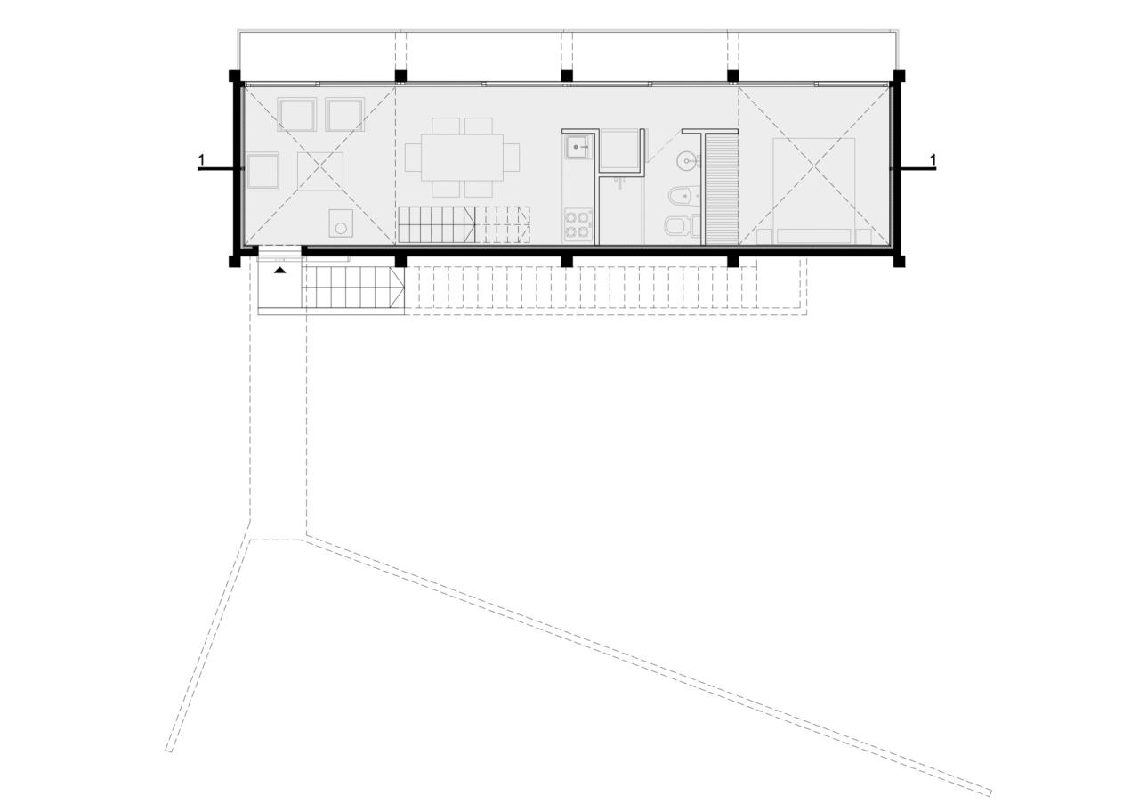
△平面图
△夹层平面图
△屋顶平面图
△剖轴侧图
△横向剖面图
△细部结构大样图
项目信息
建筑师:Agustín Berzero,Manuel Gonzalez Veglia,Tectum arquitectura
摄影师:Federico Cairoli
工程师:Edgar Moran
地点:阿根廷,La Paisanita

BIM建筑网






















