奉浦小学在奉贤新城偏西。其所在区域,在过去数十年间一直是工厂聚集地,而当下正逐渐转变为新城规划的居住生活区。校区内有一株银杏古树,旁边的小四合院建于70年代,二者一起另外作为一项保护修缮工程,和小学项目同时但分别建设。
奉浦小学的建筑设计需要面对两个问题。其一对外,如何面对全新转变过程中的城市空间;其二对内,如何面对小学生的日常生活。因此,建筑最终呈现了多个维度的双重性。
首先,建筑外观色彩缤纷,以引人注目的样貌试图在这个正在转变的全新城区中建立新的地方标识。与之相对,建筑内部用暖灰色创造了安静的学习环境。建筑内外色彩构成了强烈的对比,但同时又在空间环境中相互渗透。
在空间格局上,建筑也具有一种双重性,以此来对应学习和玩耍、集体和个人、规训和自由的少儿日常生活。两个围合的内院构成了普通教室的集体向心空间,它们被放在建筑东侧,临近河道,相对安静。小剧场、风雨操场、图书馆、食堂等公共活动空间安排在西侧,空间相对开放,与运动场相连接。
建筑的底层庭院和二层活动露台共同形成了可以自由奔跑的共享场所,再加上穿插在建筑内的坡道和标高各异的活动平台,一起构成了与教室并置的课余空间。
在场地上,银杏古树的院子被新建的围墙与校园分隔开。学校建筑以一种当代的方式与其共存。一方面,简洁现代的外墙成为古树院子的背景,另一方面,在靠近古树的一侧,建筑设计了可以观赏景观的挑廊。奉浦小学的设计表达了建筑师面对常规学校模式的思考,也以此呈现了建筑如何面对正在转变之中的郊区新城的复杂地方性。
项目图纸
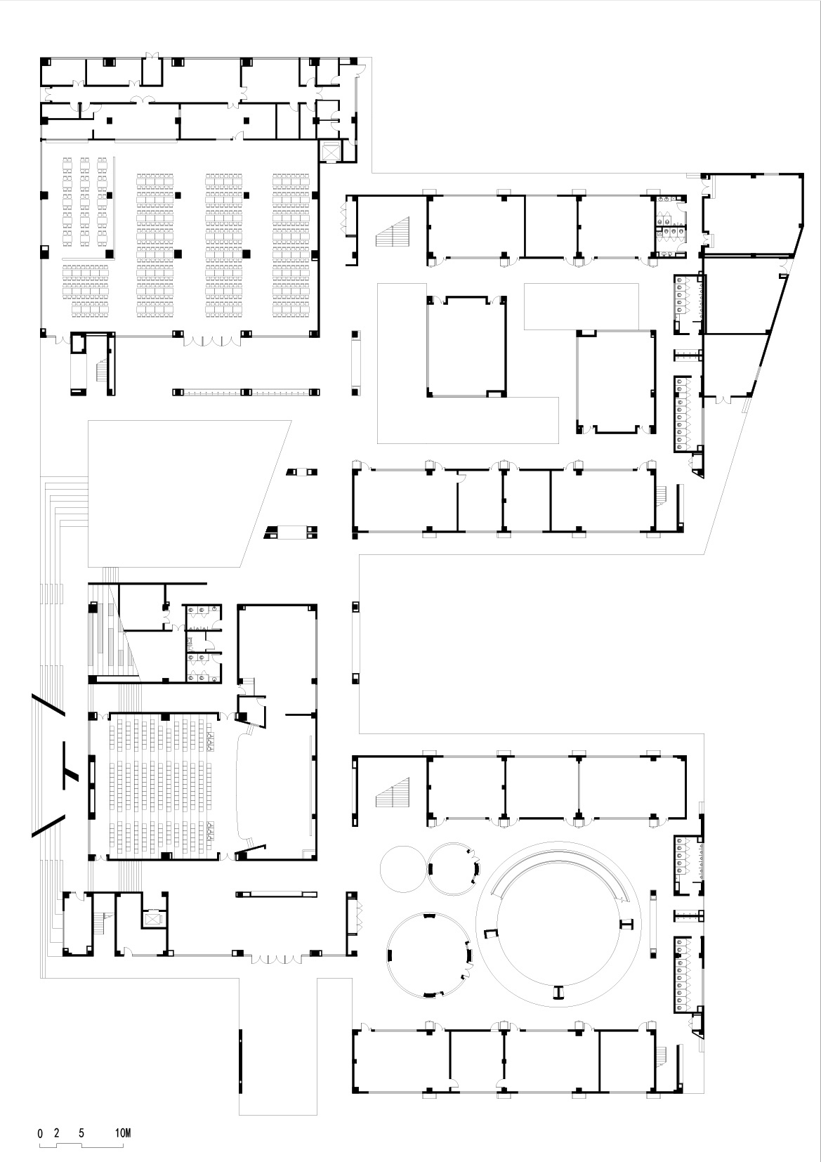
△一层平面图
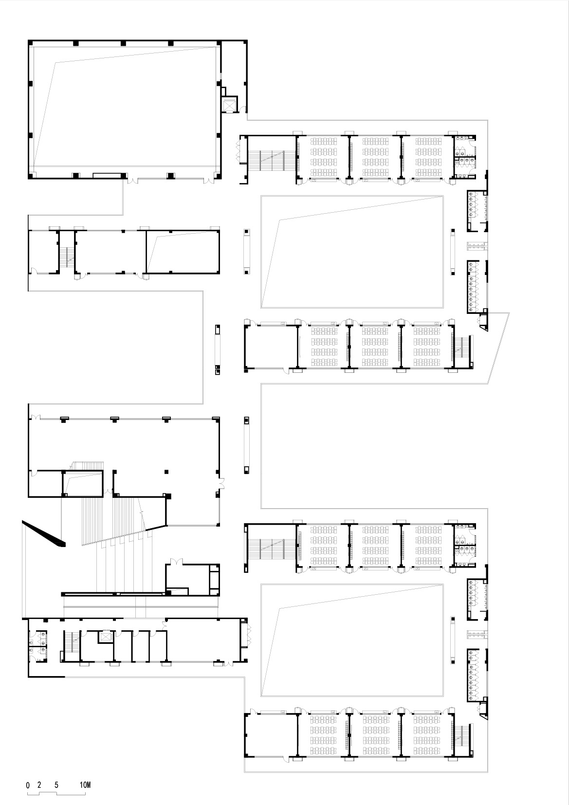
△二层平面图
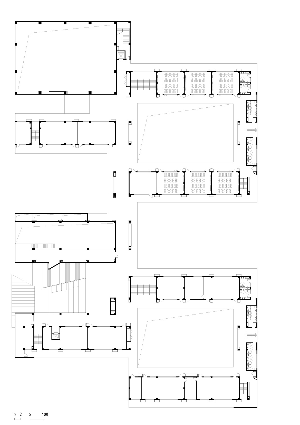
△三层平面图
△四层平面图
△剖面图
项目信息
建筑师:无样建筑工作室
面积:17960m²
项目年份:2023
摄影师:吴清山
主创设计师:冯路
设计团队:杨锦雄、荆春玮、高益、李传琛
施工方:上海建工集团
景观设计:无样建筑工作室
合作设计方:(施工图设计)上海之景市政建设规划设计有限公司
委托方:奉贤区教育局
地点:上海

BIM建筑网

































