该项目位于达马利莱斯镇(塞纳河与马恩河交汇处) Frédéric Joliot-Curie 中学的中心地带。学校建于 1965 年,占地近 5 公顷,由 6 栋建筑组成,总建筑面积约 10 000 平方米。
项目旨在重建整个建筑,该建筑位于学校中心地带,环境优美,北面是教工停车场,南面是森林,东西两侧是两座教学楼。覆盖的廊道沿着当前的自助餐厅和周围建筑物之间的外部路径展开。南立面上,遮阳篷为学生提供等待用餐时的遮蔽,屋顶设计朝向森林。地面层让位于花园层的技术室能够获得日光照明。餐厅的食物被卸载到位于北立面的一个平台上,该平台位于员工停车场的边缘。
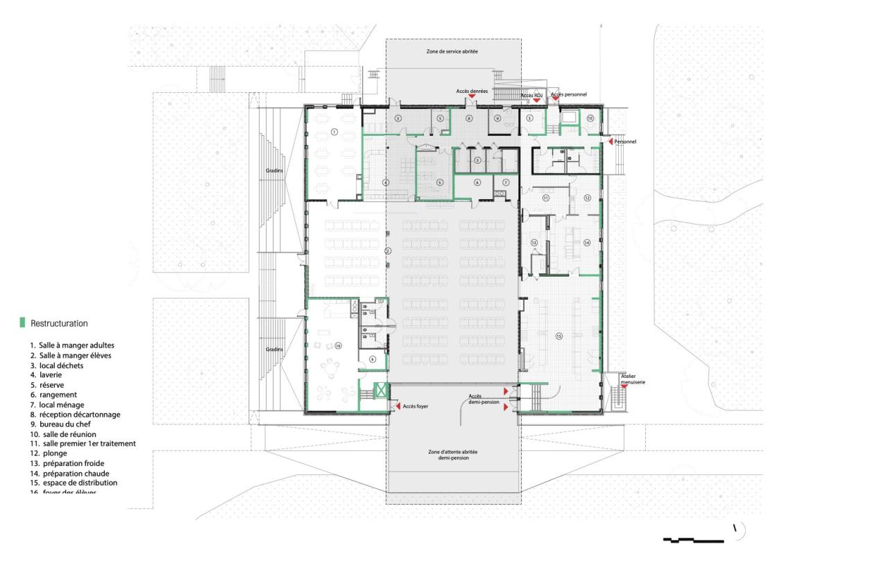
建筑由底层和花园层组成,底层为半食堂楼层。这里有准备区、餐饮区、洗碗区、冷藏室、储藏室以及学生门厅和送餐区。
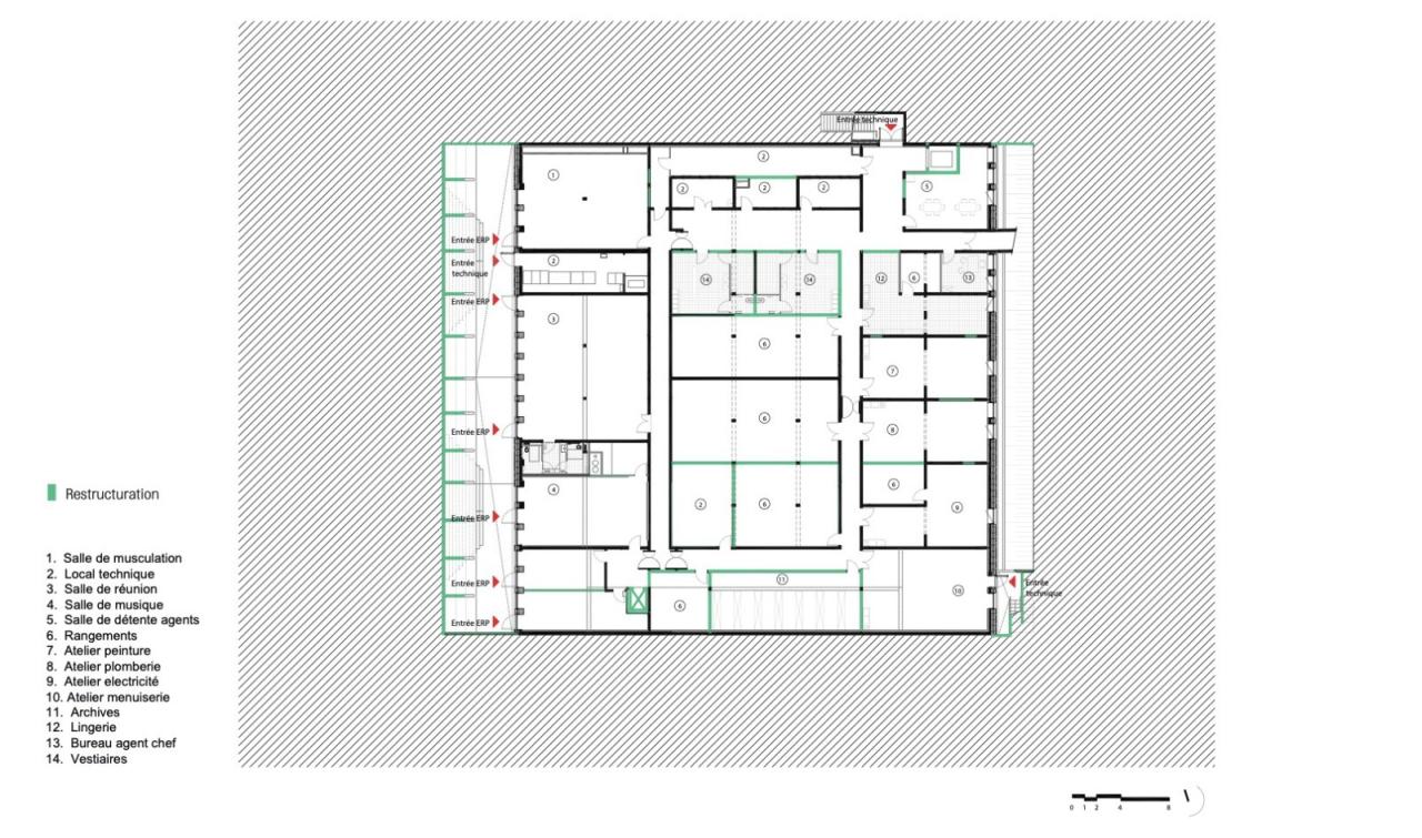
花园层由两个区域组成:第一个区域从外面直接向公众开放,包括学校生活中心的房间(学生俱乐部、健身房、音乐室)。第二个区域供教职工使用,包括档案室、家具店、教职工更衣室、校长办公室和教职工工作室。
该项目通过将高高的屋顶向南北两侧延伸,力求加强对明显优越方位的解读。从这个屋顶可以从大餐厅俯瞰森林美景。除了南北朝向外,横向“翼楼” 还向西面和东面开放,并在西面设置了一个通往花园低层的主入口。
因此,该项目呈现为一个非常简单的体量,由两个部分组成:一个低矮的金属部分,由金属灰色的波纹板组成,使项目与地面分离。它的功能是作为一个底座,并根据设计方案组织成一组开口,显示出内部空间。
用穿孔铝板制成的清晰流畅的上部空间,就像一顶帽子,为下部空间戴上了帽子。它将用餐区包围起来,并为用餐区带来光线。它提供了一个悬挑的空间,标志着入口,并作为顶篷为排队的学生遮风挡雨。屋顶的所有技术元素都被隐藏起来,并与这一空间融为一体。
项目图纸
△基地示意图
△手绘图
△总平面图
△餐厅一层平面图
△餐厅二层平面图
△立面图
△剖面图
△爆炸图
△分析图
△分析图
项目信息
建筑师: Ateliers O-S architectes
面积: 3099 m²
项目年份: 2022
摄影师:Cyrille Weiner
主持建筑师: Vincent Baur, Guillaume Colboc, Gaël Le Nouëne
设计团队: Jonathan Nuttin
现场团队: Agathe Mesure-Madelain
厨房设计师: NOVOREST
管道、通风&供暖: UTB
机电设计: SALMON
厨房设计: FROID 77
结构工程师: I+A
流体工程师: YAC
地点: 法国,Dammarie-les-Lys

BIM建筑网






























