阳普邻里·振原项目位于杨浦区开鲁路,升级改造前是杨浦商贸(集团)所属的阳普振原菜场。仅3个街区之隔,是我们于2019年完工的勤海睦邻中心——第一个由菜市场升级为小型社区邻里中心的案例。作为其姐妹篇,振原菜场的改造是勤海模式得到市场验证后的经验复制推广。业主希望以此项目为契机,建立“阳普邻里”品牌,让其成为未来社区生活的新样板。
又见“屋檐”
项目所处的中原居住板块,是上海90年代典型的 “新村式”居住区。这类“高龄”小区有相对熟识的邻里环境,生活氛围浓厚,但也普遍缺少公共性强的开放空间和绿化。而菜场不仅是居民日常生活的一部分,也是城市重要的公共空间。综合这些因素,设计最主要的出发点是承接周边小区“溢出”的这部分公共活动需求,创造高品质的社区邻里空间,并尽可能保留“熟人社会”的人情味。我们认为,这种人情味正是邻里关系的精髓。
▲建成后鸟瞰
▲场地分析
回溯菜场在不同时期的空间形态演变,我们发现大家对菜场的记忆并不是某些具体的事物,反而是街边一个简易的棚下或是檐下热热闹闹,挤挤挨挨的氛围。为此,我们有意让“屋檐”成为一个文化符号,通过建筑立面、室内空间的整体诠释,唤起每个人对菜场的场所记忆。这一方面是对勤海项目“同一屋檐下”理念的延续,保证“阳普邻里”品牌的一致性;另一方面,“屋檐”也是建筑立面和室内的主要形式表达,构成“记忆——空间——功能”深度融合的设计体系。
▲记忆元素的转译
内与外的延续
人与空间之间的情感连接会赋予场所意义,并带给人安全感、稳定感和归属感。“屋檐”的意向让人联想到家的温暖,寄托了我们将邻里之间的温情凝聚在同一屋檐下的愿望;而“檐下”这介于室内与室外的过渡空间,又成为邻里间交流活动的第三空间,让日常生活场景富有人情味和亲切感。因此,从设计的形式和意义上来说,两者是互为印证的关系。
考虑到和周围的建筑环境相协调,我们选择以暖色系为整体基调,并采用“双表皮”做法对立面重新进行造型。格栅的疏密及角度变化模拟出“屋檐”折线,并随着视线和视角的变化而呈现不同观感。远远看去,屋檐连绵起伏,在沿街绿植的掩映下以低调的姿态融入环境。从近处看,格栅的比例和构件衔接清晰明确,为原本平淡无奇的沿街界面增添了细节和品质感。
▲片区色彩融合
▲屋檐沿街界面
▲起伏的檐下空间
▲柔和的夹角和色调
日常的“松弛感”
设计以一条“屋檐下的街市”为流线组织功能,一方面让室内外以统一的元素获得形式上的延续,丰富了空间层次感;另一方面,街市作为室内的主要流线,串联菜场、社区工坊、餐饮等多种业态,营造一种放松、自由、富有松弛感的日常生活场景。
挑出的“屋檐下”,老人和孩子可在社区工坊“修补”的间隙坐下小憩,邻居间可以放下手中的菜“噶三胡”,不想下厨的晚上可以约上好友来碗牛肉粉……如同儿时记忆中的走街串巷,这里成为了街区最具日常生活气息的公共场所。
▲上海俚语灯牌
▲室内街巷
▲围绕柱子形成休憩区
▲社区工坊服务停留点
由于周边小区主要人口是租户和原住老人,因此,设计充分考虑了他们的使用需求,围绕柱子形成多个不同的休憩平台,配合绿植共同创造出一个生动活泼的花园。绿植界定了空间的边界,使空间更加清晰,同时,还通过限制视线来加强私密性。
夜晚的“烟火气”
失去了人气和烟火气的空间,就如同列斐伏尔所提出的“表征化空间”,只会是一个空洞的场所。因此,我们非常谨慎地避免一种自我想象的精致生活,抑或是对“烟火气”元素的过度诠释,相反,努力追求日常和平凡的生活场景。
夜晚,疏密有致的格栅在暖黄的灯光洗照下绵延、摇曳,像一条永不停歇的夜市,守候城市的烟火和晚归的灵魂。
▲城市烟火,温暖回家的路
▲夜幕下的街市
▲家门口守候的灯
在《美国大城市的死与生》一书中,简·雅各布斯(Jane Jacobs)认为,在城市缺乏自然和非正式的公共生活的情况下,居民往往选择将自己与他人隔离开来,而传统的归属感是建立在共同经历的基础上的,共同经历的发生则又依赖于地理上的接近和社会生活的连续性,居民不自觉的自我隔离必然导致公众归属感的缺失。我们希望阳普邻里·振原项目能够在不断变化的社会条件中,让居民建立起一种与空间的情感联系,增强他们的归属感和幸福感。
项目图纸
▲新旧拆解对比分析
▲剖面分析图
▲立面表皮分析
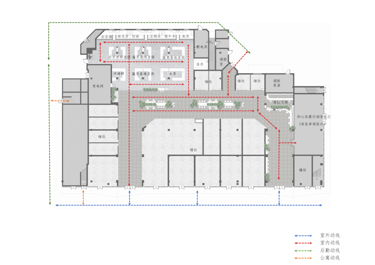
▲平面动线
▲集市轴测图
▲街市轴测图
▲社区工坊停留点
▲材料
项目信息
项目名称:阳普邻里·振原
业主单位:杨浦商贸(集团)
项目地点:上海市杨浦区开鲁路498号
建筑面积:4000平方米
项目周期:2019.03-2023.06
设计单位:予舍予筑
设计总负责:许异、李志强
设计团队:胥俊峰、庞禹、曹真、杨环利、郑雅莉、张孟迪、朱跃跃
照明顾问:叠隐照明
机电合作:芮文工程设计事务所
施工图合作:建盟设计集团有限公司
图片摄影:James Young

BIM建筑网



























