作为山东省省会,济南市不仅是全省政治、经济、文化和科教中心,也是拥有“山、泉、湖、河”独特自然风貌的旅游城市和国家历史文化名城。省会文化艺术中心三馆位于济南西部新城的核心区,场地方正,每侧边长约为400米。场地南侧为省会文化艺术中心大剧院。作为城市规划层面的文化地标,项目建设总用地面积为16.02公顷,总建筑面积为38万平方米,共分为两期建设,从竞赛到完全建成累计近12年,工作室在过程中面临场地规模、建筑体量、城市尺度等诸多挑战。
泺蕴泉涌项目设计的概念源自于“泺蕴泉涌”的灵感。泺为济南之古称,济南诸泉汇为“泺水”;蕴为文化底蕴;泉涌即泉水涌动。流动的泉水汇成河流,犹如这座城市的文化源泉汇聚到这里。建筑形体高低起伏,充满张力,仿佛泉水的涌动。
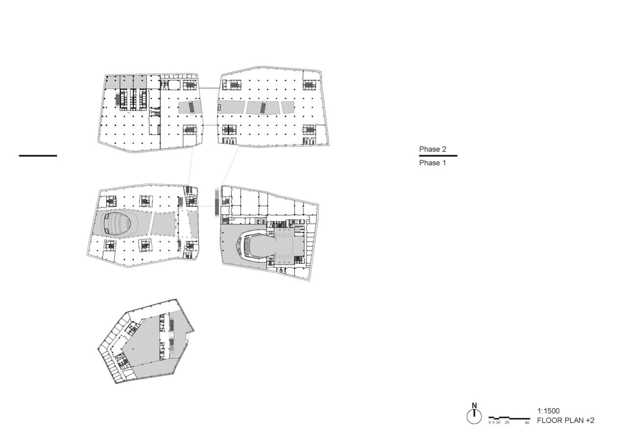
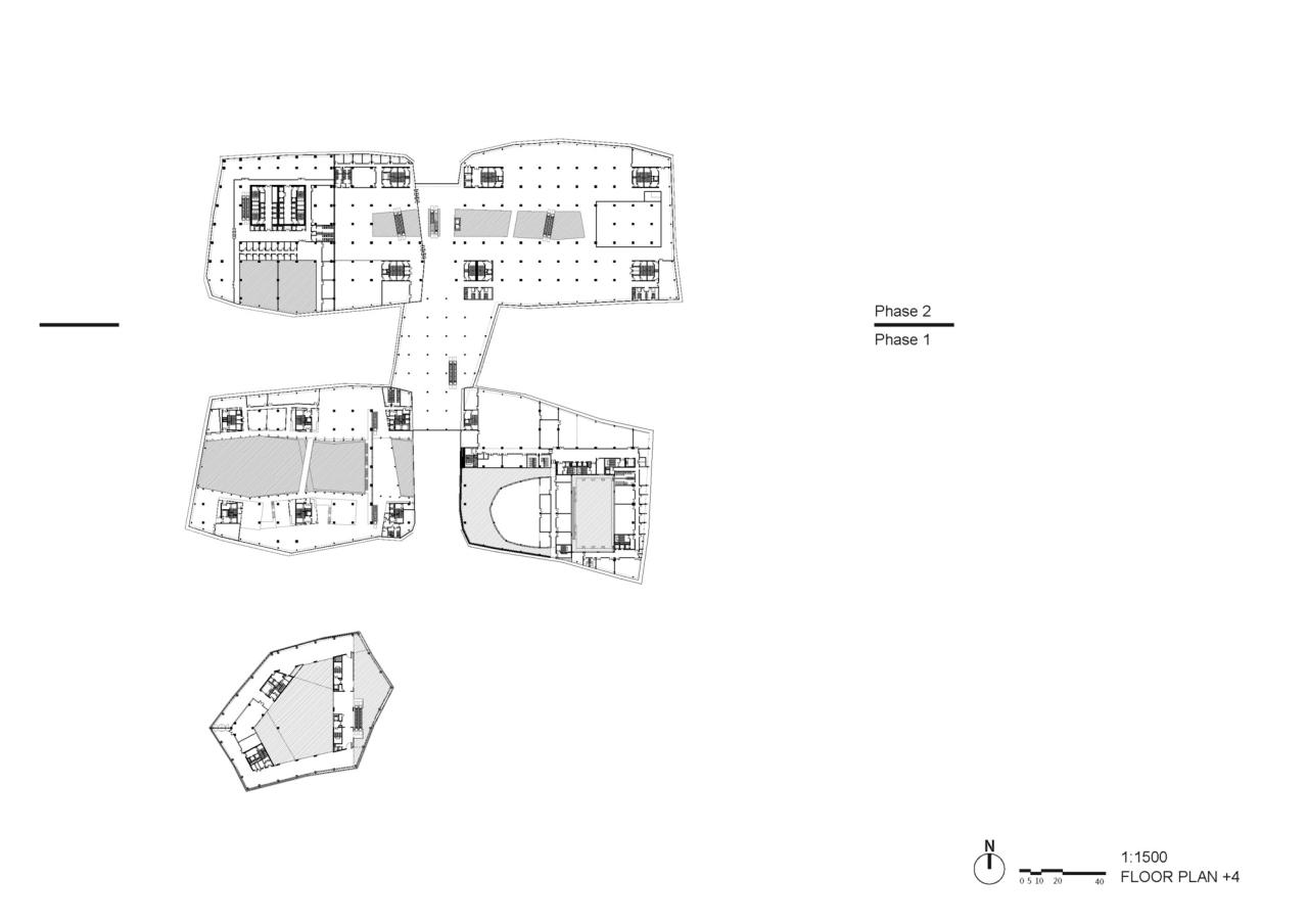
水畔三馆西侧腊山河为场地内重要的自然景观,建筑体量沿河流方向由南向北被分成三块,由此形成的两条通路将水岸景观延伸到地块中。一条南北轴线从建筑体量正中贯穿,形成主轴公共空间,与东南角的入口广场结合,完成联结各个功能建筑的主要流线。项目一期主要建筑包括美术馆、图书馆、群众艺术馆。二期主要功能包括会议、展览、酒店、办公、商业及配套设施。
济南市美术馆作为单体独立于其他两栋建筑之外。建筑共四层,馆内共设7个展厅:1个大型展厅、2个中展厅和4个小展厅。图书馆共五层,主体建筑为钢结构。一层至五层为公共阅览空间,藏书量约120万册。地下一层设有540座报告厅及1600平方米的学术交流区。群众艺术馆主体建筑与图书馆相连,共六层。馆内包含群艺馆及五大艺术剧团的办公室。群艺馆中设有775座的群星剧场和非物质文化遗产中心。项目以文化功能为重心的同时,商业配套也是重要的一环。二期的高层塔楼及裙楼提供多种商业功能,复合的功能组合为项目带来更多的可能性。
光影城市建筑整体采用双层幕墙系统,外层由银灰色镂空铝板构成。内层采用浅灰色玻璃幕墙,外层幕墙设计灵感来源于当地自然景观,将其像素化处理后,通过不同大小的菱形排列组合构成立面。铝板的镂空大小与功能相对应,在满足室内采光需求的同时也兼顾遮阳的功能,并且承载了立面灯光的流动变换。独立的美术馆,立面设计是将泉水涌动而折射出的钻石般星光具象化。工作室还把灯光设计作为城市照明规划的一部分,严谨地思考幕墙照明和场地照明的结合。设计将钻石、泉水、水墨元素融入照明设计中,以动态的模式将其变成柔美的画卷。
工作室为建筑立面细节的处理和材料的使用赋予了诗意与情感,不是单纯的视觉凸显,而是让建筑表面与周边环境产生共鸣。从建筑内部向外看,镂空处将城市景色随机截取,创造意想不到的惊喜。从外部欣赏,灯光展示着济南独特的文化标签,传递出千年的历史底蕴。
项目图纸
△效果图
△总平面图
△一层平面图
△二层平面图
△三层平面图
△四层平面图
△五层平面图
△立面图
△剖面图
项目信息
建筑师: 法国AS建筑工作室
面积: 380000 m²
项目年份: 2022
摄影师:RAWVISION studio, Olivier Marceny, SHUHE
主创建筑师: René-Henri ARNAUD
结构顾问: MaP3 -Engineering & Structural Design
灯光照明顾问: Agence 8'18'' Concepteurs & Plasticiens Lumière
舞台声学专业顾问: 中广电广播电影电视设计研究院
幕墙顾问: SCHEMIDLIN
施工方: 中建国际(深圳)设计顾问有限公司
合作设计方: 山东同圆设计集团有限公司、CCDI
图书馆设计顾问: ROUX ROUILLET
委托方: 济南市西区建设投资有限公司
地点: 济南

BIM建筑网





























