前泰国银行东北地区办事处建于现代,位于孔敬市中心,周围环绕着学校、市场、社区和住宅区。该建筑有其独特的特点,华夫饼板屋顶和悬臂地板,这座建筑中明显体现网格模块化。现有包括办公楼、员工住宅和拆除的钞票部门。在银行搬到新地方后,这座建筑旨在改变其功能,为城市中的人们服务。这次翻新工程打算建成孔敬财政部博物馆,有博物馆建筑、画廊空间、多功能展馆、公园和可以举办活动的办公室组成。该设计保留了现代的独特性,同时调整了一些元素,以使其与新功能相匹配。
在主楼的一楼,拆除了先前高度安全功能所需的不透明高墙,能让更多的自然光进入建筑物,照射着公共区域和图书馆,并且室内外能互相看到。同时,在二楼,建筑物中间的先前屋顶花园变成了展览的主厅,顶部打造新的屋顶。新的大屋顶仍然允许间接的自然光进入建筑物,并为双倍体积空间创造一个与一楼有视觉联系的井。
博物馆功能在二楼主厅周围。曾经是安全元件的钢筋元件是现有钢的一部分,也是弯曲钢的一部分。两者在该项目中被重新用于许多地方,例如主厅覆盖新的电梯井,甚至是办公室部分的下落顶篷天花板。新的画廊空间曾经是员工住所。小房子的装修暴露了结构,以显示其迷人的特色,使其在一楼设有咖啡厅,在二楼设有画廊。垂直鳍片创造了一种概念形式,以表达先前建筑师意图的浮动效果。
多功能展馆有一个非常漂亮的悬臂屋顶结构,毗邻停车区,新设计旨在将停车区变成一个公园,并将新功能和景观空间融合在一起。织机概念与“Pha-Khao-Mah”(带有彩色图案织物的随机网格)一起被选为景观工作的主要概念,建筑与人之间的编织过程意图,带来生动的动态景观为编织者创造具有新视野视角的新效果。它在织物景观上提供了生动的活动。该项目的设计利用当地特色和独特迷人的现代特色,为公共用途创造空间,不仅使建筑恢复生机,而且在为城镇的许多新活动提供多功能的有用场所的同时,还获得了历史价值。
项目图纸
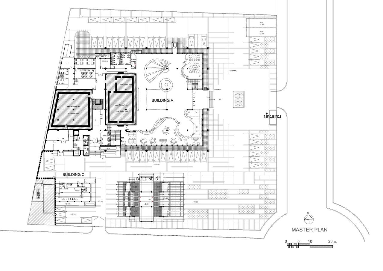
△总平面图
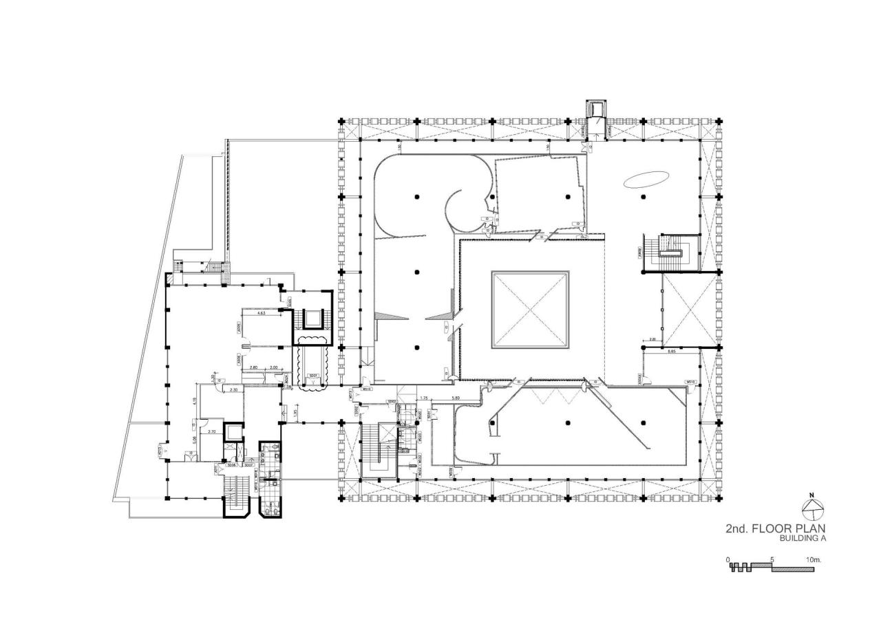
△二层平面图
△剖面图
△剖面图
△立面图
△立面图
△立面图
△立面图
△剖面图
△立面图
△剖面图
△立面图
△立面图
项目信息
建筑师: Plan Architect
项目年份: 2022
摄影师:Panoramic Studio
厂家: American Standard, TOA, Thaisoung, WILLY
主创建筑师: Wara Jithpratuck
设计团队: Tearnchit Soontornsaraton, Jittinun Jithpratuck, Sitthinon Chanchaiworawit
展览设计: Plan Motif
景观设计: GLA Desgin Studio
结构设计: PPL
地点: 泰国

BIM建筑网






























