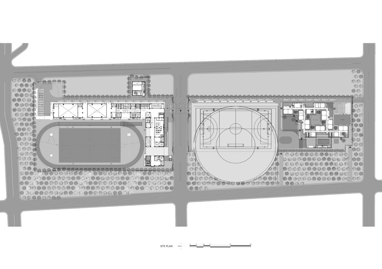
Shiv Nadar SchoolFaridabad(SNSF)是该集团继古尔冈和诺伊达之后开设的第三所学校。SNSF 是三所学校中最大的校园,占地 13 英亩,有两个足球场,一条400m长的跑道和一个板球场。它位于一个30至50m深的公共绿化带后面。作为一个600m长的线性地块,用一条中间道路隔开,南侧是小规模的学前教育馆,围绕着一个院子,延伸到北侧的小学、初中和高中建筑,是一个L型线性建筑,其北侧具有多孔特征。建筑物朝向与Hauz Khas综合体一样,面向10月至6月期间北风和西风的主风风向,以获得来自绿化带和空旷场地最佳交叉通风。
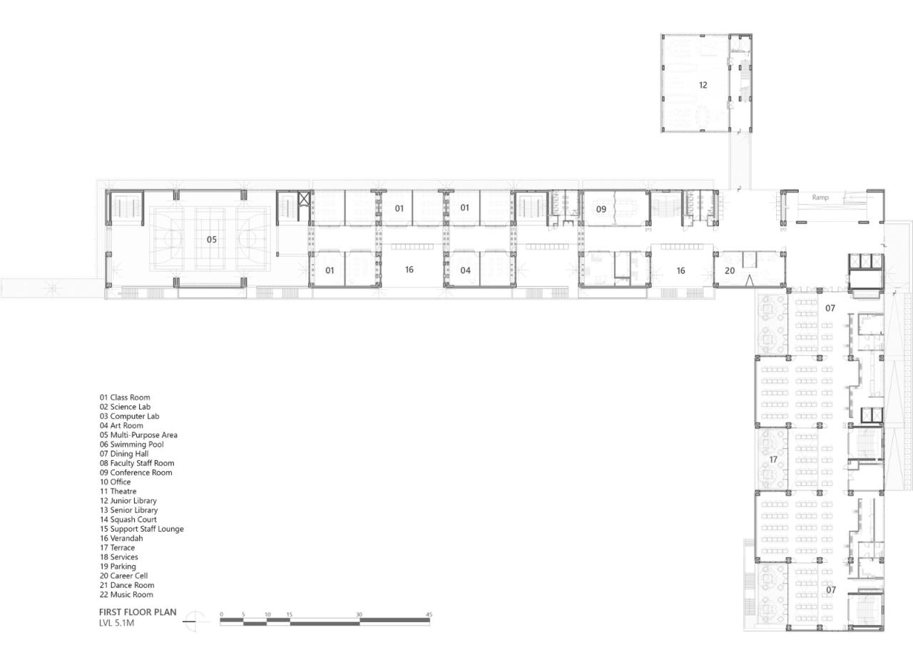
该项目以15m长的模块为基础,创造了一个2层楼高的预支模块,可以容纳4间教室,或2个艺术、活动或实验室的功能模块,也可设计为一个双高阳台或一个露台花园。该项目就像一艘长船,在运动场上有非常大的开口:通过水平开孔和天窗设置有6m宽的循环流通系统,以创造对角线的视野,在深层建筑的中心提供光线和通风。
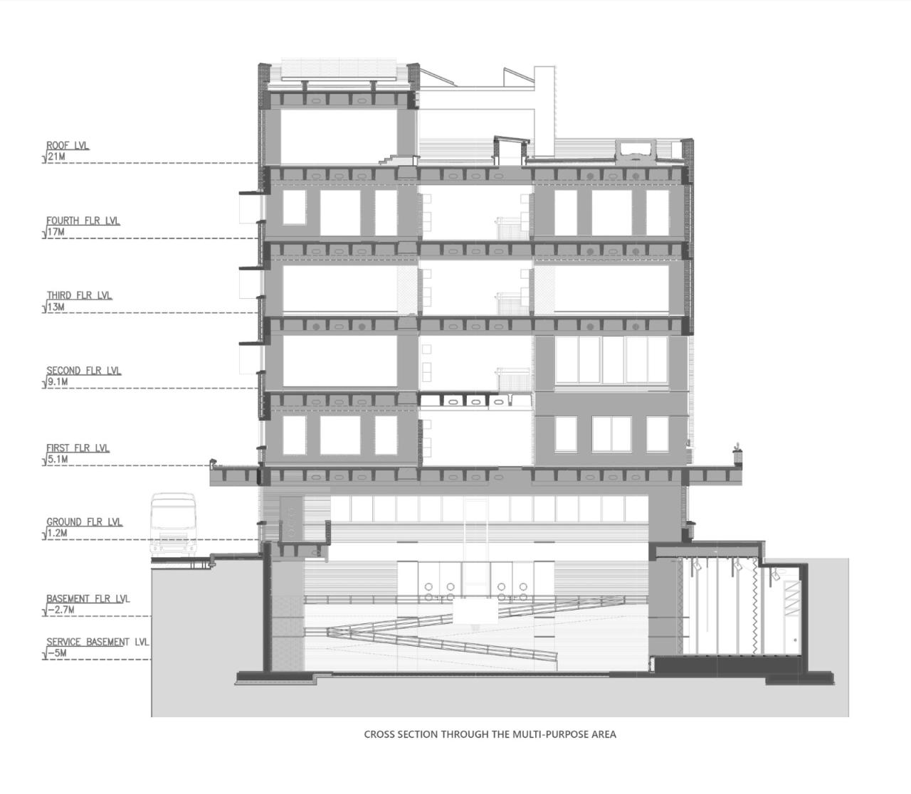
第一层,像一个大基座,提供双层净高的有顶操场和游廊。用于体育活动的多功能厅以及1000个座位的礼堂位于半地下室,有一个有顶的游泳池。戏剧、绘画、艺术和手工艺以及音乐等活动室都可以直接通往露台花园,活动可以在户外进行。室内与室外的关系变得更加复杂和立体,而不仅仅是教室与底层庭院的辩证关系。
SNS项目重新审视了水平类型学在学校作为庭院建筑或暗光长走廊线性建筑的应用,以提供一个多通道的线性建筑。它在一个系统而灵活的模块模式中拥有所有的设施。这个理念通过使用长15m,宽2.4m,深2英尺的预应力双T型板,现场浇筑,重型移动吊车起吊的模式实现安装。大跨度预制技术的使用是突破性的,挑战了600平方英尺教室作为结构受力网格的类型学,它也解决了最近较之前更密集、更高的学校建筑建造问题。
单色的结构完全暴露在灰色的RCC上,粘土或混凝土砖被来自次要工业元素的颜色所平衡,如金属门、瓷砖和标牌。
项目图纸
△剖透视
△总平面图
△地下一层平面图
△一层平面图
△二层平面图
△三层平面图
△四层平面图
△五层平面图
△屋顶平面图
△剖面图
△剖面图
△剖面图
△剖面图
△剖面图
△立面图
△立面图
项目信息
建筑师:Stephane Paumier Architects
面积:41900m²
项目年份:2019
摄影师:Amit Pasricha
厂家:Hormann,Indo Solutions,Lighting technologies,Mitsubishi,Pioneer Bricks,Schuco
主创建筑师:Stephane Paumier, Shaily Gupta, Adil Abuzar
设计团队:Shaily Gupta Adil Abuzar Nikhil Jain Vaani Sood Imlinoachet Walling
功能:学校
MEP 顾问:dbHMS
施工方:Survi Projects Private Limited
结构设计:Melior Structural Solutions
地点:印度,Faridabad

BIM建筑网


































