温州肯恩大学校园规划的重点项目——学生学习与活动中心坐落于校园轴线的中心,屹立在教学区与生活区的交汇处,是校园的地标形象与文化精神的象征。通透、轻盈的建筑,与中心湖景融为一体,你中有我,我中有你。这个项目将功能多元复合的学生活动中心与图书馆创新地结合起来,重新定义了大学校园图书馆的功能,体现出二十一世纪学习空间的变革发展。在这里,一动一静之间汇聚着校园的人流,成为校园生活的核心场所。
融合东西方文化理念的温州肯恩大学坐拥环山聚水的绝佳地理位置——吹台山将其三面环绕,丽塘河自西向东穿流而过。学生学习与活动中心的设计以现代主义诠释了传统的文化属性 “山水之乐得之心而寓之学也”——青山绿水,鸟语花香,自然中蕴含的潜能将被转化为灵感和精神力量。充满现代感的透明立面轻盈地将建筑空间延展到周边的景观之中,山水相拥的胜景被引入室内,空间的氛围随时间和季节而变化。建筑通透的视觉效果也与温州肯恩大学开放包容的办学理念不谋而合,旨在加强人与人的联系,促进交流与活动的发生。
建筑内的交通流线与校园主要人行步道相连接,从建筑底部一路延伸至顶层,形成了一条串联起各功能区的“垂直街道”。这条公共街道以“校园台阶”为原型,衍生出多个不同种类不同功能的“场所”,成为学生自由交流的起点。台阶创造的空间体验从室内延伸至室外,在校园内营造出生动活跃的社区氛围。
重复与强化的造型元素形成简明清晰的建筑语汇,随着水平体量的逐层叠加,建筑的力量感与仪式感也逐渐增强。屋檐的水平延伸成为室内的远眺框景,提供有效遮阳的同时将明亮的日光柔化为更适合阅读的光线,在建筑内部也投射出具有流动感的光影。夜幕降临时,笼罩在灯光下的建筑宛如校园中的一座灯塔。
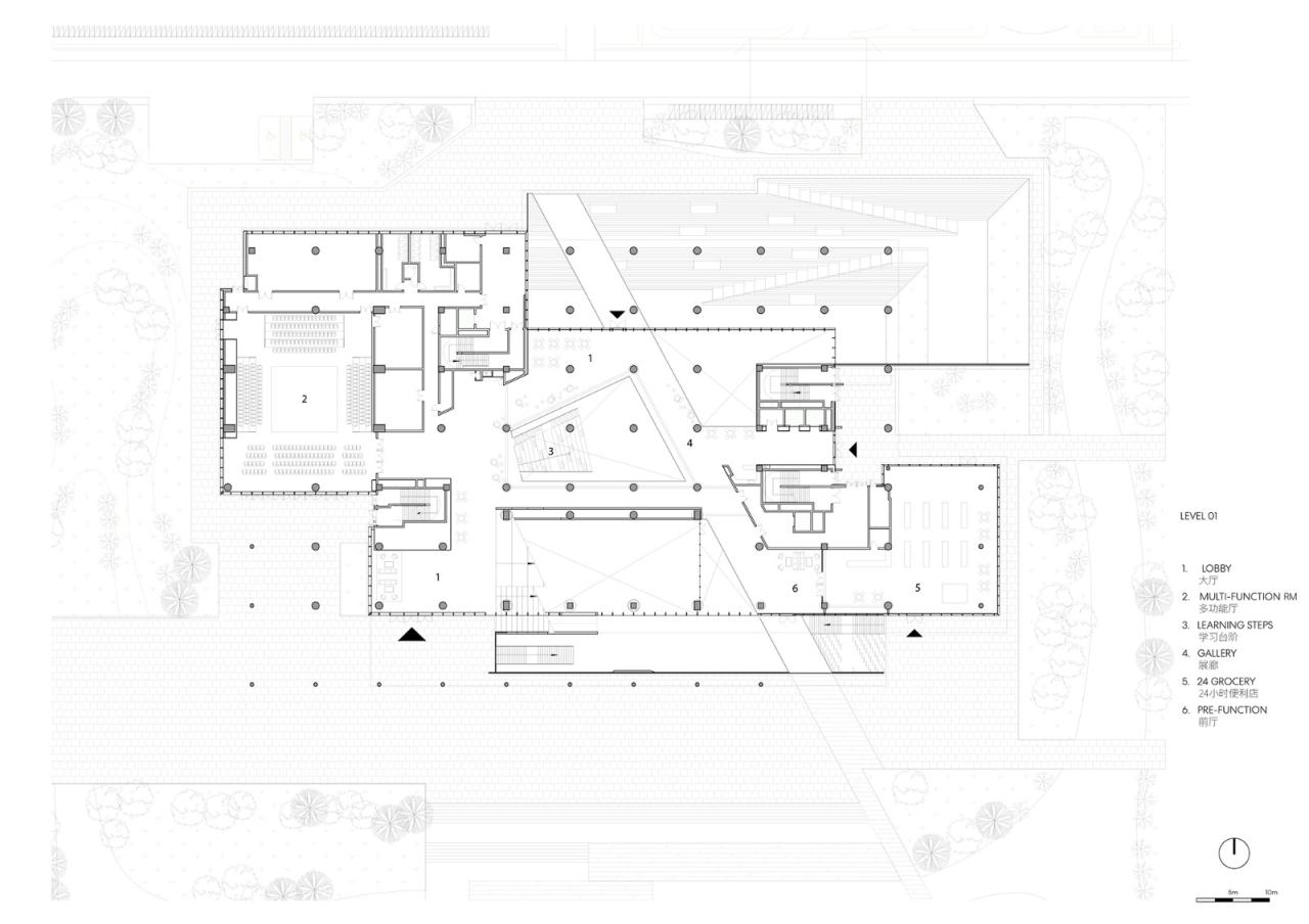
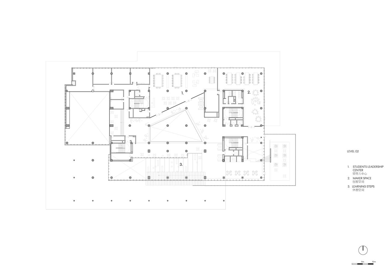
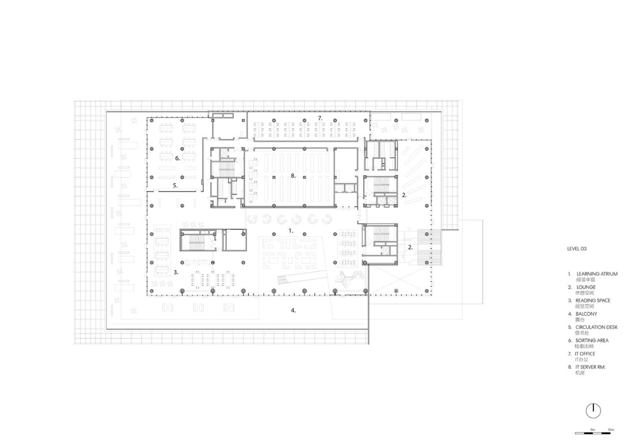
内部空间呈现出与外部秩序的截然不同的节奏,层叠交错的楼板形成活泼的韵律,充满了探索与创新的精神。建筑由学生活动中心、图书馆和信息技术中心三部分组成,低层活动相对公共、活跃;高层则较为私密、安静。
三部分功能空间围绕挑高的公共大厅展开。公共大厅是是热闹活跃的大学社区核心,为校园社群活提供活动场所,包含举办大型会议的演讲厅、灵活聚会的开放剧场和独具特色的学习台阶、学生服务中心、展厅以及与自然景观互动的咖啡书吧。
项目图纸
△鸟瞰图
△总平面图
△一层平面图
△二层平面图
△三层平面图
△四层平面图
△五层平面图
△六层平面图
△速写图
△分析图
△交通分析图
项目信息
建筑师:Perkins&Will
面积:25792 m²
项目年份:2023
摄影师:方方的田
厂家:China Southern Glass, Haida, Steelcase
主创设计师:James Lu
设计团队:James Lu, Hiroyuki Shinohara, Chen Qi, Zhang Siyuan, Li Jianping, Li Cen, Sun Yanfang, Joseph Huang, Natalie Seah
委托方:温州肯恩大学
合作设计方:浙江大学建筑设计研究院有限公司
景观设计:泛亚国际
立面顾问:迈进外墙建筑设计咨询(上海)有限公司
施工方:浙江省二建建设集团有限公司
地点:温州

BIM建筑网

































