斯图亚特街 212 号位于两个社区之间,对话湾村历史住宅区和波士顿“高脊”建筑集群。它摒弃了城市中比较传统的全玻璃高层建筑,设计团队试图为建筑外立面寻求品质和变化。该建筑采用了创新的材料和施工方法,其独特的立面由弧形凹陷饰板组成,在整个围护结构中饰板尺寸各异,与历史街区砖石等符号产生共鸣。
斯图亚特街 212 号在城市中以多种形体呈现。从远处看,该建筑与天空相接,有一个独特的剪影。在近处看,该建筑与地面相接,与人行道和街景相融,其门廊、花盆和铁制品与海湾村的住宅环境交相呼应。这座 19 层楼高的建筑还包含两栋联排别墅,使海湾村街景的北侧更加丰富。
该项目的位置——一个小的、不规则形状的场地,以前被用作停车场–带来了一些设计限制,包括其紧张的城市环境。在设计和施工的早期阶段,建筑围护结构与预制混凝土制造商和外墙安装商进行了沟通协调,以减少施工中的摩擦。该设计突破了多层凹板的制造极限,通常有 20 或 30 英尺高,跨越 8 个主要模具,通过优化施工顺序来减少安装时间。不规则间隔的凹板(由BPDL 在当地制作)和多层凹陷的玻璃幕墙凸显了建筑的垂直度,创造了一个部分与整体的关系,使斯图尔特街 212 号在波士顿的天际线与众不同。
这些面板在工厂被仔细地标记和订购,并按照确切的安装顺序装上卡车。在现场,面板用起重机直接从卡车上取下并悬挂在建筑上,省去了耗时的安装支架搭设过程。住宅单元的玻璃采用了从地板到天花板的窗墙形式,在混凝土板上间隔设置隔板玻璃。玻璃板厚度从两端 12 英寸到中心 5 英寸不等,这就使其具有戏剧性的深度和阴影,同时也使外墙可以部分自掩。
项目图纸
△基地示意图
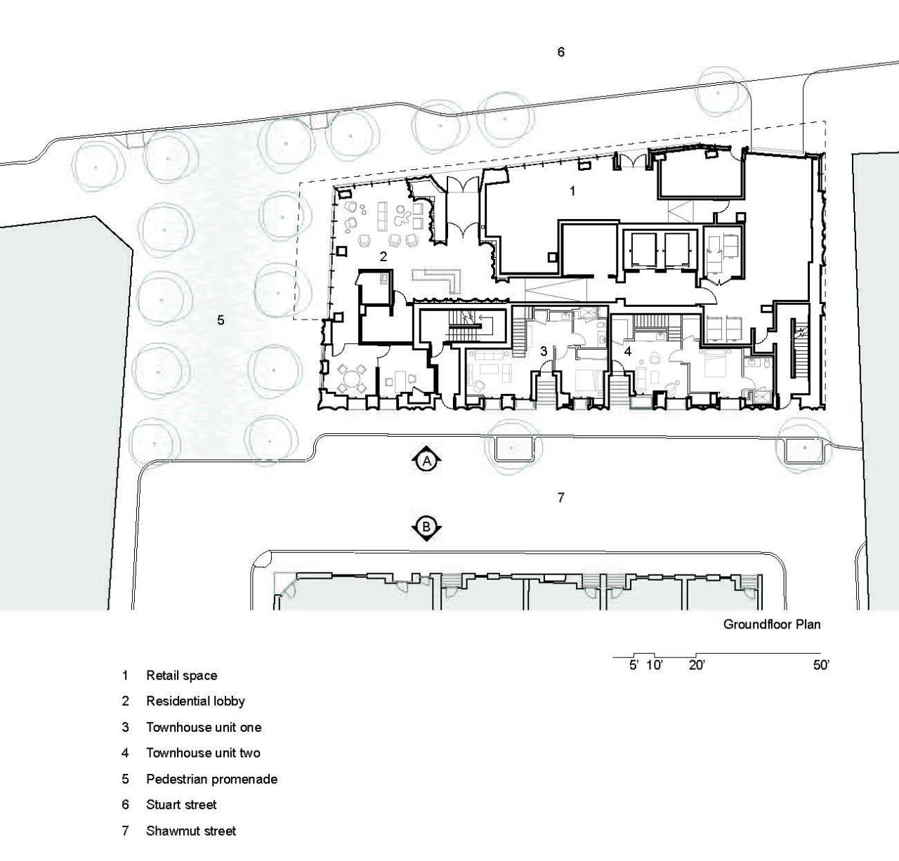
△平面图
△表皮分析图
△细部大样图
项目信息
建筑师:Höweler + Yoon Architecture, Sasaki
面积:146000 ft²
项目年份:2022
摄影师:Chuck Choi
设计团队:J. Meejin Yoon, Eric Höweler, Kyle Coburn, Jacob Bruce, Sophie Juneau, Sarah Martos, Daniel Fougere, Caleb Hawkins
登记建筑师:Sasaki
景观建筑师:Sasaki
总承包商:Consigli Construction Company
结构工程师:McNamara Salvia
MEP 工程师:AHA Engineers
室内设计:Elizabeth Stuart Design
立面顾问:Vidaris
地点:美国,Boston

BIM建筑网















