地块位于 Bratislava 郊外,可以俯瞰森林,业主是一个在不断发展的大家庭,他们希望居住在砖房里。然而因为新的住宅在附近迅速建成,地块的朝向成为一个难点。设计想法是通过光线,透明空间连接三座房子,这样阳光可以照射到所有房间,并且即使位于周边都是建筑的区域,也能保持私密性。
砖房在当地有着很悠久的历史,是大家很熟悉也很容易习惯的。在这种情况下,我们将烧焦的砖块与对比鲜明的光滑表面相结合,使其独特的质感脱颖而出。砖块有多种使用方法,外墙立面砖、阳台铺面砖、镜面砖、窗台和房屋内部的砖、拱门上的砖,作为建筑物开口处的半透明帘的砖块。
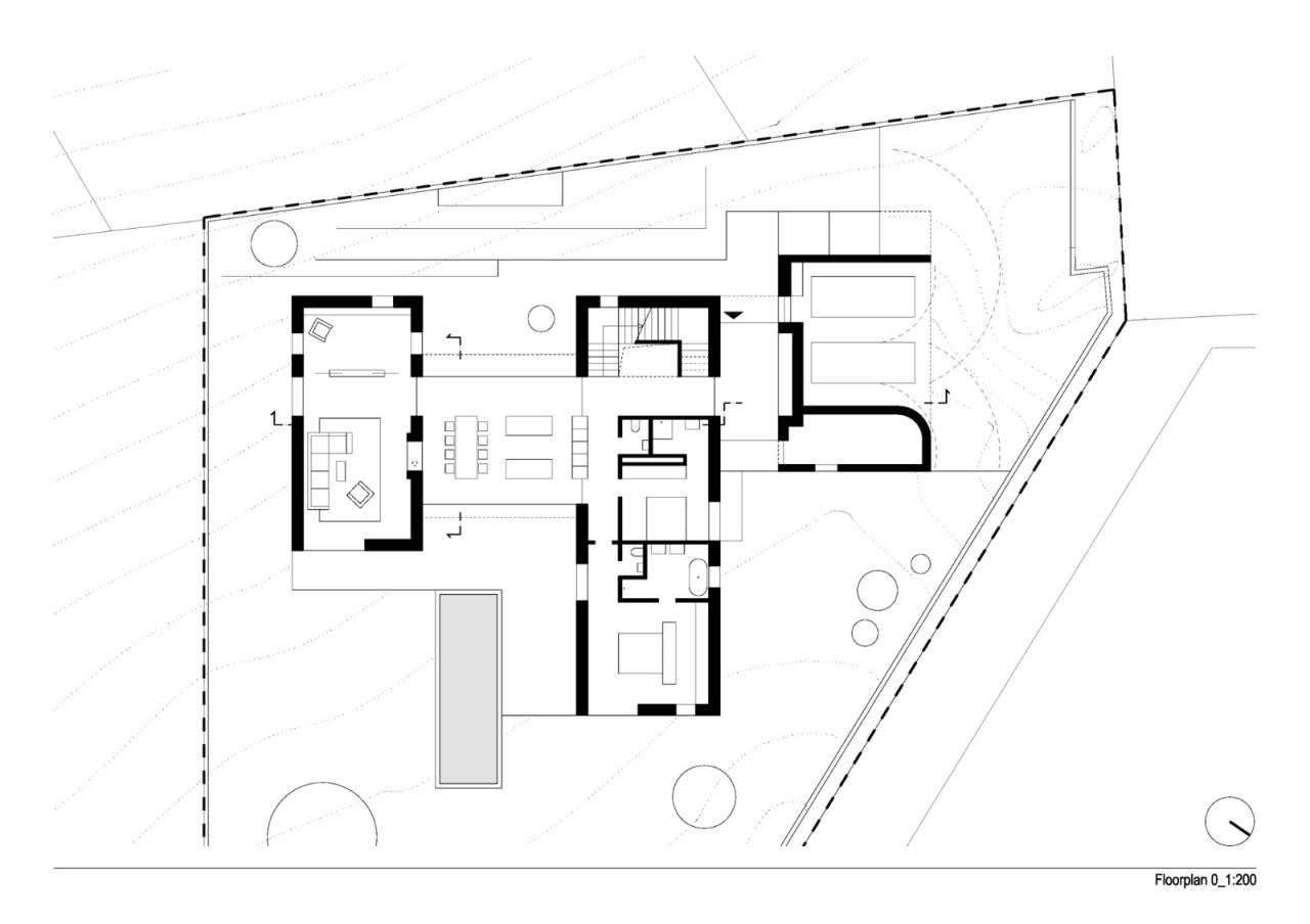
三间砖砌房屋承载了各种功能。在最大的两层楼里,我们设置了一个私人区域——卧室和儿童房。宽敞的楼梯间有充足的日光和精心布局的窗户,享有花园的轴向景观。中等大小的房子包括一个带双面壁炉的客厅和一个部分分开的图书馆。起居室被抬高,阳光能够透过天花板下的玻璃条从西南方向照射进来。最小的房子位于地块入口处,为汽车和花园服务创造了空间。
在砖房中,我们嵌入了明亮的玻璃空间,可以从两侧进入。体量较小的是入口大厅,较大的是六口之家的主要生活空间,一个带餐厅和壁炉的厨房。这里的生活中心是一张大餐桌和两个厨房岛台。这种非标准的厨房布局让父母在做饭时可以更好地看到房子两边,游泳池朝向东北,可以看到较小的西南露台。
窗户在实心墙上的位置是经过精心设计的,我们把它们像画一样布置。另一方面,玻璃空间是轻盈、开放的结构,混凝土横梁天花板可以自然过渡到外部,一条轴线贯穿整个房子,连接所有空间,可以看到花园的美景。
外墙由砖、矿棉保温层和通风气隙组成。立面由比利时Marziale面砖组成。所有钢筋混凝土天花板集成了冷却系统。结合热泵、空气回收和水井的使用满足花园需求,创造了一座生态建筑,可持续且环保。
项目图纸
△基地示意图
△总平面图
△一层平面图
△负一层平面图
△二层平面图
△剖面图
△剖透视
项目信息
建筑师:ARCHITEKTI mikulaj & mikulajova
面积:358m²
项目年份:2023
摄影师:Matej Hakár
厂家: Agape,Astro Lighting,Bega,Blinds and curtains,Cesi,Classicon,FLOS,Fabrick,Homola Furniture,Jalousie,Janosik okna a dvere,Laufen,Mutina,Steinberg,Wever & Ducré Lightning
主创建筑师:Juraj Mikulaj, Andrea Ambrovicova Mikulajova
设计团队:Jana Machalova, Tomas Chovanec
项目功能:家庭住宅
景观设计:Atelier DIVO
结构工程师:Ing. Frantisek Hladky
照明设计:The Light
地点:斯洛伐克,Záhorská Bystrica

BIM建筑网































