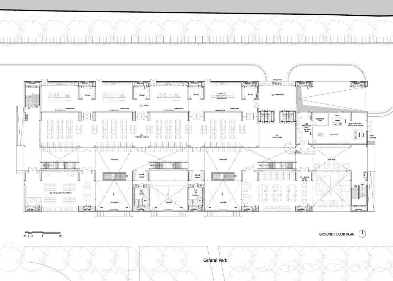
印度艾哈迈达巴德大学中心的有机设计主旨由学校董事会授意,意在打造一个正式教学空间间的枢纽。建筑旨在构建一个中心:在此,它既是学术生活的孵化器,也是正式教学区块外碰撞出新想法的互动空间。建筑位于带有地下停车场的车辆入口处,同时也是城市与校园步行区的之间的门户。街头美食文化对艾哈迈达巴德的城市肌理及校园生活至关重要,由此设计师将街道延伸至建筑内形成美食广场的设计,并让人们可以直接前往位于首层的美食街。连接土耳其加拉塔区(Galata)和伊斯坦布尔的艾米诺努区(Eminonu)的加拉塔桥(Galata Koprusu)设计激动人心,这座桥梁在底部设有一排餐厅,并让人们可以观赏金角湾的美景,而这样的设计也由此启发了校园内的规划:三个通向公园的露台可以用作音乐表演场所,同时也为学生们提供了树下乘凉的一席之地。
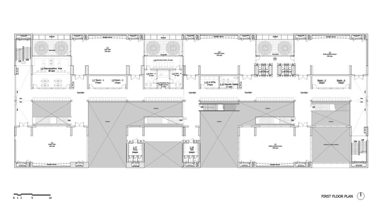
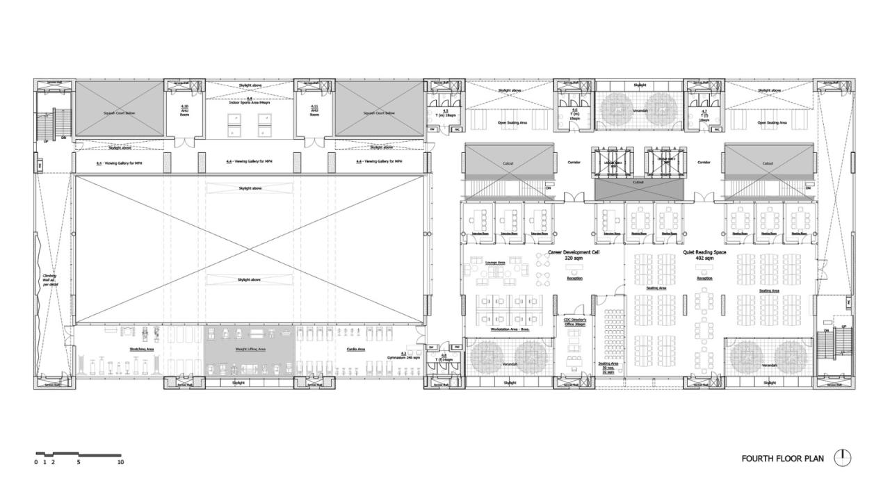
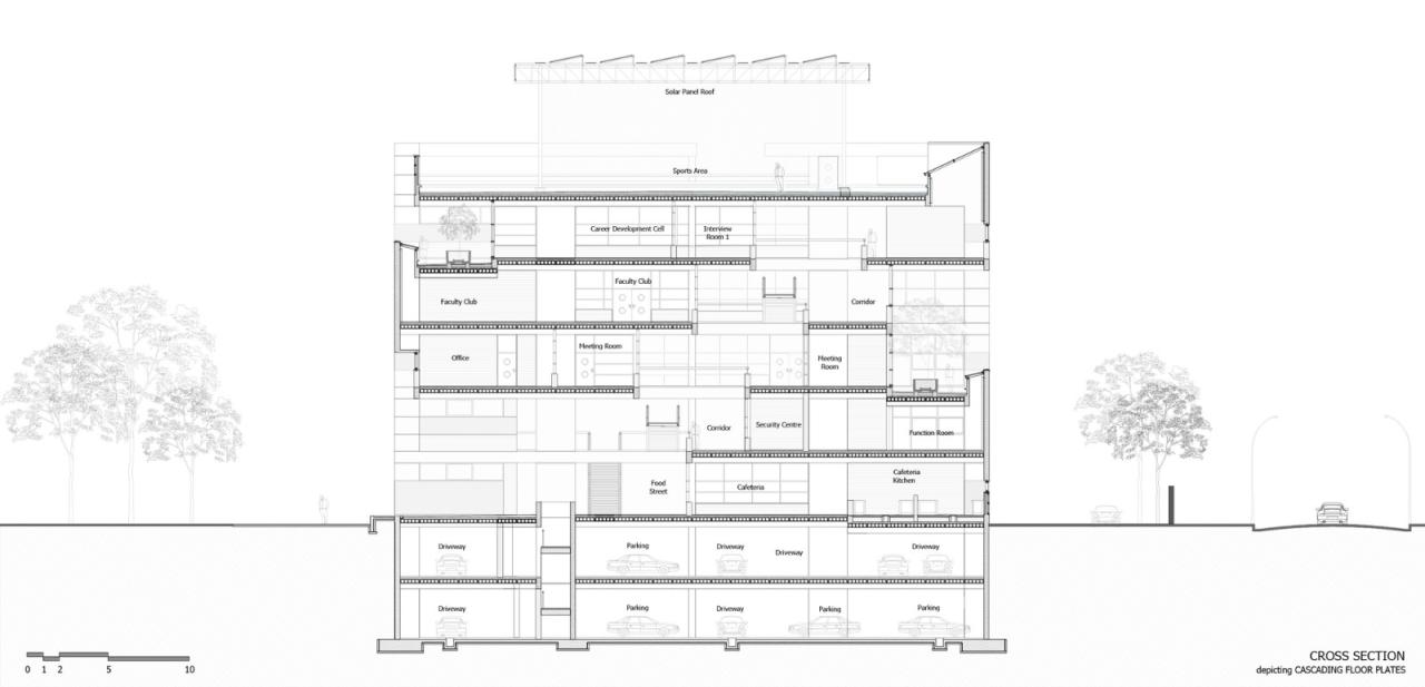
二层为有顶棚街道的延伸,并设有多功能室及俱乐部/活动室,人们可以从地面层直接进入。位于三层的大型多功能厅设有固定舞台,并可以举办电影、戏剧、舞蹈、会议和音乐等以表演为主题的活动。多功能厅内的座位为伸缩式滑动看台,因此这些灵活的看台可以垂直堆叠在墙边,以创造宽敞的室内空间,由此鼓励人们在此进行篮球、乒乓球、排球和羽毛球等运动。学校办公室位于三层东翼,教职员工可以通过阳台俯瞰中央切口和外部的风景。四层的东翼几乎完全是教师俱乐部和咖啡馆的所在地,东翼周边有一个面向中央公园和日落朝阳的遮阴阳台。五层为安静的阅读空间和职业发展室。屋顶则包含了跑道及 6×6 五人制足球场。
艾哈迈达巴德大学中心占地面积较大,为 96 米 x 36 米,因此在其核心内部引入自然光和通风是一个特殊挑战。建筑师采用了 3D 模型和可视化工具,并通过错开地板位置以让自然光从顶部流下,并让其从朝南的阳台反射,从而确保室内充足的照明。因此,自然光可以以对角线穿越建筑物。此外,错落的楼层也使建筑物看起来比实际大,并且学生们可以从不同的楼层看到彼此。在如 5 月 1 日国际劳动节、或 8 月 15 日印度独立日等特定的日子日出时,直射光线将会从东立面顶部斜射至底层。
项目是艾哈迈达巴德第一座使用预制混凝土技术打造结构的大型建筑,并同时采用了直径 12.7 毫米的细股线,从而代替了传统钢筋工厂的预制空心板。建筑的墙和梁由现浇混凝土打造,其楼板则均为预制。机电水系统的设计以高效的水资源再利用为核心。而建筑除了收集灰水外,还意在收集校园其他建筑的污水。回收后的水被用于灌溉、厕所冲洗、及冷却塔补充水等不同的目的。建筑的污水处理设施位于地下二层,并可以满足维持整个中央公园森林的灌溉。其屋顶的五人制足球场则被专门用于发电的太阳能棚顶覆盖,其中 450 个太阳能电池板可以生产 140 千瓦的太阳能光,因此可以在白天直接为风扇、灯具和电源插座供电。外立面的窗口全部由墙外向内凹,并向较深的游廊开敞,由此避免产生眩光,也减少设置了不必要的百叶窗和窗帘。也因此,建筑获得了 LEED 白金认证。
项目图纸
△总平面图
△一层平面图
△二层平面图
△三层平面图
△四层平面图
△五层平面图
△楼顶平面图
△地下一层平面图
△地下二层平面图
△剖面图
△剖面图
△剖面图
△剖透视
△剖透视
△剖透视
△细部结构大样图
△细部结构大样图
项目信息
建筑师:Stephane Paumier Architects
面积:20880m²
项目年份:2022
摄影师:Amit Pasricha,Umang Shah
厂家:Schüco,Acodor,JJ Bricks,LEGERO Lights,Urbanaac
建筑师:Vrushali Patil, Mayank Jain, Vrinda Jain, Shipra Dawar
总承包商:PSP Projects Ltd.
项目管理:JLL
结构顾问:Melior Structural Solutions
MEP顾问:Engineering Services Consultants (ESCON)
地点:印度,艾哈迈达巴德

BIM建筑网














































