位于英国达尔斯顿(Dalston)Gillett广场的Bradbury工厂现已重新向新租户和老租户敞开大门。新大楼涵盖了翻新的600平方米经济适用工作空间、更换的十个迷你小型零售单元,以及在两层扩建中打造近 500 平方米的额外工作区。Bradbury 工厂是首都以社区为中心、最独特的公共空间之一,代表了该类型发展历程的未来。
该方案旨在保留原有建筑(包括其租户)的最佳状态,同时提供额外的灵活空间以适应各种业务。新的10 平方米底层零售舱面向广场,设有可完全打开的玻璃门面,由异型金属门进一步保护开关安全和隐私,对外开放时可以通过生机勃勃的招牌改变单个空间。
现有维多利亚式露台的原始砖石结构得以保留、并进行修复翻新,成为现在10到36 平方米的中小型工作空间单元,同时保留面向Bradbury街的现有商店、酒吧和餐馆。带遮篷的通高户外露台提供通往上层单元的通道。野餐桌、常绿蕨类植物和攀缘植物旨在鼓励租户一年四季都相聚,增加与广场的互动。在三楼,新的工作空间设有可通过朝南的户外平台进入私人夹层。
通过提供新的全玻璃入口,保留和改善的原有入口进入新建筑,[Y/N] Studio设计了新的品牌与标识。现有的楼梯间和入口处根据“CMYK”印刷颜色范围重新粉刷成青色、品红色、黄色和黑色,可以采用四种简单且对比鲜明的颜色组合来创作任何艺术品。
这反映了该建筑旨在成为一个文化和学科的大熔炉,价值大于其各部分的总和。在大楼的所有其他区域,暗灰色地板和白油漆墙面的简单色调使租户可以根据自己的需求和个性来定制自己的空间。
最后,这座建筑被包裹在一个同材质的聚碳酸酯立面中,并配有精轧铝基座和屋顶。轻盈且反光的表皮营造出一种独特的外观,然而从外部仔细观察,材料的半透明特性使白漆砖立面与露台仍然朦胧可见。
后方立面允许充足的光线进入工作空间和休息区。白天,外覆层反映了天空和外部环境不断变化的颜色,而在夜间的灯光着揭示了室内活动。
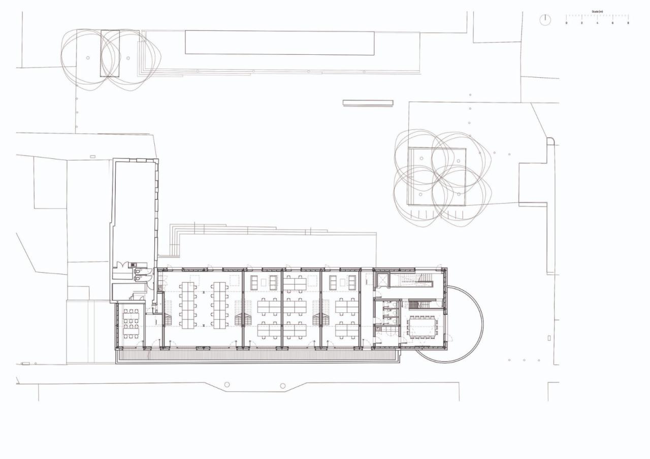
项目图纸
△基地示意图
△一层平面图
△二层平面图
△三层平面图
△四层平面图
△五层平面图
△屋顶平面图
△立面图
△立面图
△立面图
△剖面图
△剖面图
△结构示意图
△细部大样图
项目信息
建筑师:[Y/N] Studio
面积:1578m²
项目年份:2022
摄影师:French + Tye
厂家: IdealCombi,Jakob,RODECA GMBH,Russwood,Staco,Vectorworks,Velux
项目管理:Helios Project Management, Alex Smith
项目团队:Maegan Icke, Elena Gruber, Roxani Tseranidou, Margherita Zompa, Carolina Borgatti, Ezmira Peraj, Ainhoa Valle
规划/用途/建筑功能:Workspace, Commercial
主承包商:Vortex Interiors
结构工程师:Engenuiti
M&E 顾问:Thornley and Lumb
工料测量:Beacon Project Services
规划顾问:JMS Planning and Development
室内设计:[Y/N] Studio
遗产顾问:KM Heritage
地点:英国,Dalston

BIM建筑网![BIM建筑|商业社区,Bradbury 工厂 / [Y/N] Studio BIM建筑|商业社区,Bradbury 工厂 / [Y/N] Studio](https://img.bimii.com/wp-content/uploads/2023/06/8d0761f23193015.jpg)
![BIM建筑|商业社区,Bradbury 工厂 / [Y/N] Studio BIM建筑|商业社区,Bradbury 工厂 / [Y/N] Studio](https://img.bimii.com/wp-content/uploads/2023/06/8708025ee511d7b.jpg)
![BIM建筑|商业社区,Bradbury 工厂 / [Y/N] Studio BIM建筑|商业社区,Bradbury 工厂 / [Y/N] Studio](https://img.bimii.com/wp-content/uploads/2023/06/a0966f65f15b7b8.jpg)
![BIM建筑|商业社区,Bradbury 工厂 / [Y/N] Studio BIM建筑|商业社区,Bradbury 工厂 / [Y/N] Studio](https://img.bimii.com/wp-content/uploads/2023/06/435c579722b4fce.jpg)
![BIM建筑|商业社区,Bradbury 工厂 / [Y/N] Studio BIM建筑|商业社区,Bradbury 工厂 / [Y/N] Studio](https://img.bimii.com/wp-content/uploads/2023/06/e5683151abfa3e4.jpg)
![BIM建筑|商业社区,Bradbury 工厂 / [Y/N] Studio BIM建筑|商业社区,Bradbury 工厂 / [Y/N] Studio](https://img.bimii.com/wp-content/uploads/2023/06/bbf3cb917501b5e.jpg)
![BIM建筑|商业社区,Bradbury 工厂 / [Y/N] Studio BIM建筑|商业社区,Bradbury 工厂 / [Y/N] Studio](https://img.bimii.com/wp-content/uploads/2023/06/5c2ada649468016.jpg)
![BIM建筑|商业社区,Bradbury 工厂 / [Y/N] Studio BIM建筑|商业社区,Bradbury 工厂 / [Y/N] Studio](https://img.bimii.com/wp-content/uploads/2023/06/000c4f3117fc05d.jpg)
![BIM建筑|商业社区,Bradbury 工厂 / [Y/N] Studio BIM建筑|商业社区,Bradbury 工厂 / [Y/N] Studio](https://img.bimii.com/wp-content/uploads/2023/06/0e7173fbeb70c09.jpg)
![BIM建筑|商业社区,Bradbury 工厂 / [Y/N] Studio BIM建筑|商业社区,Bradbury 工厂 / [Y/N] Studio](https://img.bimii.com/wp-content/uploads/2023/06/14d459aa01fd153.jpg)
![BIM建筑|商业社区,Bradbury 工厂 / [Y/N] Studio BIM建筑|商业社区,Bradbury 工厂 / [Y/N] Studio](https://img.bimii.com/wp-content/uploads/2023/06/70c8d14cd415fdc.jpg)
![BIM建筑|商业社区,Bradbury 工厂 / [Y/N] Studio BIM建筑|商业社区,Bradbury 工厂 / [Y/N] Studio](https://img.bimii.com/wp-content/uploads/2023/06/f458f2854fb2001.jpg)
![BIM建筑|商业社区,Bradbury 工厂 / [Y/N] Studio BIM建筑|商业社区,Bradbury 工厂 / [Y/N] Studio](https://img.bimii.com/wp-content/uploads/2023/06/37e0e6c4476800a.jpg)
![BIM建筑|商业社区,Bradbury 工厂 / [Y/N] Studio BIM建筑|商业社区,Bradbury 工厂 / [Y/N] Studio](https://img.bimii.com/wp-content/uploads/2023/06/38a0de37a83146b.jpg)
![BIM建筑|商业社区,Bradbury 工厂 / [Y/N] Studio BIM建筑|商业社区,Bradbury 工厂 / [Y/N] Studio](https://img.bimii.com/wp-content/uploads/2023/06/f1aeedebc66c4a3.jpg)
![BIM建筑|商业社区,Bradbury 工厂 / [Y/N] Studio BIM建筑|商业社区,Bradbury 工厂 / [Y/N] Studio](https://img.bimii.com/wp-content/uploads/2023/06/1f8383ac7b5ebf0.jpg)
![BIM建筑|商业社区,Bradbury 工厂 / [Y/N] Studio BIM建筑|商业社区,Bradbury 工厂 / [Y/N] Studio](https://img.bimii.com/wp-content/uploads/2023/06/5b9393a0e823a5a.jpg)
![BIM建筑|商业社区,Bradbury 工厂 / [Y/N] Studio BIM建筑|商业社区,Bradbury 工厂 / [Y/N] Studio](https://img.bimii.com/wp-content/uploads/2023/06/ff43f1679a3d369.jpg)
![BIM建筑|商业社区,Bradbury 工厂 / [Y/N] Studio BIM建筑|商业社区,Bradbury 工厂 / [Y/N] Studio](https://img.bimii.com/wp-content/uploads/2023/06/7f3b50b188c451f.jpg)
![BIM建筑|商业社区,Bradbury 工厂 / [Y/N] Studio BIM建筑|商业社区,Bradbury 工厂 / [Y/N] Studio](https://img.bimii.com/wp-content/uploads/2023/06/8d858af62c4acc8.jpg)
![BIM建筑|商业社区,Bradbury 工厂 / [Y/N] Studio BIM建筑|商业社区,Bradbury 工厂 / [Y/N] Studio](https://img.bimii.com/wp-content/uploads/2023/06/5eb496e33b52e46.jpg)
![BIM建筑|商业社区,Bradbury 工厂 / [Y/N] Studio BIM建筑|商业社区,Bradbury 工厂 / [Y/N] Studio](https://img.bimii.com/wp-content/uploads/2023/06/c42e5002d3bf0cb.jpg)
![BIM建筑|商业社区,Bradbury 工厂 / [Y/N] Studio BIM建筑|商业社区,Bradbury 工厂 / [Y/N] Studio](https://img.bimii.com/wp-content/uploads/2023/06/b310e73a3a7e53a.jpg)
![BIM建筑|商业社区,Bradbury 工厂 / [Y/N] Studio BIM建筑|商业社区,Bradbury 工厂 / [Y/N] Studio](https://img.bimii.com/wp-content/uploads/2023/06/d95805d052bda3e.jpg)
![BIM建筑|商业社区,Bradbury 工厂 / [Y/N] Studio BIM建筑|商业社区,Bradbury 工厂 / [Y/N] Studio](https://img.bimii.com/wp-content/uploads/2023/06/8847a62a4c649bc.jpg)
![BIM建筑|商业社区,Bradbury 工厂 / [Y/N] Studio BIM建筑|商业社区,Bradbury 工厂 / [Y/N] Studio](https://img.bimii.com/wp-content/uploads/2023/06/e60a2530f7ff84f.jpg)
![BIM建筑|商业社区,Bradbury 工厂 / [Y/N] Studio BIM建筑|商业社区,Bradbury 工厂 / [Y/N] Studio](https://img.bimii.com/wp-content/uploads/2023/06/afb9b4636313a0b.jpg)
![BIM建筑|商业社区,Bradbury 工厂 / [Y/N] Studio BIM建筑|商业社区,Bradbury 工厂 / [Y/N] Studio](https://img.bimii.com/wp-content/uploads/2023/06/59ce77f8aa127cd.jpg)
![BIM建筑|商业社区,Bradbury 工厂 / [Y/N] Studio BIM建筑|商业社区,Bradbury 工厂 / [Y/N] Studio](https://img.bimii.com/wp-content/uploads/2023/06/37df70bad0e5dae.jpg)
![BIM建筑|商业社区,Bradbury 工厂 / [Y/N] Studio BIM建筑|商业社区,Bradbury 工厂 / [Y/N] Studio](https://img.bimii.com/wp-content/uploads/2023/06/cb1e7b9c3feb5d7.jpg)
![BIM建筑|商业社区,Bradbury 工厂 / [Y/N] Studio BIM建筑|商业社区,Bradbury 工厂 / [Y/N] Studio](https://img.bimii.com/wp-content/uploads/2023/06/5fd923c0a4c900d.jpg)
![BIM建筑|商业社区,Bradbury 工厂 / [Y/N] Studio BIM建筑|商业社区,Bradbury 工厂 / [Y/N] Studio](https://img.bimii.com/wp-content/uploads/2023/06/5f449b595393658.jpg)
![BIM建筑|商业社区,Bradbury 工厂 / [Y/N] Studio BIM建筑|商业社区,Bradbury 工厂 / [Y/N] Studio](https://img.bimii.com/wp-content/uploads/2023/06/ca68b5bea926c68.jpg)
![BIM建筑|商业社区,Bradbury 工厂 / [Y/N] Studio BIM建筑|商业社区,Bradbury 工厂 / [Y/N] Studio](https://img.bimii.com/wp-content/uploads/2023/06/325fc72d3d93113.jpg)
![BIM建筑|商业社区,Bradbury 工厂 / [Y/N] Studio BIM建筑|商业社区,Bradbury 工厂 / [Y/N] Studio](https://img.bimii.com/wp-content/uploads/2023/06/755578bd75c7ce8.jpg)
![BIM建筑|商业社区,Bradbury 工厂 / [Y/N] Studio BIM建筑|商业社区,Bradbury 工厂 / [Y/N] Studio](https://img.bimii.com/wp-content/uploads/2023/06/644ee39e2c46f5b.jpg)
![BIM建筑|商业社区,Bradbury 工厂 / [Y/N] Studio BIM建筑|商业社区,Bradbury 工厂 / [Y/N] Studio](https://img.bimii.com/wp-content/uploads/2023/06/4ccc16a5d52878c.jpg)
![BIM建筑|商业社区,Bradbury 工厂 / [Y/N] Studio BIM建筑|商业社区,Bradbury 工厂 / [Y/N] Studio](https://img.bimii.com/wp-content/uploads/2023/06/46b3b5bc0818bf4.jpg)
![BIM建筑|商业社区,Bradbury 工厂 / [Y/N] Studio BIM建筑|商业社区,Bradbury 工厂 / [Y/N] Studio](https://img.bimii.com/wp-content/uploads/2023/06/a5b20ca26eb06d6.jpg)
![BIM建筑|商业社区,Bradbury 工厂 / [Y/N] Studio BIM建筑|商业社区,Bradbury 工厂 / [Y/N] Studio](https://img.bimii.com/wp-content/uploads/2023/06/62bfabd811cc4aa.jpg)
![BIM建筑|商业社区,Bradbury 工厂 / [Y/N] Studio BIM建筑|商业社区,Bradbury 工厂 / [Y/N] Studio](https://img.bimii.com/wp-content/uploads/2023/06/40c96f1605615db.jpg)



