渡江胜利公园位于长江南京段水系下游,栖霞山对岸,划子口河口处,龙袍新城滨江地带。1949年4月21日,渡江战役在此打响,人民解放军34军在划子口等地战斗、渡江并成功登陆栖霞。因此在2020年建党百年之际,为纪念渡江战役同时服务新城市民,龙袍政府启动该项目的建设。
项目规划用地约4.4公顷,包含公园、纪念馆和标志塔。其中纪念馆总建筑面积3690㎡,占地面积2610㎡,包含历史展陈、专题展陈、红色主题教育、互动参与、休闲、办公等功能。建筑高度为14.8米,观览者于二层悬挑空间可以远眺栖霞山和长江。展示构筑物位于纪念馆西侧,面朝长江四桥,高49.421米,为铭记渡江战役胜利的历史时刻。
公园设计利用原有场地高差,通过地表高度的变化营造功能性的场所空间,地表的抬高、下沉、掀起、切割自然地描述出芦苇荡、音乐台、雕塑、纪念馆的空间起伏,使各功能体块成为地形重塑的一部分。
纪念馆采用“大地耕作”1的设计策略,使地表裂开,建筑从地面缓缓升起,呈现北低南高、向前冲锋的趋势,整体犹如一条向栖霞山挺进的木船,直冲江面,象征着胜利之舟、人民之舟、伟大复兴之舟。形体的设计回应了习主席在合肥渡江战役纪念馆考察时强调的:“渡江战役的胜利是靠老百姓用小船划出来的。”
观览者进入纪念馆,首先呈现的是巨型三角天窗下高大的门厅兼序厅;再进入基础展厅体验战争火光下真实历史场景的营造;步入二层悬挑处的红色文化展厅,在这里远眺栖霞山和长江;接着穿过二层沿廊,是虚拟体验互动展厅,也是展览的尾声;从一层门厅出来,绕行至悬挑下,远处栖霞山坐落在薄薄的江面上,日落的光辉穿过悬挑的缝隙映射在地表的碎石上。从光辉、昏暗、曙光到明亮,观览者在此体验了从备战、渡江、胜利、纪念的时间叙事。
项目图纸
△区位示意图
△基地示意图
△总平面图
△平面图
△立面图
△展开图
△剖面图
△地势示意图
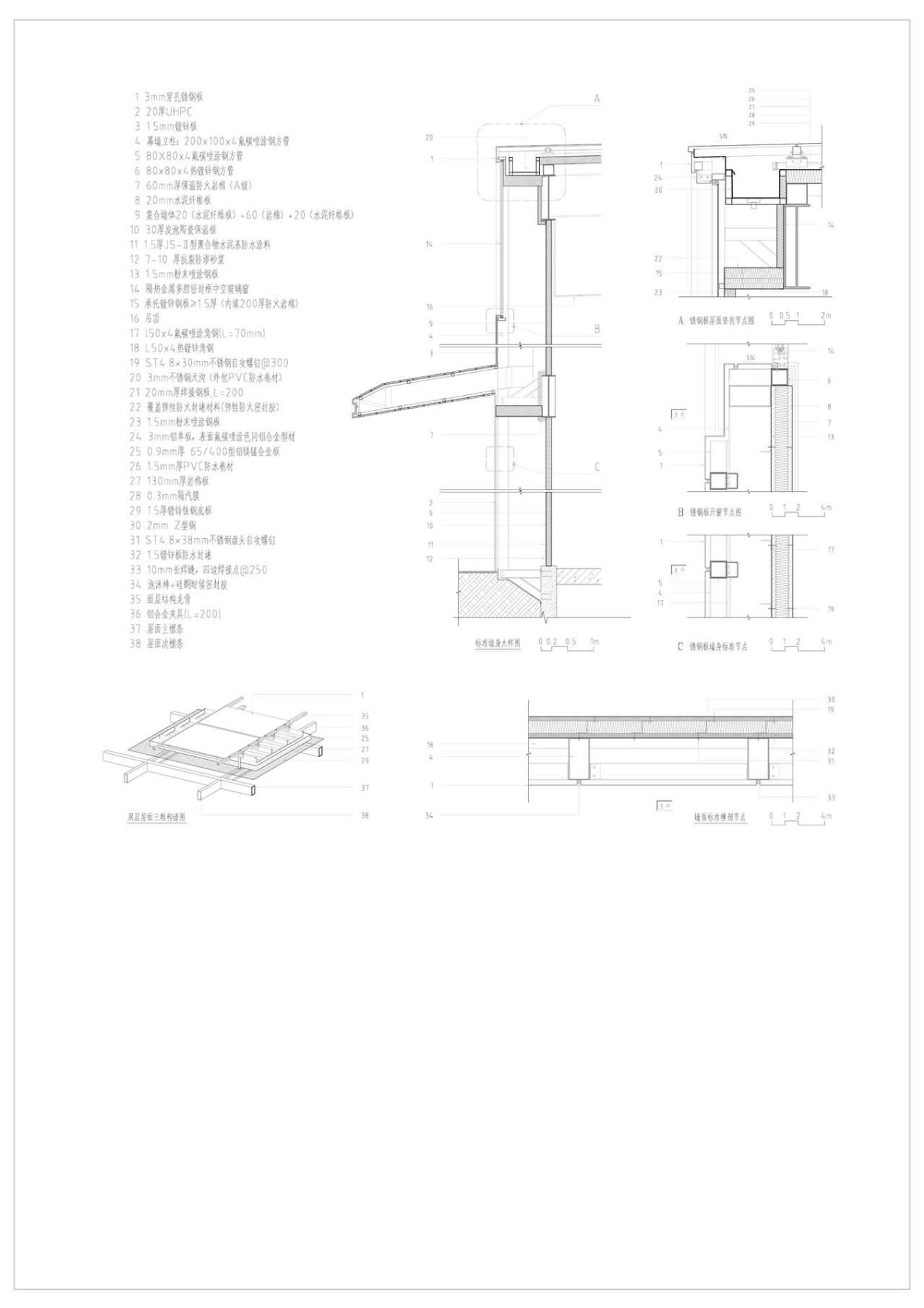
△墙身大样图
△节点示意图
△体块生成图
△功能分区图
△功能分区图
△模型图
△模型图
△模型图
△模型图
△模型图
△模型图
△模型图
△剖透视
项目信息
建筑师: 南大设计院周凌工作室
面积 : 3802 m²
项目年份 : 2021
摄影师 :侯博文
厂家 : 南京卡普睿欣建材有限公司, 广东精久重工科技有限公司, 江苏新蓝天钢结构有限公司, 江苏腾威建设有限公司
主创建筑师 : 周凌
设计团队 : 周凌,杨丹,方茗,夏子涵,郝钢,汪丹颖,刘晓黎,王莉
结构设计 : 董贺勋,丁小峰,杨程
景观设计 : 周凌,方茗,黄晓寻,于滔,阮颖
施工方 : 中铁电气化局集团有限公司
委托方 : 龙袍新城
地点: 南京

BIM建筑网



















































