在智慧互联带来的高效、便捷与多元的美好景象中,学生完成了足不出户,“一机在手万物我有”的生存壮举。然而,学生生活向虚拟世界的转移,势必会导致校园实体空间的式微。因此,尝试将学生从网络世界回归真实世界,成为设计的要点。
设计背景:综合体+微地形研究院选址于衢州高铁新城,因场地局限户外体育设施不足,周边也尚未有成熟的服务配套。作为一期重要工程,2万㎡的生活中心将在很长一段时间内为自给自足的研究院提供住宿、社交、活动、餐饮、学习和娱乐等多种功能,是名副其实的综合体。
走向实体之网:功能聚合,搭建网络平台互联网振奋人心的原因之一是其将原本被物理与时间阻隔的万事万物整合并直接呈现于同一平台,信息集合体以裹挟之势将人包裹其中,给予了感官巨大的震撼。2万㎡的生活中心,面对生活区因场地局限而导致的户外体育设施不足及周边商业服务配套的待发展而形成的“自给自足”状态则赋予了该方案创造功能聚落的先天优势。生活中心以盒子为母题,通过5个均质体量的重复,将零散的功能以常规尺度重新聚合,形成了一个包含多种功能且兼具开放性的巨型综合体。其中,宿舍区采用暗红色砖百叶,形成错落有致的阳台;商业与餐厅使用木色的金属圆管格栅,创造出竹林般的室内空间体验;而运动中心和自习室则以落地玻璃搭配清水混凝土,展现行为活动本身的面貌。五个尺度、内容不同的“台”在以“宿舍”开间为模数的控制下,形成和谐统一的生活“聚落”。
走向实体之网:立体网络,随时接入与移动传统的生活区宿舍楼屋面被习惯视为难以利用的消极空间而沦为各类设备管线的搁置场,而电子科大长三角研究院生活中心则反其道而行之。体量聚合与跌落,将不同标高屋面的串联,形成了立体的漫步路径。建筑师将路径一分为二,产生了“内径”与“外径”,二者共同配合编织了一个立体网络。
内径布置在建筑主体的功能之中,提供便捷高效的交通流线;外径与具体的功能结合,连接五个院子,并在层层跌落的屋面上与宿舍的内径连接,完成循环闭合。从任何一个体块都可走上这个循环,都能随路径漫游到建筑各处。红色的环形塑胶跑道配合粗粝的黄色丙烯酸,由运动中心出发延伸到北区宿舍,使得屋面从素雅的清水混凝土中凸显出来。伴随着两旁的绿化,将不同建筑间有限的空间最大限度地转化成为户外运动和活动的平台,等待着师生们的探索。
走向实体之网:多节点空间,加强物质联结通过关注人与自然环境,人与公共空间建构的体验感与距离感,利用环境的人性回归,实体空间或许能够将学生拉回真实生活场景中。生活中心环环相扣的内院,各自蕴含着丰富的自然、生活、事件、场景与体验。宿舍大院长36m、宽24m,以自然为主题,以垂直锈板电梯作为空间中心,结合下沉庭院连廊,庭院被一分为二;宿舍中院24m见方,雕塑感的清水楼梯凸显在内院中,其栏板与走廊栏板连接,创造了如“丝带”般的流畅感,激发着师生向上探索的欲望;南区运动小院以半场篮球为核心,四面“板、廊一体”的走道成为看台,健身房、羽毛球室、桌球室、乒乓球室等均以“玻璃盒子”的形式夹在清水楼板之间;自习室则将体量剖切拉开,通过两片剪力墙挤压出静谧的“缝之院”。在这里,看与被看被放大,强化了师生在其中穿越的体验感。
结语生活中心通过实体之网的构建,将实体空间与身体物质相互联结,在校园中增加了人群的驻足;在景观空间与公共空间中创造出多个趣味点,增强了学生与校园的情感构建,创造出将师生重新拉入公共生活的契机。
项目图纸
△基地示意图
△轴测图
△概念图
△分析图
△分析图
△概念图
△功能分区图
△剖透视图
△基地示意图
△总平面图
△一层平面图
△二层平面图
△三层平面图
△剖面图
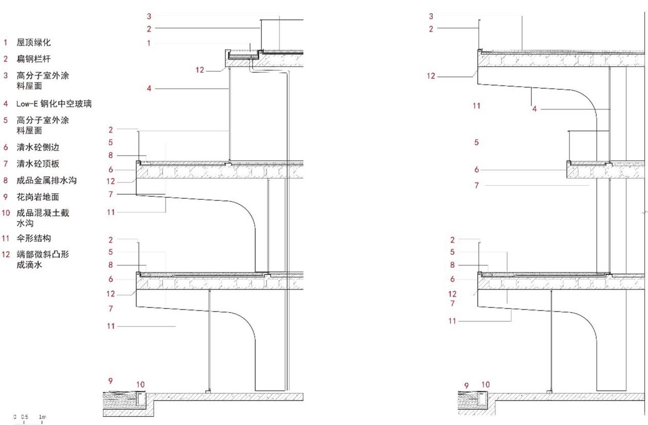
△结构大样图
项目信息
建筑师:TJAD Time & Space Architecture Studio
面积 :19488m²
项目年份 :2022
摄影师 :章鱼建筑,马元,尹明
厂家 : 杭州冠鸿实业有限公司,浙江京创商品混凝土有限公司,浙江宝红建筑工业化制造有限责任公司,营口中林林产品有限公司,衢州山河建材有限公司
主创建筑师 :江立敏、桂耀国
项目总负责人 :江立敏、连津
设计团队 :张佳、桂耀国、李泽敏、王艳
给排水团队 :李丽萍、任军、张宝娣、唐玉艳、袁方
电气团队 :宋海军、张英、顾玉辉、罗颜、蔡猛龙
暖通团队 :秦卓欢、钱必华、吴虎彪、禹小明
泛光照明 :杨秀、徐霞青
绿建团队 :徐晓燕、薛芳慧、朱翠雯、鞠辰、吴过、唐澄宇、张现、李鹏飞
幕墙设计 :兰礼军、何谦
结构设计 :胡广良、沈葵、张硕、杨付权
景观设计 :何强、肖鸿、连乐桐、张杰、黄郑涛、周耀辉、詹丽文
施工方 :中国建筑一局(集团)有限公司 北京公司
委托方 :衢州市衢通发展集团有限公司
地点:衢州

BIM建筑网











































