01项目背景
常州的大发展时期,由城市向北拓展拉开序曲,因此形成了一个以市政府双塔为核心,周边市博物馆、保利大剧院、奥体中心、文化广场等地标性建筑共同构筑而成的常州市政文化中心,也是城市最大的公共建筑群落。
△项目区位
本项目位于这片核心建筑群的中轴线最北端,南侧紧邻机关办公大楼,北部为住宅片区,地块现状为停车场。
△常州市民广场
设计旨在市政板块中塑造一个集办公、酒店、商铺于一体的,与周边建筑相协调,与城市环境相友好的标志性高端商务办公楼。
02项目愿景·和而不同
项目作为城市核心公建群落的重要组成部分,既要满足规划上对建筑序列的天际线要求,又要延续与市政服务中心、文化广场、市政大楼的中轴关系,还应合理安排裙房功能的多样集成。
而作为中轴线最北端的收尾之作,在与南侧公安局大楼形成造型和谐的有机组团的同时,还需尽可能地避免过于冗长的展面,减轻对北侧太湖路及住宅片区造成的压迫感。
设计团队力求打造一个既融入群体、又彰显独特个性和时代特征,和而不同的多功能复合型办公楼,为城市大型公共建筑群增添重要的新元素。
03城市设计·对称与序列
△方案比选
如何处理好与中轴线、与南侧现有建筑,以及北侧城市主干道的三组关系,同时能满足客户对形象、复合功能的使用需求,是城市设计层面首先要解决的问题。为此,团队在设计之初,就对前序建筑及周边环境进行了充分分析,对体块造型进行多轮比选,最终优选了实施方案。
20层的板式塔楼,对称性的布局,北置的核心筒为方案争取到了更多的南向房间。在高效利用项目场地的同时,体量上与片区建筑群落相协调;造型上与南侧现状机关办公楼衔接呼应;高度上与其相近又略高,致力于为这条市政文化轴线增添高品质的篇章。
04整合置换·中心花园塑造
设计团队充分梳理基地和各城市道路之间的关系,将商铺和酒店入口布置在北边商业价值较高的太湖路一侧,办公入口结合南侧与机关办公楼间的中心花园设置。
而现状机关办公楼北侧的两个坡道,是设计的难点。一方面客户希望能在紧张用地中创造出宜人的景观空间,同时又希望两侧车库能够联通。
为解决上述问题,设计团队将现状的东侧坡道取消,并与新大楼统筹建设,使得两栋办公楼间的场地得以化零为整,为中央景观花园释放出更多的空间。同时缓解了局促场地内,地库入口繁杂、流线交叉的情况,实现地库连通。
同时,裙房部分功能繁杂复合,团队采用东西两个中庭加错层的设置,在多层限高下将塔楼门厅、沿街商业、东西两个办事大厅,办公、食堂,以及一个150间的商务酒店高效容纳其中。
05立面设计·壁立千仞
作为市政文化建筑群的重要组成部分,设计团队从对周边建筑的立面肌理和模数分析入手,最终决定采用简洁有力的竖向线条元素,延续南侧建筑立面语汇的同时,也使得层数不同的左右两翼裙房成为和谐统一的整体。
裙房五层采用玻璃幕墙的方式,在形体上进行退让,与南侧现状四层裙房保持视觉的一致性,也是对既有经典建筑的一种致敬。
虚与实的块面组合关系,简单的肌理划分,去除冗余的装饰元素,使得建筑形象既保持简洁纯粹,又显得灵活而富有变化,为原本相对厚重敦实的体块增添了一丝轻盈,减轻了对周边环境的压迫感。并以材料质感和细部工艺彰显其时代性,区别于15年前建成的南侧建筑。
因受消防登高面的影响,南侧办公主入口的雨棚较小,设计团队在有限的空间内增加其层次的丰富度,灵巧不失庄重。无障碍坡道隐藏在花池后,保证了立面的完整性。
06室内设计·内藏锦绣
室内设计采用简洁的设计语言、统一的色调,符合办公楼庄重沉稳的整体气质。
北置的核心筒使得塔楼下容纳一个三层通高,高大敞亮的门厅空间成为可能。暖通和消防末端通过设计被巧妙隐藏,呈现出一体化设计的精细品质。
07景观设计·高密度游园体验
高效集约的用地留给景观的空间十分局促,设计团队充分利用庭院空间与屋顶露台,为室内提供良好采光的同时,营造“绿动办公,乐享生活”的办公环境。
景观灵感源自建筑的设计语汇,从其方正端庄的形体、强烈的纵向线条中提取设计元素,并融入中式园林造园精髓,结合现代简约的设计手法,用流动的韵律打造高密度下的游园体验。
08结语
龙锦大厦项目从方案到落成仅历时一年,设计周期短,多部门、多专项合作难度高。设计过程中团队组织了多次全专业对接,施工过程中多次巡场定样,最终实现业主认可的品质落地。也在融合城市语境的前提下,为市政文化轴线增添了华彩篇章。
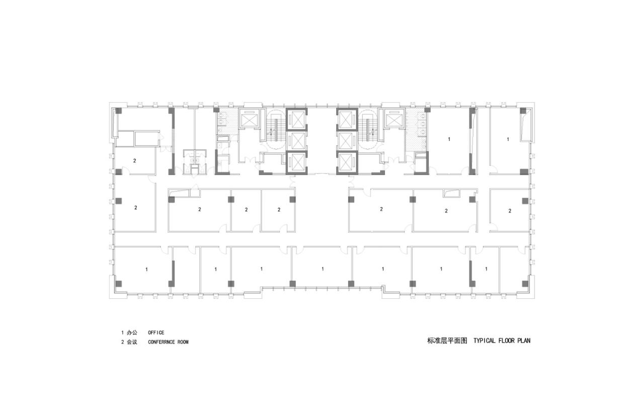
项目图纸
项目信息
项目名称:常州龙锦大厦
业主公司:常州市晋陵投资集团有限公司
建筑规模:79745.42㎡
竣工时间:2022年7月
方案设计:陈涛、邹旦妮、周曙光、严孔羽、吴宣仪
施工图设计:贾杰、胡宏、石小金、张玉江、姚一辰、朱加友、龚飞雪、吴吉娜、丁俊
幕墙设计:江苏通用建筑装饰有限公司
室内设计:江苏通用建筑装饰有限公司
景观设计:广州茏腾园林景观设计有限公司
照明单位:常州城市照明管理处
摄影单位:筑作视觉

BIM建筑网






































