△一期校园整体夜景 © 李逸
西湖大学(云谷校区)位于杭州市西湖区,校园总用地面积约1350亩,规划总建筑面积91.3万平方米。校区采用以教学和科研区为中心,校前区、生活区和运动区围绕在外围同心圆布局,规划设计通过一条环形水系实现自然环、学术环、生活环的有机结合。校园一次性规划,分两期实施。
△校园主轴线整体鸟瞰图 © 浙江大学建筑设计研究院
一期总用地面积634亩,总建筑面积45.6万平方米,包含学术科研岛,校前区组团,师生生活区组团,讲席教授周转公寓等。
△校园一期主轴线航拍 © 赵强
作为一个规模巨大、功能复杂的项目,西湖大学(云谷校区)一期从设计、施工到建成投入使用仅用四年多时间,期间还跨越了两年疫情。浙江大学建筑设计研究院为主承担了本项目的全过程设计,在高标准设计、高品质建造、高效率运维等多层面进行了创新和探索。
浪漫的生态水环
规划设计整合现状场地内丰富的水系资源并通过边界优化,形成一条直径约600米浪漫的水环,该水环将校园空间自然地限定出中心学术科研岛和岛外的服务生活配套两大功能区域。
环形水系本质上是一个复合功能景观带,公共平台、景观元素和交流功能在水系的两侧展开,作为主轴,它贯穿所有功能体,串联各主要公共教学科研建筑,是浓缩的校园活力纽带。圆形水环是整个校园规划的核心,也利于屏蔽水环外部机动车道路震动对于学术科研岛内高精密实验平台的影响。
△学术科研岛整体鸟瞰图 © 浙江大学建筑设计研究院
一期学术科研岛以学术会堂为核心,外围逆时针依次分布实验动物中心、基础医学楼、生命科学楼、理学楼和工学楼;二期继续分布科研中心、教学中心、图书中心三幢单体,建成后将形成完整的学术科研岛。
△核心科研岛模型 © 浙江大学建筑设计研究院
水环的实现在保留原有场地整体水系流动方向的基础上,通过岸线边界优化调整,将场地内不规则水系调整为完整的环状水系。水质的处理采取“水循环系统构建+水生态系统修复”的总体思路,保证水体透明度,提高生物多样性,也兼具海绵城市设施的调蓄作用,打造出校园绿色生态之水环。
△学术会堂与学术环 © 赵强
△亲水平台与学术环组团 © 赵强
△由水环望向核心区学术环组团 © 李逸
△浪漫的水环与学术环组团建筑 © 李逸
复杂的学术环综合体
核心区学术环组团是目前国内高校中单体规模最大的科研建筑群,建成后可同时满足300个不同学科、不同研究方向的PI和四大公共实验平台使用。设计师在设计过程中与每位PI进行数次面对面的沟通交流,以确保项目建成后就具备开展实验科研的工作条件。
△核心区群体鸟瞰 © 李逸
学术环四大学院的平面功能既要考虑现有PI的个性化需求,也要考虑未来实验室不断改变的灵活性和通用性的要求,设计采用10.8×9.6米的标准柱网,底层7.2米、二至四层5.2米的建筑层高,兼容了实验室和科研办公的各种房间面积和层高要求。设备管井、交通体和卫生间都采取模块化设计。屋顶结合建筑造型可充分满足各种尺寸的屋顶设备的设置和隐藏,实现了完整的第五立面建筑效果。
△核心区学术环组团航拍 © 赵强
两端长度约500米的圆环形公共平台内部,四层通高空间连通开放,与四大学院紧密相连,该区域采取特殊的消防论证,得以实现这一超长而连续的非正式学习交流空间没有设置任何一处防火卷帘,保证了空间的整体纯粹性。
△中央花园与学术环 © 李逸
△学术环与会堂夜景 © 赵强
△学术环入口大厅 © 赵强
△学术环共享空间 © 赵强
高颜值的校园形象
校园的建筑色彩结合杭州江南地域特点,以灰白系为主,根据不同功能和区域点缀不同的色彩,提高不同区域建筑的识别性。建筑体量和功能为了吻合西湖大学的小而精、国际一流、新型研究型大学而定位。核心区学术环组团采用锯齿状UHPC高强度混凝土挂板与玻璃和铝板相结合,体现现代开放而又不失庄重的高校科研建筑的气质。
△校园主轴线望向学术环组团 © 李逸
△学术环内广场夜景 © 李逸
△基础医学楼与生命科学楼 © 李逸
△生命科学楼局部 © 赵强
△UHPC高强度混凝土挂板 © 李逸
学术会堂采用60根均分水滴状造型搪瓷钢板材质柱廊,每根柱子朝一个方向旋转相同角度,创造出一种现代灵动而又不失古典韵律的现代会堂气质,会堂内部设置可举办各种活动的1200座专业大礼堂。
△庄重典雅的学术会堂 © 赵强
△富有韵律的水滴形柱廊 © 赵强
△学术会堂门厅与柱廊 © 赵强
校前广场组团主入口校门、学术交流中心、行政中心和师生服务中心则采用与核心区UHPC挂板色彩统一的光面白麻石材,生活区组团建筑采用灰白色系的无机饰面砂浆。不同材料的使用既有效地控制了成本、体现了经济性,也形成了整体而富有变化的校园形象。
△校园主入口南门 © 李逸
△水环两岸的建筑 © 李逸
全覆盖的BIM技术
为实现对西湖大学巨大体量和复杂空间的有效控制,BIM技术平台的应用涵盖设计、建造、运维全周期,为高品质交付提供技术支撑。在设计阶段,团队组建全专业协同平台,精细化管线综合设计、深化特殊空间节点;在建造阶段,通过多轮预演提高施工效率、减少施工误差;在运维阶段,利用BIM信息系统辅助机电设备维护、助力空间管理。
△一体化设计分析 © 浙江大学建筑设计研究院
可持续的绿建三星校园
西湖大学由水而始,和合共生,是浙江省第一所实现绿建三星标准的大学校园。一体化的设计让建筑的每一部分都与环境息息相关。综合性表皮系统集合了维护、遮阳、节能等功能,降低建筑能耗。通风及空调系统满足不同实验室对室内温湿度、空气洁净度、空气流速等参数的不同要求并实现精密控制,保证实验安全、提高环境品质。建成后已顺利获得整体校园三星级绿色建筑设计标识证书。
△水平连续的学术环遮阳挑板 © 赵强
△学术环夜景局部 © 赵强
△水环创造出独特的科研岛 © 赵强
△食堂与水环绿坡 © 赵强
友好型的无障碍校园
西湖大学云谷校区畅想这样一所温暖的全龄畅行的无障碍大学:在智能标识的引导和服务设施的帮助下,师生们可以高效便捷地到达每一间实验室和教室;在无高差的道路系统上,师生们可以畅享马拉松的快乐,安全地穿越林地和车道。在中国残联的重点关心下,通过高于标准的全面化设计,西湖大学成为浙江省首个无障碍环境示范性高校,入选全国首次无障碍设施设计十大精品案例和住建部无障碍环境建设优秀典型案例。
△宁静的学术会堂 © 李逸
△优美的科研工作环境 © 赵强
西湖大学(云谷校区)一期项目从2017年5月启动,2018年4月开工建设,至2021年底一期竣工。浙江大学建筑设计研究院组成了以首席总建筑师、总建筑师、各专业总师为技术负责人的强大团队,对多个专项技术问题进行系统化梳理,对近200余人的团队进行全程整体统筹协调,与建设方、使用方和各合作单位共同为这一非凡的校园项目落地而不懈努力。学校一期建成投入使用以来,受到了社会各界的广泛关注,充分展示了一所小而精、高起点、民办研究型大学的独特定位和创新精神。
△项目视频 © 李逸
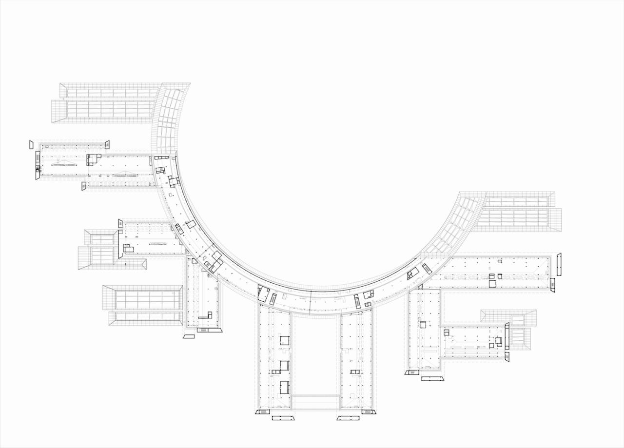
项目图纸
△总平面图 © 浙江大学建筑设计研究院
△核心区组团地下室平面 © 浙江大学建筑设计研究院
△核心区组团一层平面 © 浙江大学建筑设计研究院
△核心区组团二层平面 © 浙江大学建筑设计研究院
△核心区组团三层平面 © 浙江大学建筑设计研究院
△核心区组团四层平面 © 浙江大学建筑设计研究院
△核心区组团屋顶设备层平面 © 浙江大学建筑设计研究院
项目信息
项目名称:西湖大学(云谷校区)一期
建设单位:杭州市推进西湖大学项目建设指挥部
使用单位:西湖大学
项目地址:浙江省杭州市
总用地面积:422449平方米
建筑面积:456501.2平方米
设计单位:浙江大学建筑设计研究院
方案设计:HENN海茵建筑
设计开始时间:2017年5月22日
项目完工时间:2021年12月28日
摄影师:赵强、李逸
设计总负责:董丹申、黎冰
项目负责:陈瑜、范须壮、邝洋
建筑专业:董丹申、黎冰、陈瑜、范须壮、邝洋、叶长青、胡慧峰、张元升、朱恺、陈冰、徐新华、于海涛、彭荣斌、王豪、吴韵、吴松霖、徐高婷、江胜涛、徐荪、柳青、黄巍巍、张子权、黄迪奇、马博、王钰萱、刘佳宁、李丽、张丹峰、余钊炳
结构专业:肖志斌、沈金、钱磊、王俊、程柯、李丽、王成志、谢辽、潘庆祥、魏结强、孔华伟、张杰、郑晓清、凌佳燕、陈晓东、董凯、姜啸、李少华、丁磊、孔祥迪
给排水专业:陈激、易家松、雍小龙、陈飞、赵洁钦、席斌、付佳林、王靖华、王小红、方火明、林璐佳
电气专业:郑国兴、冯百乐、李平、韦强、丁立、杨凯、范宏建、张薇、王斌、邓周宁、张玲燕
暖通专业:余理论、郭轶楠、仇宇、王亚林、马燕宾、孙义豪、任晓东
室内专业:李静源、方寅、陈裕雄、刘蓓蕾、田宁、张慈、卢晓凌、王冠粹、楚冉、刘欣耘、贾茹、孔祥、余智祥、黄丽璇、林云辉、黄江慧、孙俊、陆红英、田丰畅、李宁
幕墙专业:白启安、杨东艳、香春、杭飞、陈栋、余平、钭莉莎、张楠、蒋乾阳、姜琦、葛敏霞、曹东秋、张默然、陶善钧
智能化专业:杨国忠、李向群、陈佳、林华、叶敏捷、倪高俊、侯玉洁、袁骁男、王雷
景观专业:夏继明、林建海、高黑、朱靖、乌姬娜、张倍倍、李文江、徐晖、李如诗、盛超赟、舒鸿、张菲、黄静宜、唐丹丹、沈海涛、张力、方俊杰、应巧
市政专业:楼丹阳、杨华展、贾胜强、兰文雯、邵凯凯、孙良凤、朱敏、周华、孙哲、王和阳
基坑维护:陈赟、陈刚、朱建才、辛蕾、顾家诚、陈刚、占宏、庞杰、徐铨彪、周群建
人防专业:王树斌、金杰科、董杰、胡一佳、黄丹丽、周赛华
舞台专业:池万刚、陈涌、池佳贝
建筑经济:孙文通、张瑛、孟睿覃、帅朝晖、禇铅波、吴佳莉、周永杰
泛光照明:王小冬、宋洛颖、黄晓东
其它合作设计单位:
景观方案设计:WES魏斯景观建筑设计(上海)有限公司
泛光照明方案设计:RDI瑞国际照明设计有限公司
学术环实验室工艺设计:深圳市甲骨文智慧实验室建设有限公司
特殊气路设计:上海沪辰自动化系统工程有限公司
试剂库、特气房设计:浙江省天正设计工程有限公司
动物实验中心工艺设计:上海开纯洁净室技术工程有限公司
微纳实验室工艺设计:信息产业第十一设计研究院科技工程股份有限公司
Bim设计:大漠数据技术(浙江)有限公司
无障碍咨询:清华大学无障碍发展研究院
桥梁设计:上海市政规划设计研究院
河道水质净化设计:杭州绿益环境科技有限公司

BIM建筑网












































