M 5606 住宅向我们抛出了实现我们的设计实践可能方式的问题。该项目方案基于分类语境(在置入与落实间)、配置(在系统与材料物品间)和处置(在既定和未定的事情间) ,认识到项目本身被赋予的的时间和空间性。
语境M 5605 住宅是一座位于乌尔基萨社区(Villa Urquiza)的水平置业大厦,它位于一块面积为 8.80 × 12.72 米的小角地上,拥有十个功能性单元。场地位于一个中等规模的住宅区,毗邻 F.F.C.C. Mitre。设计阶段提出了许多语境关系,从将公共空间纳入其整个底层中到单层设计。与对其既有边界的认知一样,推理其扩建部分可能的关系与间距。另外,它以一种感性的方式将上层退线与围护结构结合起来,以促进其与环境的更大共情。
配置该建筑使用 Corblock 的 Bricko 砖为单一材料做围护结构,最大限度地提高了其结构承载力。在这种情况中,材料可以实验性地基于各种精确的形态学操作(重复、分段、连接),达到其自身的复杂性,并尝试汇聚、安置、结合和固定的模式,来呈现所需的氛围(光和空间的不断交错)。
在立面边界下方对扩建的处理目的是减少噪音的同时可以调整隐私性、光照和不透明度由内向外过渡的关系。
布局该构筑物被安置在底层和 6 层高处,展现出了形式、空间和物质之间的一种基于对个性的寻求的张力。这些住房单元探究了新的生活配置可能性,使其更加具有适应性和当代性。
项目图纸
△负一层平面图
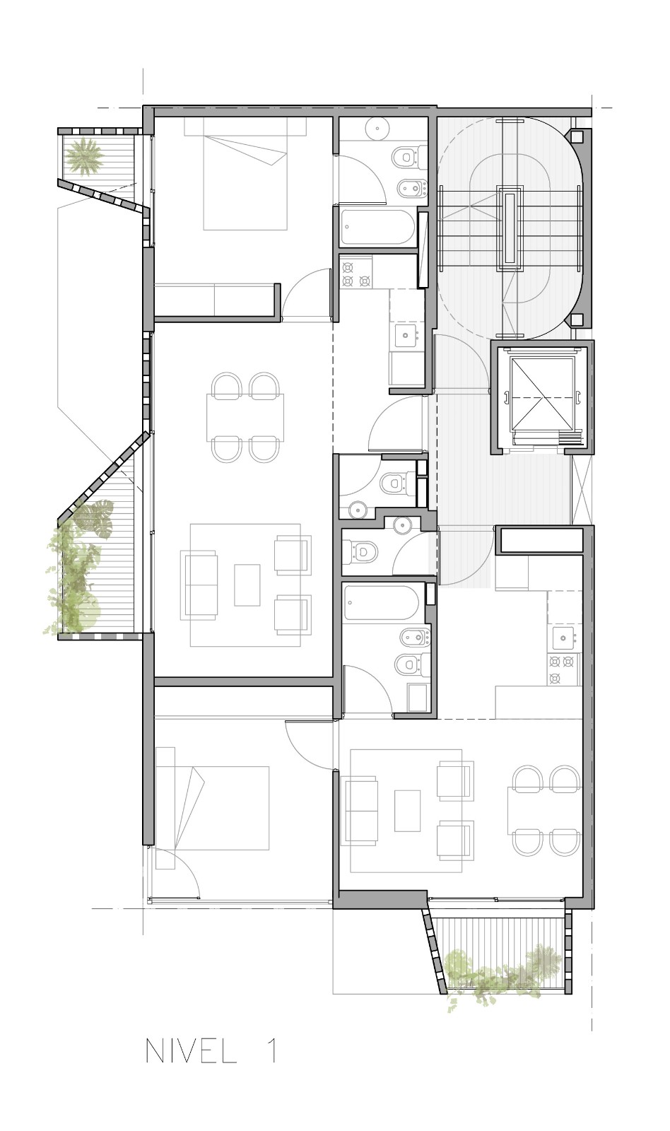
△一层平面图
△二层平面图
△五层平面图
△六层平面图
△立面图
△立面图
△剖面图
△剖面图
△轴测图
△爆炸图
△分析图
△分析图
项目信息
建筑师:Arqtipo
项目年份 :2022
摄影师 :Federico Kulekdjian
厂家 : Carpinterías CONSTRUSER ALVEAR,Corblock,Corletto,Corralón Tramontana AST,Domec,FV Ferrum,Micromac,Sanitarios San Martín
建筑设计 :Juan Pablo Negro, Martin Giani, Catarina Staric, Belen Canosa, Marcelo Sigrist, Leonardo Pulzoni
项目建筑师 :Lucas Gorroño
地点 :阿根廷,Buenos Aires

BIM建筑网










































