萨勒之家位于西班牙瓦罗西亚的安东尼奥·费朗迪斯街(Antonio Ferrandis Street)上,是 P.P. Quatre Carreres 住宅区的一部分。这一住宅大楼位于城市的南侧边缘,有着十分优越的地理位置,并将两个截然相反的场地、城市尺度设计分离,同时享受着径直延伸至阿尔布费拉自然公园(Albufera Natural Park)、和海滨的风景。
该项目建立在矩形的几何形体场地上,其场地目前的规划也定义了可建造的空间体块。在规划条件下,项目大约可以建造两个 27×17 米的塔楼。而最终的设计中,这两栋塔楼有着相同的用途、形态、细节,并共享着首二层的公共基座。
这一项目为住宅塔楼,其内包含了位于地面、二层的三级建筑区域,这一区域直接面向城市空间。其余的楼层囊括了 100 套住宅。此外,首层空间也为社交空间,其中有一条穿越拱廊的路径,并配有泳池和儿童游乐区。同时,垂直花园装点着入口处,并在邻近的果园与城市肌理过渡中脱颖而出。
建筑使用了基本的设计语言,并打造了一个响亮、清晰、形式简单的建筑。其中每一个错落的体块都由严谨的矩形平面生成,并在平面的基础上扩展顶点、向外“生长”,为每一个单元构筑“梯田”露台。同时,建筑的立面也自然地形成了连绵起伏的肌理,并以代表建筑几何特征的曲线包裹着梯田露台。建筑使用了白色铝复合板以更好地表现这些起伏的表面。
楼层体块交错,并在最上层减少了出挑尺度,由此符合城市规划参数的限定,同时也构筑了灵动的住宅综合体外观。
项目图纸
△基地示意图
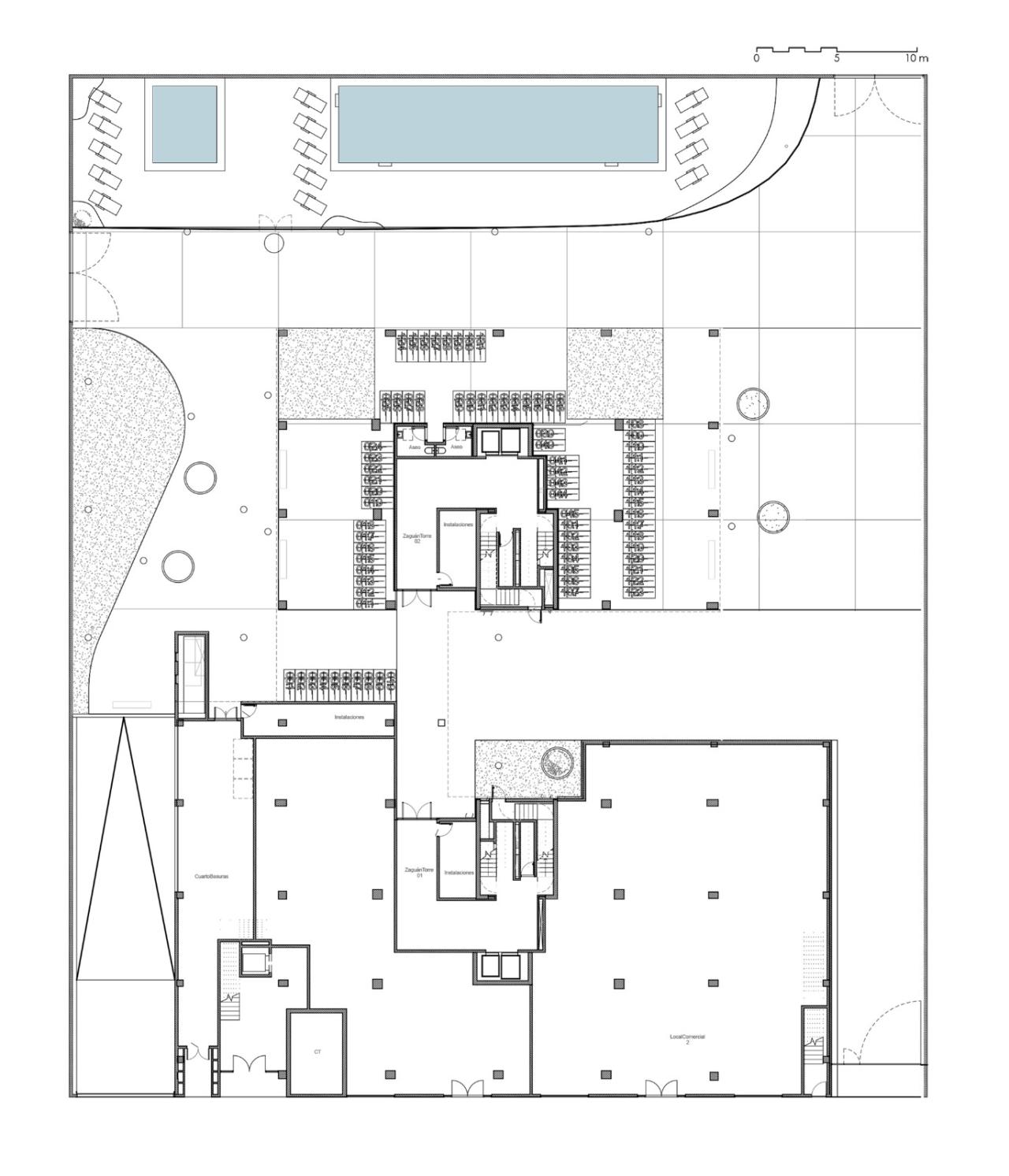
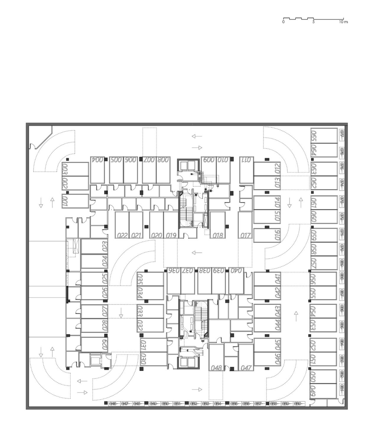
△一层平面图
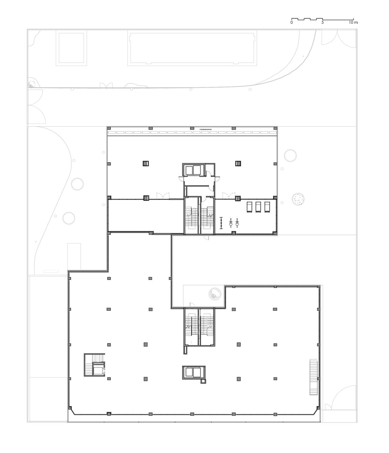
△三层平面图
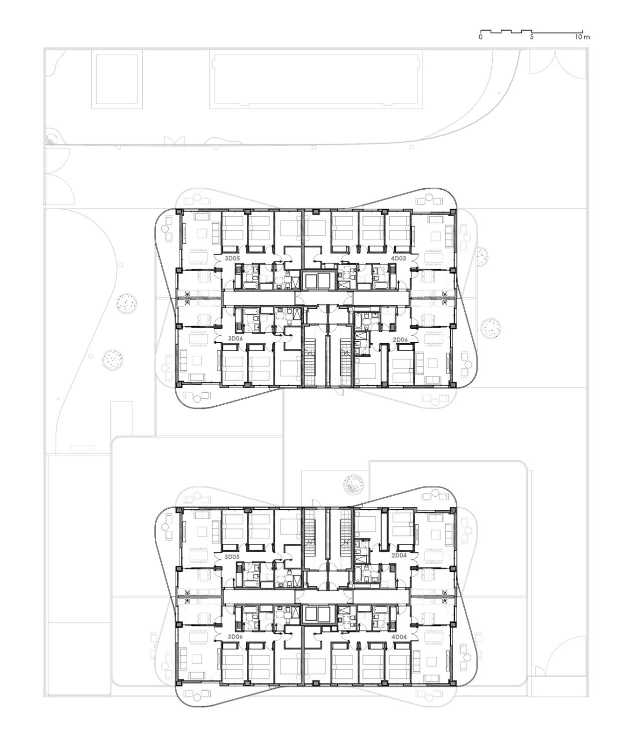
△四平面图
△五层平面图
△六层平面图
△七层平面图
△八层平面图
△九层平面图
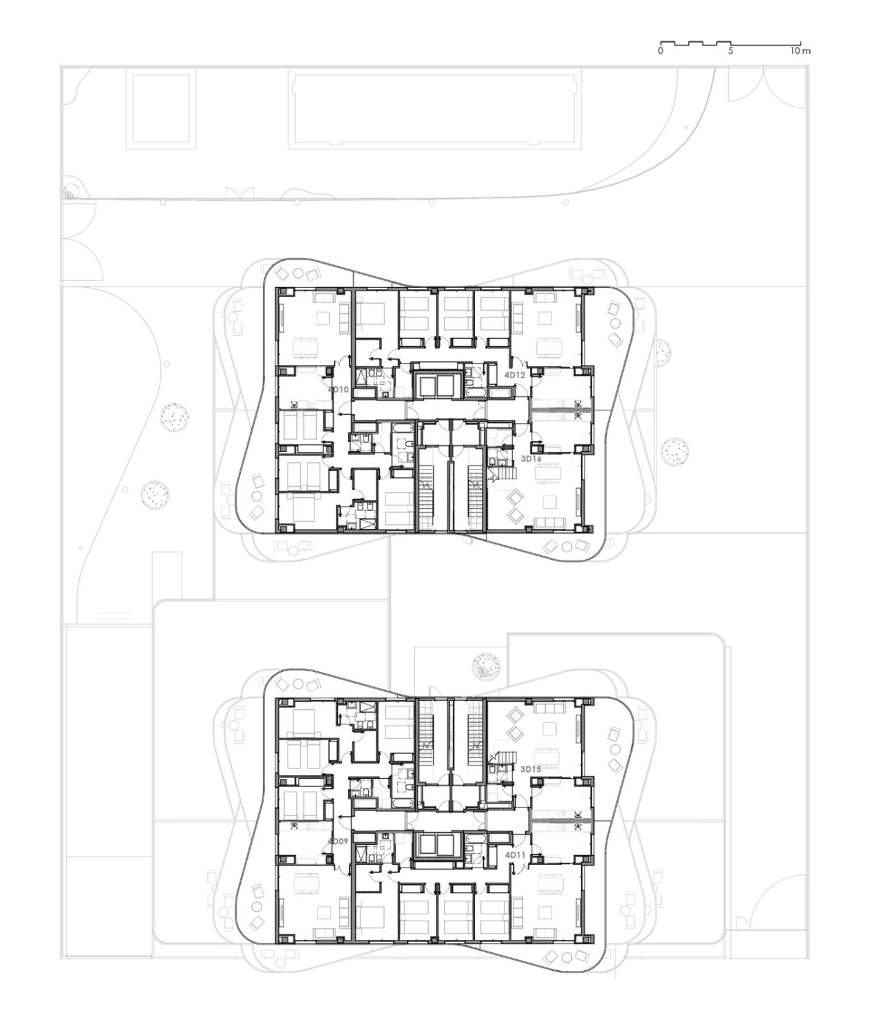
△十层平面图
△十一层平面图
△立面图
△立面图
△立面图
△立面图
△剖面图
△剖面图
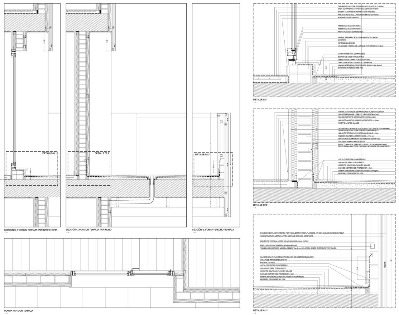
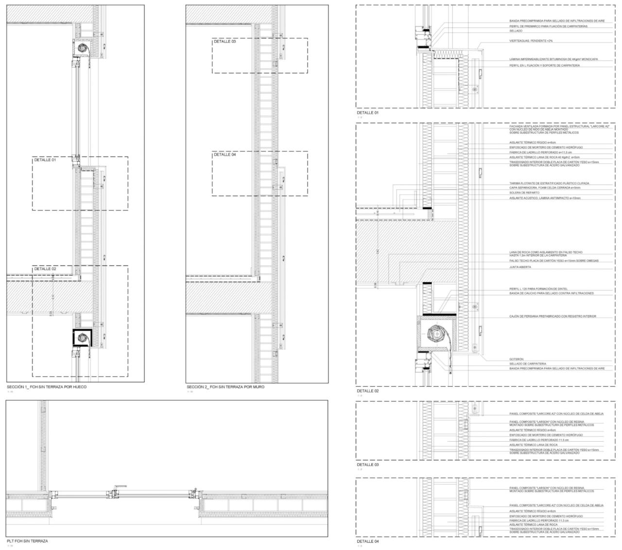
△局部剖面图
△局部剖面图
项目信息
建筑师: NAC Arquitectos
面积 : 25372 m²
项目年份 : 2020
厂家 : Alucoil, Cortizo, Dioco, Finsa, Placo, ROCKWOOL, Roca, Saloni, Singular Green
项目用途 : 住宅
地点:西班牙,瓦伦西亚

BIM建筑网













































