Jaime Rentería 儿童发展中心坐落于哥伦比亚卡利(Cali)一个拥有一百多年文化历史的著名地区斯洛(Siloé)。场地原本是该地区在煤炭开采兴盛时期的一处矿工家庭定居点。
其位于墓园前方的位置,不规则的城市道路相交于此并侵占了水道,使得高风险且难以通行的斜坡密集汇聚于此,绿色公共空间所剩无几。
在这样的环境下,儿童发展中心很好地解释了,在哥伦比亚公共的建筑是怎么成为了政府的基础设施,领导者是如何通过建筑来实现其反对社会福利的立场。
这座建筑也被称为“胜利者的摇篮”,市政有机会借助其来展示自己在教育层面有所建树的作为,同时意识到社区也有着可以为城市做出非凡贡献的价值。建筑重塑了斯洛(Siloé)的信心和归属感。作为哥伦比亚唯一一个荣获两枚奥运会奖牌以及其他众多成就的社区,那些促成这些成就的运动员们都是自孩童时期便在这个社区错综复杂的街道、台阶和过道玩耍长大的。
在这样的背景下,本项目作为一项城市举措,旨在塑造市民的身份认同感,恢复当地失去的环境价值,为社区生活提供崭新的活动区域,通过打造富有生态和环境潜力私密的公共空间,促进社区居民之间的联系。建筑周围的环境则提供给孩子们,他们福利化的形象是环境正规化的有力赌注。
因为他们是社区里最年幼的儿童群体,为了保护他们,建议将孩子们与人群密集的环境分隔开,同时把教室设置在安全的高度,像巢穴一样。这种既要开放环境以提供新的社交区域,又要围合空间以保证幼龄安全的双重现象在建筑结构中是至关重要的。将教室与公共楼层分开则是激活建筑城市效应的决定。
一个简单的衡量体积的策略便可以将门廊与游乐区相连接。通过释放平面空间,将墙向后移并支撑列柱上方的体量,门槛的设置旨在解决从户外公区到公共休息大厅的过渡。这个在建筑和城市之间的调解空间拥有一定的规模,可以保证空间的质量,遮挡阳光,同时为前来接孩子的人们提供接待服务。
“只有情感存在的时候,孩子的大脑才会学习。”——Francisco mora一些建筑元素会重视随性的感觉,同时也让建筑充满了意义。这些概念的转变将建筑固定在一个所有事物都被包含特定的环境中,所有的事物都被包含在内。
打开围栏的门闩,门槛处可以作为露台的延伸。名为“朋友的脚”的列柱改变了其原先的位置并用于支撑教室的体量,营造了吊脚楼一种稳重和轻盈、运动和稳定相结合的感觉,如经典的吊脚楼一般。一个极具吸引力的斜坡使得室内游乐场充满活力,其既是步道、楼梯、隧道,也是房屋之间的一体通道。独立的天窗盖交替分布着,在天窗处绘制出不断变化的轮廓。他们被漆成蓝色,使其在周围和建筑物间的一定距离内都清晰可见。
三原色中和了建筑外部的硬度及其石质的材料。边缘的庭院作为教室的延伸,容纳了果园,并面向街道。这个由预制混凝土构件制成的垂直百叶窗被作为防晒屏,相应地,在这个帮派间频繁斗争的区域,其也是一扇免受流弹攻击的屏障。
项目图纸
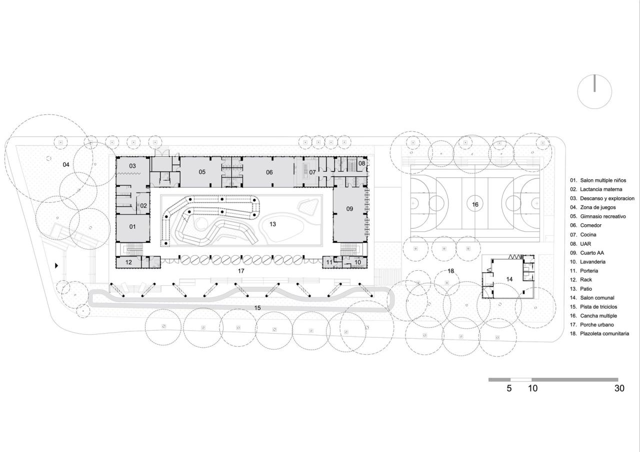
△总平面图
△一层平面图
△二层平面图
△屋顶平面图
△剖面图
△剖面图
△分析图
△分析图
△分析图
△分析图
项目信息
建筑师:Espacio Colectivo Arquitectos
摄影师 :Santiago Robayo
厂家 : Hunter Douglas
主创建筑师 :Aldo Marcelo Hurtado, Carlos Hernan Betancourt
合作方 :Ángela Andrade M., Vanessa Toro Castaño, Josman Rojas Montes, Jessica Rojas Benavides, Julián Danilo Londoño, Emmanuel Viveros, Miguel Ángel Canaval, Juan Pablo González, Laura Urueña Serna, Sofia Zuluaga Ocampo, María Fernanda Soler, María Paula Martínez, German Rosero Ocaña, Jhonatan Alberto Cruz, Paola Daniela Bolaños, Edier Andrés Segura, Felipe Bessolo, Omar Velásquez
推广方 :Secretaria de Educación de Santiago de Cali
地点 :哥伦比亚,Cali

BIM建筑网









































