设计概念旅游中心与周边现有房屋保持着一定的距离。光照量,与景观视觉关系以及现有环境肌理和新建筑体量之间的大量空隙都经过深思熟虑的规划。
在高度和体量方面,建筑物通过下沉和上升的方式来尊重和响应周围环境,以与给定的路线相对应,以与给定位置的理想关系塑造其外观的方向。通过向前倾斜的“动态”形式,体量正式包围了前广场,明显地突出了其在城镇中的作用,并象征性地向游客鞠躬。
前广场和底层的均匀铺路材料有意模糊了室外和室内之间的界限,作为邀请客人的姿态。一楼西侧的玻璃正面与这种开放的态度相呼应,将其木壳抬升彷佛朝广场与河流张开了嘴巴一般。
由于形式上的自由,广场可以灵活地重组各种活动,而室内互动展览则展示了附近的自然环境及其未开发的潜力。建筑内部围绕垂直分布核心筒进行平面组织,开放式楼梯和电梯穿透内部空间。地下车道由相邻酒店的车库提供。
在较高楼层,灵活的分布安排、落地家具和玻璃隔断清楚地定义了工作组和主题区域,可随时重新布置。建设性元素还可以在任何成果期内为任何功能区域提供灵活分布和多功能解决方案。作为顶层的一个特色,倾斜的屋顶产生了宽敞的空间,而超大的玻璃框架使自然环境、建筑物和使用者之间产生非凡的互动。
施工我们选择采用结构木构件来缩短了施工时间,这清楚地表明了我们对自然的承诺。材料可以在当地生产并迅速交付。执行程序保证了低能耗标准的实施,从而保证了建筑能源优化。地下室用防水钢筋混凝土建造,地下车库的设计旨在满足最大使用容量,并通过额外的停车位一并实施。
材料建筑师清晰地参考了周边环境从而选用了当地的材料,通过巧妙的安排和组合,该建筑具有现代且真实的特征,并大量参考了当地传统工艺。
宽敞的一楼,高科技信息点和内敛的线性设计,反映了奥茨塔尔旅游业的前瞻性战略。外表覆盖着灰色的落叶松瓦、全高木窗和一楼的开放式玻璃幕墙,营造出独特的整体形象,超出了周围的建筑。
项目图纸
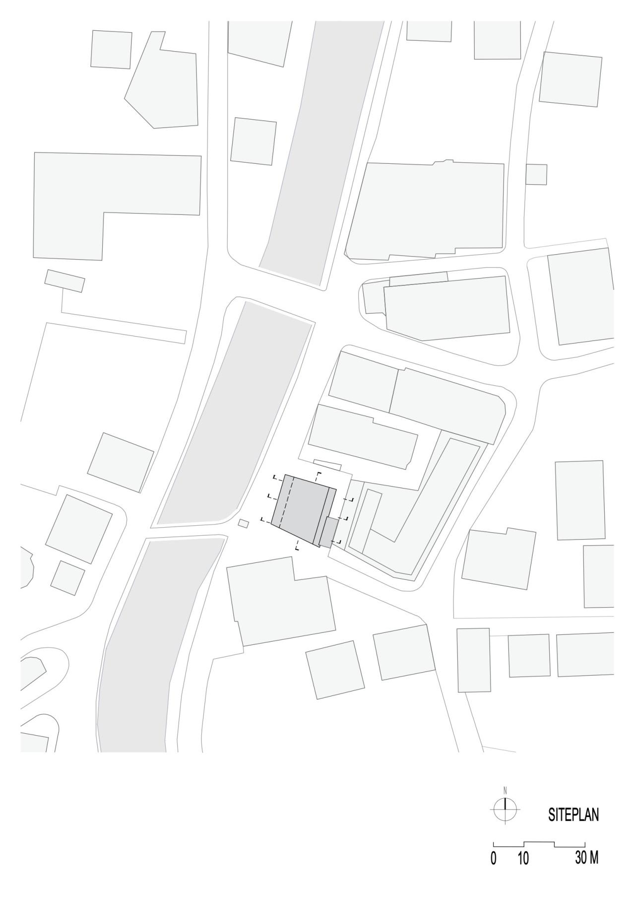
△基地示意图
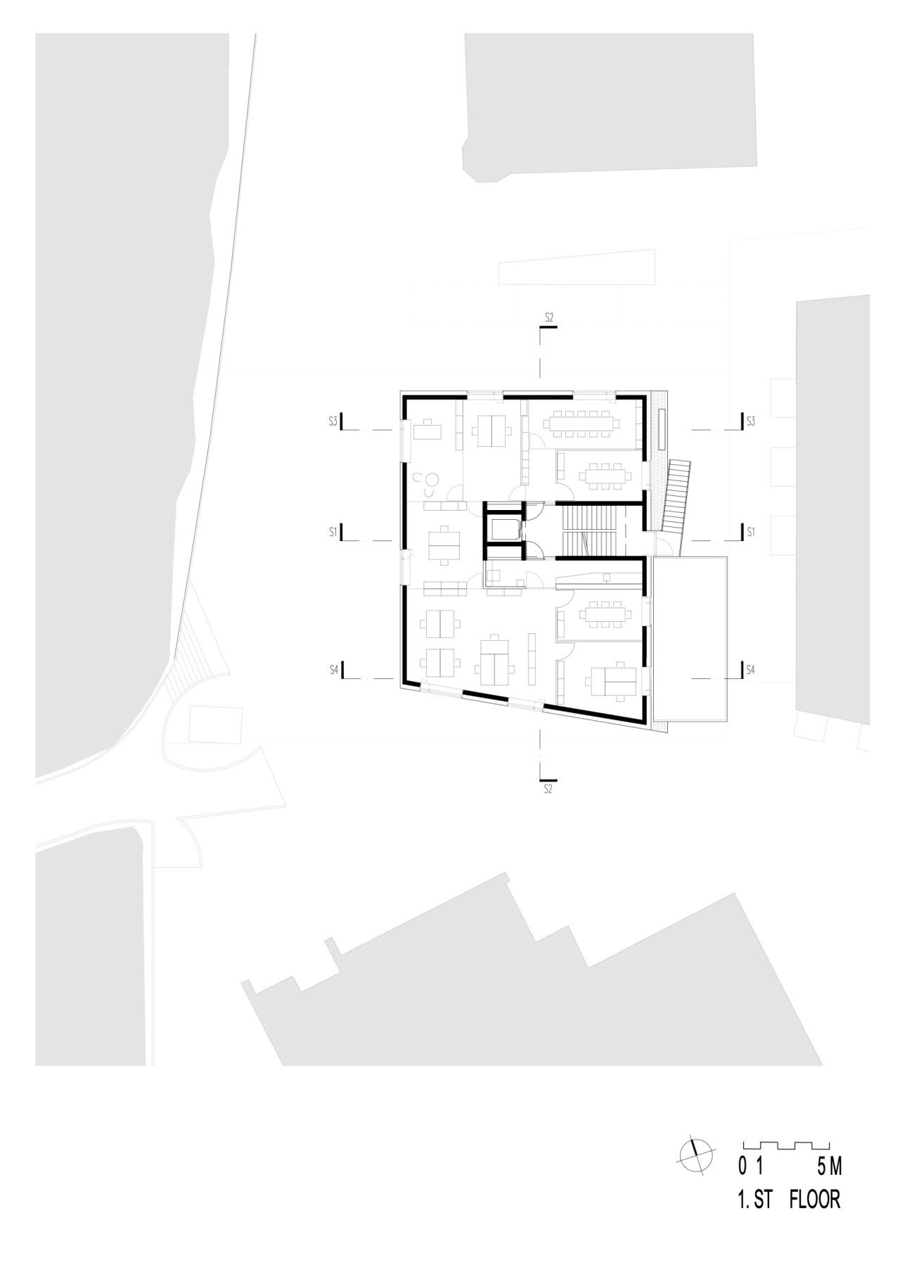
△一层平面图
△负一层平面图
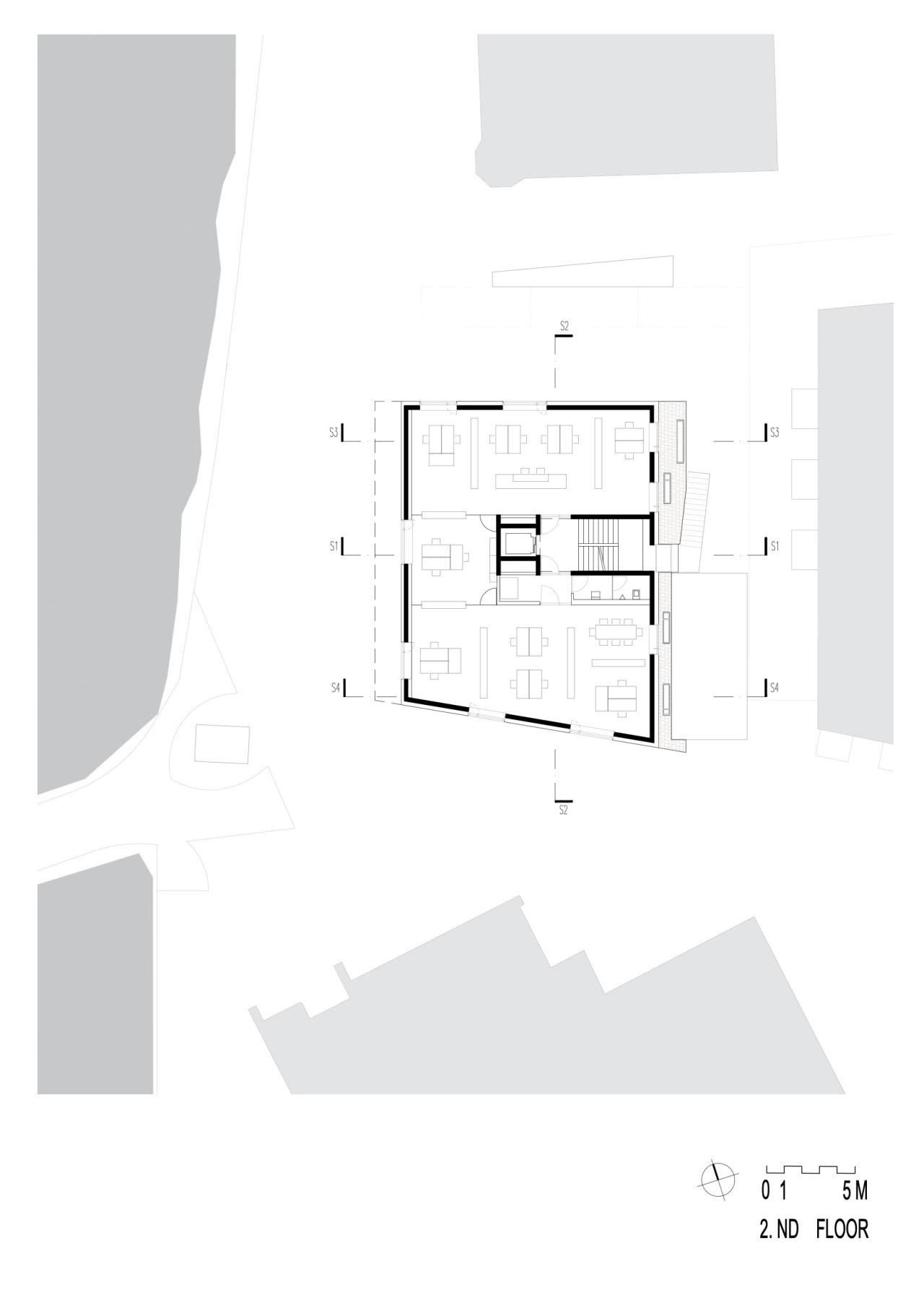
△二层平面图
△三层平面图
△四层平面图
△屋顶平面图
△剖面图
△剖面图
△剖面图
△剖面图
△立面图
△立面图
△立面图
△立面图
项目信息
建筑师: obermoser + partner architekten
面积 : 15985 ft²
项目年份 : 2021
摄影师 :Christian Flatscher
厂家 : AutoDesk, Nocker, Tip Top Fenster, Tischlerei Riml, Zimmerei Thurner
项目主创 : Johann Obermoser
项目执行阶段主创 : Christoph Neuner
建筑团队 : Felix Fehr, Sandra Seeber, Andreas Norz
建筑功能 : Public information center and offices
结构工程师 : ZSZ Ingenieure ZT GmbH
电力工程师 : Eidelpes Ingenieurbüro für Elektrotechnik
声学顾问 : FIBY ZT-GmbH
地点 : 奥地利,Sölden

BIM建筑网

































