这座砖砌住宅位于南部卡纳塔克邦(Karnataka)地区的沿海城镇芒格洛尔(Mangalore)。这座城市融合着许多文化,并以其独特的风景和散落在老城区的遗迹而闻名。建筑场地位于密集的城市蔓延区。搬到沙特后,客户的愿望是在他的祖籍地附近拥有一个家庭住宅。这座房子的设计理念映射了他的成长记忆中的旧砖厂,和那椰子树后若影若现的烟囱。红色氧化铁地板和石灰粉饰的墙面使房子保持清爽。总而言之,这座家庭住宅旨在唤起人们对过去的回忆,同时保持设计的独特性和美学现代感。芒格洛尔属热带气候,全年大部分时间降雨量从大到中等,夏季炎热。设计师们采用了被动的设计策略和规划原则,以确保不间断的交叉通风。
在角地块(Corner Plot)上留出必要的缩近后,房子被设计成几层。底部两层为半私密层,上层为完全私密的独立层, 这些楼层与先前规划的中庭相交。相邻通道的倾斜角度帮助人们从两个不同的楼层进入房子。地下室与娱乐场所(又名“Majalis”)被安置在一起,而上层则成为正式起居和餐厅的主要入口。入口在从地面升起并通向天空的三层高天窗下打开。
建筑中不同的中庭拥有不同的体积和楼层,其灵感一部分来源于“ThottiMane”(四合院)。通过一个向内的平面,天空的自然光可以透过砖屏过滤照射进中庭,甚至可以感到徐徐微风。交错排列的中庭空间还允许所有用户在私人区域之外享受扩展的庭院。
建筑表皮由数层材料层层包裹构成,以保持内层凉爽和绝缘。所有房间都有三层墙,外层砖块和内层砖块将红土砖砌体夹在中间。立面铺设砖块,排列成一定图案,创造出独特的表达方式,同时有助于缩小建筑规模。传统的瓦片斜屋顶的特点在这些砖的排列中得到了诠释,使人们走过的时候,建筑看起来就像在动一般。
通过使用天然材料,设计理念在室内得到发扬光大。黑色石灰石和灰色Tandur 构成了石膏墙的表面。通过与承包商在现场完成的多种石膏饰面,我们探索了动线的体验和对手工艺的礼赞。客户全程参与了设计过程,包括现场的解析。一整个建筑艺术是由项目建筑师构思和委托的,作为团队的一员,他将我们的建筑理念延续到这个项目中。融入设计理念的材料词汇成为过去的象征,并结合在一起优雅地走向未来。
项目图纸
△地下一层平面图
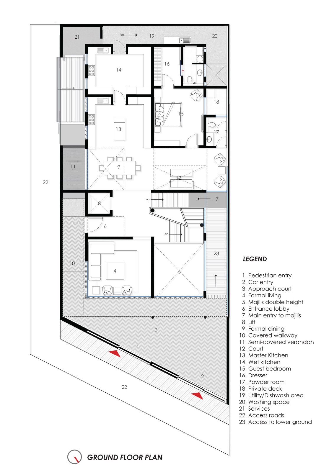
△一层平面图
△二层平面图
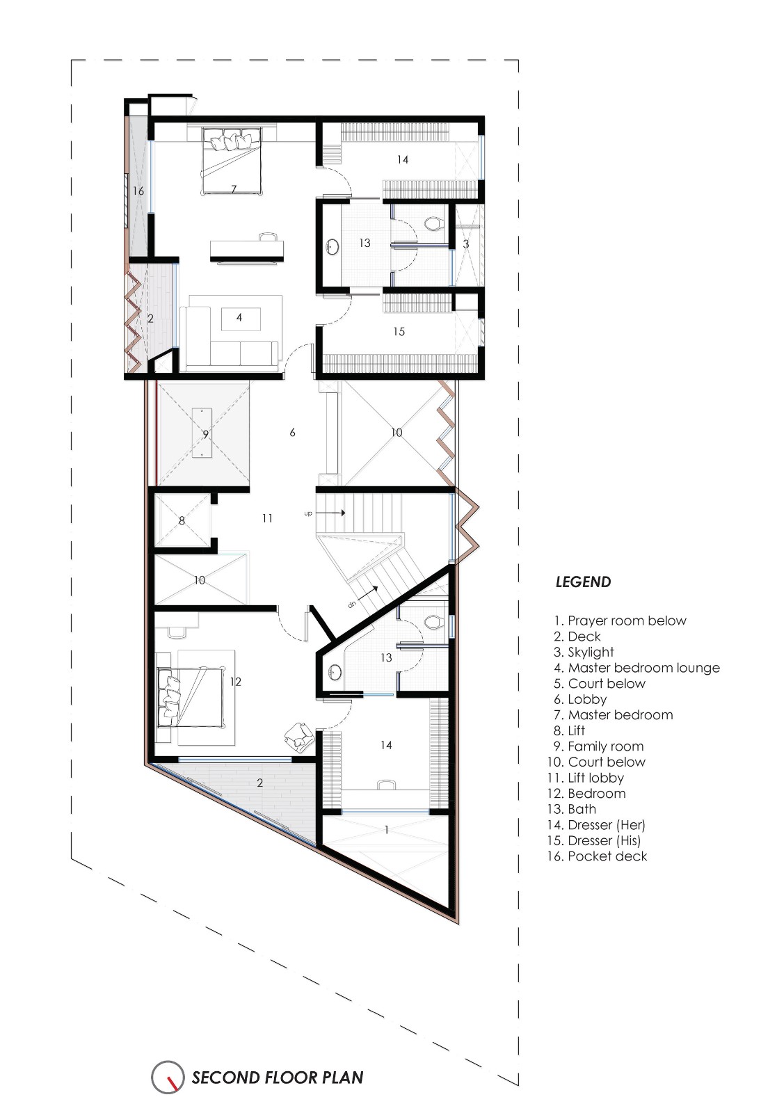
△三层平面图
△四层平面图
△剖面图
△分析图
△轴测图
△分析图
项目信息
建筑师:The Purple Ink Studio
面积 :13500ft²
项目年份 :2022
摄影师 :Suryan // Dang
厂家 : Alumil,FCML,MM INTERIORS,Panasonic,STONELIFE HYDERABAD,Schindler
主创建筑师 :Akshay Heranjal, Aditi Pai, Siddharth Waze, Jaikumar, Amal
主持建筑师 :Akshay Heranjal, Aditi Pai
项目建筑师 :Siddharth Waze, Amal Jain
工程师 :Jaikumar V
建筑设计 :The Purple Ink Studio
结构顾问 :Ashok associates
MEP顾问 :Ceecon Engineers
地点 :印度,Mangaluru

BIM建筑网










































