项目背景:南京的“板仓街78号”紫金山下,玄武湖畔,这里是南京师范大学的紫金校区,占地面积11万平方米,地上建筑面积约8万平方米。校区观山望湖,具有良好的景观和校园独有的生态环境。“板仓街78号”,在这里人文与校园情怀交叠,留下了许多人的青葱校园记忆,也留下了这座大学校园与城市的文化链接,构成了知性,包容,创新的学院派氛围。为进一步推动城市更新建设,2019年7月,历史悠久,风格古朴的南京师范大学紫金校区正式结束了教书育人的使命,送走了最后一批学子。政府与企业也都在积极探索城市发展建设的创新之路,思考如何通过更新与再生对现有土地进行功能转型、结构重建,从而与城市创新和新经济相融合。
从校园到园区:“微整形”的改造实践南师大原紫金校区的改造在南京师范大学、玄武区政府、金地商置三方的合作努力下进行。DUTS杜兹设计于2019年开始进行11万平校区的整体建筑与重点室内空间的改造设计工作。日前,校区整体的一期与二期改造已经完成,这座拥有六十几年悠久历史的大学校园,通过“城市微更新”的方式,化身成为江苏首座由全建制校区完整改造的南师大玄武生态科技园——金地·梧桐里。 杜兹设计的创始人,建筑师钟凌看来,“有时候我们会过度创造新事物,而当我们Zoom Out到城市的角度来看,会发现这片校区与城市的情感链接同样是非常珍贵的。因此,我们采用了一种有机更新的方式,在新与旧之间找到平衡。”DUTS杜兹设计的设计师对现有建筑进行了大量的观察,记录与分析,从建筑改造,室内场景到园区业态都进行了多维度的思考,在尊重原校区内在肌理和秩序的基础上,最后选择了“有机微更新”的改造策略。设计师留存了建筑与城市的情感记忆,通过立面重组、交通重组、室内空间重塑等角度对建筑进行“微整形”,来为这座大学校园注入新的活力,让它在新时代中焕发新生。
原校区1号楼:通过置换屋顶激活内在活力
园区正门对面为原校区的1号楼,是学校年岁最长的一栋教学楼。设计团队保留了屋顶的尖顶造型与建筑轮廓特点,同时利用新材料进行全楼包裹加固。南师大校训:“正德厚生、笃学敏行”八个大字在重新制作喷漆后重新悬挂在1号楼的外立面上。在建筑立面上,设计师利用建筑材质丰富建筑立面,并在一层突出了入口空间。一层还通过植入围合钢板,整合主入口和一层沿街立面,同时在室内增加了更多辅助功能的空间,如一层临街的商业空间,中庭休闲空间和其他多功能灵活空间。
原1号楼屋顶为木结构,已比较破旧,出于安全考量设计团队置换了原有屋顶,并中部嵌入现代玻璃屋顶,引入自然光。兼顾建筑南面可观紫金山的特点,设计师将1号楼四层中庭打造了公共交流空间,扩大外立面玻璃面的范围,让1号楼成为了真正的“山景房”。通高的屋顶形成如同天井的空间,午后的阳光洒落下来,为建筑内部引入自然光线。经过整合后的人流动线,创造出更多室内的视野及物理上的联系。
原校区5号楼:重构多层次的文化场景原校区5号楼原入口从2层大楼梯进入,对于改造后的园区来说使用不太必要,设计改造拆除了主入口的大楼梯,突出入口空间,也更好的建立起内外的链接。利用原有校区绿荫环绕的景观特点,增加宜人度的小品,人文校园变身成为学院派风格的新型办公园区。利用中庭创造共享文化空间:5号楼的改造结合了更多对室内场景的思考。新的水平动线的组织使得办公单元更加完整,更便于灵活分割,互相干扰更小。原本露天的中庭加建了顶棚,成为了宽阔,视野通明的室内中庭,成为丰富有趣的公共空间,在这片公共空间中,可以举办园区的重大活动,大家可以尽情碰撞灵感,与志同道合的人相识相知,激发创造力。内中庭的立面经过更新,保留了原有教学楼的人文氛围,更加年轻与活力。设计师取消了原来的老旧楼梯,同时扩大了玻璃幕墙的面积,丰富了外立面的颜色,使整栋楼看上去更加现代。设计师通过“场景重塑”,让原有的校园场所转化为与文化融合的复合办公场景,更好的满足当代都市人群的办公需求。利用原有的教学楼空间增加出六层开阔的顶层露台空间,创造更多休闲生活的可能。原5号楼中的南师大学术报告厅改建成为了多功能设施齐全的“梧桐讲堂”,可容纳300人同时就座,多媒体设施先进而齐全,可以满足演出、会议、路演等活动需求。
原校区7号楼7号楼是原校区的“图书馆”,设计师保留了“图书馆”这座公共文化建筑的情感记忆,留了建筑整体形态与轮廓,并通过现代建筑手法,使其呈现愈加开放与现代的姿态。通过重新打造交通核,结合挑空中庭及交流空间进行组合设计,让公共空间的价值最大化;挑空中庭直至屋顶天窗,形成自然采光的内环境,交流空间面对紫金山,享受最佳景观资源。保留原本图书馆的人文气息,设计师为其注入现代城市生活的复合业态,创新性的将开放咖啡厅、共享办公室、餐饮美食、互联网、生态科技等以当代手法注入“图书馆”,成为城市年轻人的社区生活圈。
原校区学生宿舍:宿舍变身WELIVE独栋办公区针对校区原有的学生宿舍区,设计师将原本封闭的建筑局部打开,结合内部改造,成为别具特色的“WELIVE”独栋办公区。释放无限活力的运动操场:园区也对南师大的操场进行了保留,成为一般办公园区中少有的大型运动操场。从校园到新型办公园区的生活继续在延续。走出校园,人们还可以继续在橡胶跑道上慢跑散步,增强体魄,下班后也可以与同事相约一场足球赛,极大地丰富了业余生活。
结语南师大紫金校区11万平的改造项目,是DUTS杜兹设计“城市更新”实践中迄今规模最大的落地项目。三年与业主一起不断的打磨与探索,在规划,建筑,室内都进行了诸多创新的思考及实践,我们期许其展现的是南师大的精神风貌和人文底蕴,更是对城市的长远规划和未来图景的期待,也期望更有机的“微更新”实践能为城市发展,产业升级与更有品质的城市生活助力。面对存量城市用地,建筑师同政府、校区、开发商共同携手,积极探索城市发展建设的创新之路,通过更新与再生对现有土地进行功能转型、结构重建,从而与城市创新和新经济相融合。通过“城市更新”唤醒11万平南师大“校园再生”,板仓街78号的故事与新的生活还在继续。
改造前:
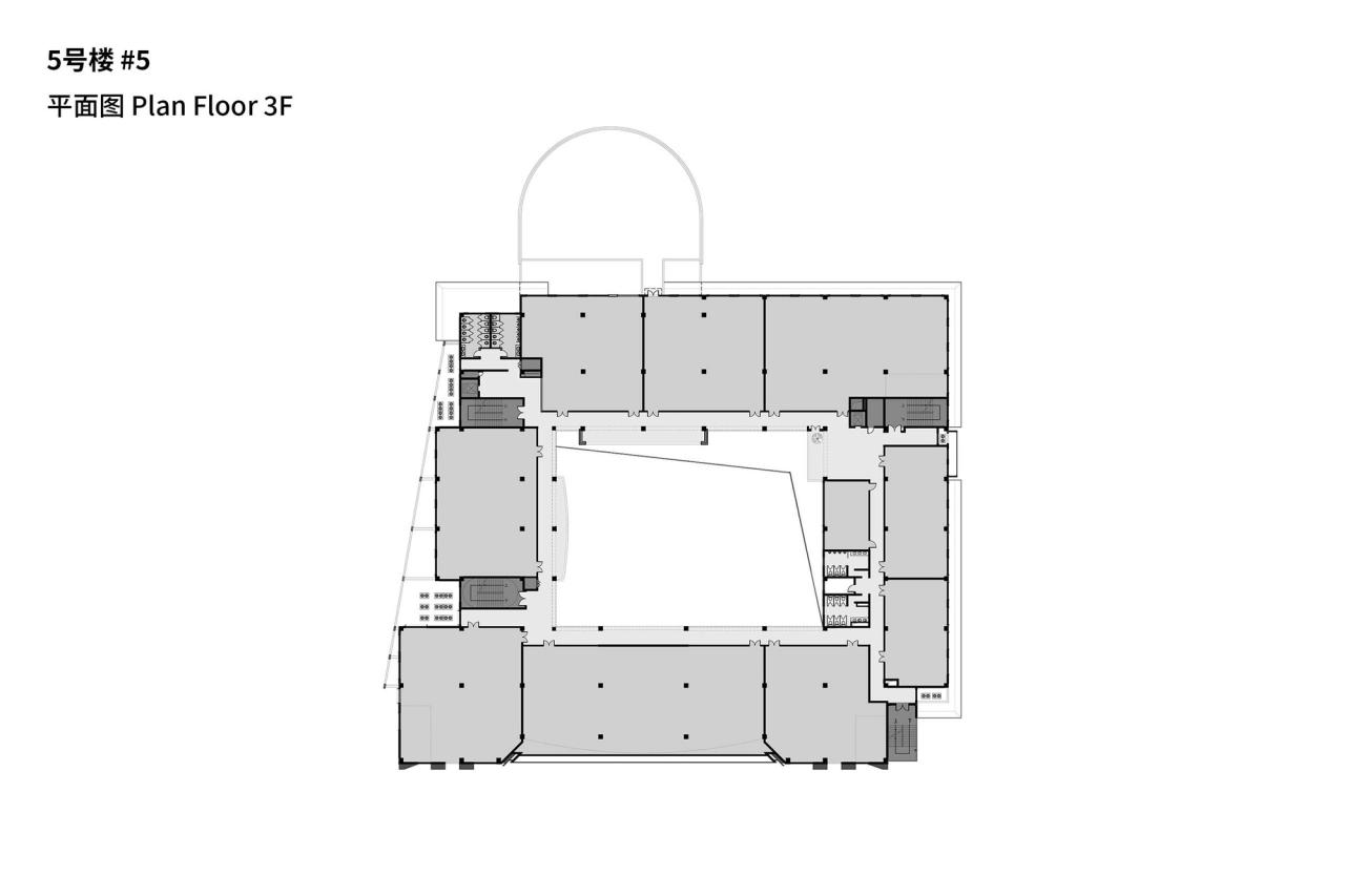
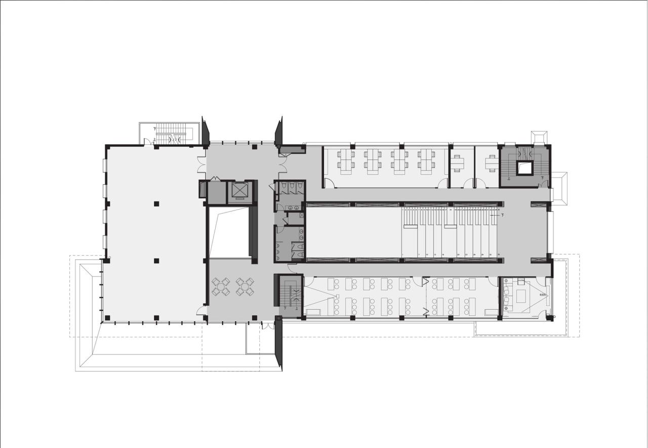
项目图纸
△基地示意图
△七号楼平面图
△七号楼平面图
△七号楼剖面图
△改造楼栋示意图
项目信息
建筑师:DUTS 杜兹设计
面积 :110000m²
项目年份 :2022
摄影师 :吴清山,RIF Studio
厂家 : 3M,Eternit,Opple,塔坨瓷砖
主创建筑师 :钟凌
设计团队 :万涛、胡颖祺、Bruno Rodriguez、顾恬阳、苏蒋健
室内设计 :施望刚、项哲、周广建、赵慧、万佳宇、刘颖
景观设计 :罗朗景观
委托方 :金地商置
地点 :南京

BIM建筑网
































































