掀起房子的四角想象一间两层房子的四角被掀起。更多的光便照了进来,层高也变得模糊,有的房间有两层通高,有的房间有一层半那么高,还有的房间只有贴近屋顶的半层,自然成为客厅、画室、檐廊或者阁楼…屋顶自然成了一处由四条曲线围合出来的双曲面露台,像一个面向天空敞开的院子,院子的中间是晴天夜晚人们乘凉望月的地方,也是雨天雨水汇聚的地方,这里隐藏着四处排水点,将雨水从屋内引向屋外。
画室+住宅这是位于江西省抚州市芦坑村里坳小组的一间画室,主人是北漂多年后又沪漂了几年的艺术家朋友竹子,可能是因为漂得太久,所以希望在老家盖一间画室,每年可以选择一定的时间段回家创作,同时满足父母的日常居住以及两个姐姐一家回家过节团聚的需要。
乡村生长极简史芦坑村是竹子出生和成长的地方,在深山里,交通并不便利,和很多山里的村子一样它有自己的小环境,画室所在的里坳小组几十栋房子多依山而建,面田而居,现状居住类型多为公元2000年以前建造的一字型二层楼房,中段还保存着一栋合院式传统老宅,已无人居住,2000年后建造了一些新式外贴瓷砖的农居房,这三个时期的房子记录这个村子的生长简史。如果竹子没有回家盖画室的想法,这个村子应该会继续以新式农居房慢慢替代上世纪住宅的方式,安静地更新生长,或者随着常住人口的减少而慢慢停止生长。画室的出现应该是这个村子生长史上的一次美好的意外。我们希望在这片乡村生长史的水面上激起一点涟漪。
从“画室+住宅”到藏着住宅和画室的小房子在设计之初,我们并没有太多先入为主的设想,是延续村子的现状还是置入一个天外来物?竹子家人的居住需要让它不可能是一个天外来物,画室的存在又让它不可能完全融入这片村落。从最初头脑风暴到最终的方案,我们设想了很多种可能,方案从当地语言与画室形态以及住宅功能与画室功能的拼贴,到越来越接近于一个边界清晰的有趣模型,更多地消解了关于当地的具体印象,拼贴感越来越弱。就像一个艺术家创作之初需要感受万物、情感丰富,但最终的作品还得是单纯的、直接的、边界清晰的。在我们看来,竹子回老家建造画室,是一件有浪漫气质的事,于是我们给予它一个有浪漫气质的屋顶,来涵盖生活空间的日常性和创作空间的特殊性以及两者之间的连接。
连续的公共空间与6个小房间比起卧室,竹子更在意公共空间的大小,设计之初他给了我一张照片,是他每天路过的一栋深檐廊的西式建筑(上海武康路原意大利领事府邸)的照片,他希望自己的新房子也能有比常规乡村住宅更深更大的檐廊,这样可以为村民和家人提供乘凉、聊天的空间。这个村小组目前常住的人口只有10个,所有的年轻人都在外地,对于还留在村子里的老人和孩子来说,可以交流的公共场所尤为重要。对于很少回家团聚的竹子一家人来说,可以交流的空间似乎也要比私人空间更重要。于是我们以檐廊为起点,设计了一系列公共空间,檐廊连接着两层通高的客厅,客厅连接着画室,画室连着阁楼、二层檐廊以及屋顶,形成了连续公共空间的系统。居住空间中的卧室被压缩成6个小房间及其他辅助房间。在边界清晰的外壳里折叠着一组连续的公共空间,可以通向6个不同的小房间,屋顶之下藏着一个通透的小世界。
建造建造这个房子对于当地人来说是个新鲜事儿,也不是件易事,参与建造的是邻村的师傅,主要负责的两位师傅一位年长,一位年轻,年长的活儿好,年轻的能看懂图纸,善于沟通。竹子父亲管理施工的同时也亲自参与了建造。这个房子在预算极其有限的情况下能建成离不开他们的付出。为了方便师傅们直观地理解方案,除了施工图,我们还分别3D打印了建筑模型和结构模型放在现场。最难建造的是屋顶,主要是支模难和浇筑难,对于只做过平屋顶和坡屋顶的师傅们来说,双曲屋顶一下多了几十个定位点,难度自然提升了不少。
当然我们也根据当地施工的实际条件适当地调整了设计,比如原来我们是用方格定位屋顶的标高,跟师傅讨论后改成了根据现成的旧模板的尺寸来定位屋顶的标高,更便于施工也节省造价,比如原方案北侧尖角起翘更高,浇筑时没有混凝土浇灌车,只能靠人工推车,而尖角太高,车子就推不上去,加上支模的立柱出于造价的考虑用的都是木柱而非钢柱,木柱高度不够,拼接的话强度不够,基于上述两点原因我们就降低了北侧尖角的高度,虽然北高南低的态势有所减弱,但更符合施工的实际情况。经过施工中的讨论和随机应变,最终呈现的是一个有新意同时又包含着乡村特有粗野感的小房子。屋顶浇筑当天,感觉全村的邻村的人们都来帮忙了,因为没有混凝土浇灌车,又需要一天内把屋顶浇完,所以大家齐心协力,共同造屋,场面感人。
房子盖好后房子盖好后,竹子亲自在画室制作了一批可爱的家具,从床、桌子、凳子、灯具到工具架,家具中局部出现的弧线,说是为了呼应屋顶的曲线。房子盖好后,竹子为房子起了一个名字,叫“反曲小筑”,并写了一副对联,“反观常物穷思变,筑就乡村新容颜”。成为独立艺术家的竹子在村子里多少有些反常,这幅对联应该就是他内心的独白,所谓的反常对他来说可能就是思考角度的不同,是一种反思,他想通过建筑师把自己的反常以一种可见的方式表达出来,反常便有了积极的意义。作为建筑师,一座反常的房子可能意味着有趣,为日常生活置入一些可以遐想的空间。房子盖好后,过年竹子家邀请亲戚们团聚吃饭,办了八桌,画室成了宴席的大厅,渐渐淡去的年味在那一刻似乎又回来了。
房子盖好后,因为拍摄我、竹子以及摄影师夏至去住了两天,我们仨想聊天的时候就随时找地儿聚在一起,檐廊、餐厅、画室、客厅、树下或者屋顶,想独处的时候也能随时找到各自的角落,很自在。那时正值夏日,村子里安静得只剩下蝉鸣、鸟叫甚至微风吹动树叶的声音,时间变得无比缓慢,发呆的时候甚至有些恍惚,时而觉得自己身处平常恬淡的乡间,可能因为有了这个房子的存在,时而又觉得自己进入了童话里的夏天,稻田、西瓜、老人、小孩、土狗、圆门洞、竹子的画、曲屋顶、屋顶下筑窝的燕子以及上弦月…
项目图纸
△项目模型
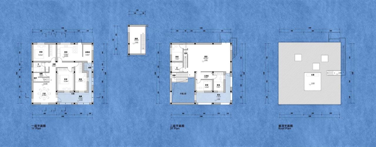
△平面图
△立面图
剖面图
△不同方案模型
△不同方案模型
△屋顶的定位网格及高度调整
△结构与排水示意
项目信息
建筑师:跳房子建筑工作室
面积 :310m²
项目年份 :2021
摄影师 :夏至,王田田
主创建筑师 :王田田、罗雅琴
结构设计 :周建成
施工方 :竹子父亲、小柴和小根师傅团队
委托方 :竹子
地点 :抚州市

BIM建筑网














































