住宅原貌项目位于陕西省渭南市临渭区故市镇巴邑村,原为2000年左右建造的一层平屋顶建筑,结构为砌体结构并内设圈梁和构造柱。对房屋结构进行安全性检测鉴定,该建筑的安全性能满足现行规范要求,但由于长年无人居住,存在屋面渗水、室内通风采光不良、内墙霉变等问题。业主希望对住宅进行改扩建,增加功能单元,延续关中乡土民居坡屋顶形式,保留院落绿植并控制建造成本。
更新设计策略通过对既有住宅结构检测,掌握内部结构特点,遵循加建结构的安全性、适配性以及经济性原则,二层采用“砌体+框架”混合结构,其中主体为砌体结构,设圈梁和构造柱,加强结构刚度;玻璃砖墙部分为钢筋混凝土框架结构,空间划分灵活;屋面为有檩体系轻钢结构,大大降低自重,最上层覆盖机制红瓦。
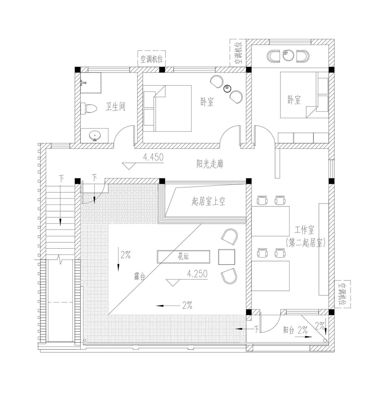
完善居住功能门房、正房住宅的空间分布从南向北将宅基地限定出前中后三进院落,前院作为住宅与国道的缓冲区域,满足停车、农作物种植需求;中央内庭院为主要生活区域,满足日常休憩、娱乐、观景需求,后院为储藏以及设备管井埋放区域。改造后的两层居室采用交通空间环绕居住功能的集中式布局。一层南向设置入户门和阳光走廊,客厅、餐厅、吧台等公共空间居中布置,采光通风井改善了室内自然采光和通风环境,东、北侧依次为卧室,卫生间和厨房。西侧加建的直跑楼梯提供了通向二层的竖向交通,二层为扩建的居室功能,依照上下层结构逻辑围绕室外露台呈L型布局,东侧工作室亦可作为第二起居室,与南向开敞阳台和露台空间相连;室外露台创造了绝佳的观景视角与休闲场所,使得庭院景观与田园风光尽收眼底。南向坡屋面敷设太阳能光伏板,满足住宅日常用电需求。
绿色技术应用生态、环境与住户的生活品质息息相关,玻璃砖房关注现代乡土住宅绿色宜居品质提升技术的适配性应用,着重考虑当地风、光、水等自然因素对住宅的影响,应对四季气候的变化。采光通风:南向阳光间采用大面积空心玻璃砖和条形长窗,最大限度增加采光面积;客厅上部拆去局部原有楼板增设采光通风井,改善室内采光的同时可利用热压促进自然通风。外窗均采用断桥铝合金框料和Low-E中空玻璃,严格控制开启面积,夏季开启利于自然通风,冬季关闭抵挡外界风寒。
降噪隔音:为解决与宅基地紧邻的南侧108国道交通噪声问题,住宅一、二层卧室均分布于北侧,南向分别设置阳光间作为空间缓冲,并在南向外墙使用隔音性能优异、透光率高的空心玻璃砖,以期达到良好的降噪隔音效果。保温隔热:屋面延续关中传统民居“闷顶”空间形式,冬夏两季作为气候缓冲区,对主要生活空间起到保温隔热的作用;外墙南向设置阳光间,墙面敷设高性能相变蓄热材料,白天吸收热量,夜间缓慢放热;卧室、起居室外墙均采用内保温构造,满足保温隔热需求。屋面敷设太阳能光伏板,为室内石墨烯取暖设备供电,实现全屋零碳采暖。
雨污分流:关中地区水资源短缺,为实现雨水循环利用以及污水处理回灌,中央内庭院东侧结合水景设置雨水净化系统,最终引入蓄水池,为庭院提供灌溉和景观用水;室内卫生间均通过管道与后院东侧三格式化粪池相连,经生态湿地净化后排入北侧农田;淋浴、洗衣、厨房等生活污水就近排入后院西侧三缸污水处理池,净化后经管道排入前院蓄水池,用于农田灌溉。
乡土住宅新模式在乡村弱经济地区利用低成本的技术手段,将经济投入用于住宅整体功能与性能的提升,对西北地区乡村既有住宅改造提升具有重要意义。传统聚落和乡土住宅的本源特征体现在其选址、朝向、平面布局、空间组合、建筑用材、构造处理等方面,反映了人们依据自然法则创造良好人居环境的思想和经验。渭南巴邑村玻璃砖房从设计到建造着眼于关中乡土语境、材料、创新和技术,将传统营建技艺与现代建筑空间设计理论相结合,合理地运用和继承原有材料构造与结构体系,创造关中乡土住宅新模式,并通过试验与示范研究,使乡土住宅逐步走向现代和绿色。
项目图纸
△总平面图
△原平面图
△一层平面图
△二层平面图
△立面图
△剖面图
△分析图
项目信息
建筑师: 西安建筑科技大学建筑设计研究院
面积 : 400 m²
项目年份 : 2021
摄影师 :张晓明
主创建筑师 : 高博、王怡琼
设计团队 : 高博、王怡琼、李志民、张华、许懿、尚路轩、王晓静、孟庆民、徐方园、郑一帆、王璐、王位正、张乔、翟欣、王筱婕、杨润鹏、杨赞、毕新雅、王雨萌、徐菁华、贺思静、石楚凡、王子纶、余浩然、李晓、李瑞雯、高梓瑜、李东昊、周晨曦、刘坤琦
委托方 : 李莲萍
地点: 渭南市

BIM建筑网





































