位于美国新泽西州普林斯顿市的普林斯顿高等研究院 IAS 原建于 1930 年,由 Steven Holl 建筑事务所打造的鲁宾斯坦公共活动室将成为坐落在这一历史悠久的校园内的新公共建筑。IAS 最具标志性的富尔德楼(Fuld Hall)原建于 1939 年,如阿尔伯特·爱因斯坦、罗伯特·奥本海默、杨振宁等学术大师都曾在此工作,而新公共活动室则位于该建筑旁。
鲁宾斯坦公共活动室的设计以“交织”概念为驱动,并将外部流线编织进入、穿梭于建筑之中。这一大楼将成为新社交活动场所,其中涵盖了各种灵活的会议空间,并将支持 IAS 园区内的各种社区及学术生活。新建筑将保留现有的地形,打造随缓坡渐渐变化的单层功能型建筑,并为使用者提供宽阔的庭院风景。
建筑在与景观的交织中形成,并在南、北、西三侧与水池相连。其周边的水池将光线折入室内空间,并营造出“思考”的氛围,以此让自然现象与科学、物理、人文和艺术等研究所代表的学术领域相呼应。
鲁宾斯坦公共活动室内的空间几何由两条非平面的曲线相交构成的“空间曲线”定义,同时也映照了普林斯顿高等研究院前任院长罗贝特·戴克赫拉夫(Robbert Dijkgraaf)所说:蜿蜒的天花板为学者们的“思想泡泡”提供了空间。
建筑室内由天然的黑色板岩装点,这一材料也代表了IAS的求知渴望与交流的传奇历史。此外,棱镜玻璃将白光分解为光谱,由此为室内增添光线与色彩,并由此创造活跃的氛围。同时,定制的手工吹制灯具点亮了蜿蜒的天花板几何形体。以纽结理论(knot theory)及海龙卷为灵感设计的门把手装点着建筑东、西侧的入口,并时刻欢迎着人们进入。
水池边的景观也将“记录”一年时间内四季的变迁。在春季,盛开的粉色紫荆花将从东侧树林中一簇簇冒出。在夏季,郁郁葱葱的银杏树叶和俄罗斯鼠尾草紫色花朵装点着南侧风景。在秋季,悦动的红枫和染上金色的银杏叶将与南侧镜面水池形成鲜明的对比。在冬季,北侧花园的白松与美国冬青树则全年无休地提供绿色背景。
此外,建筑采用了由地球季节性温度自然变化提供能源的20座地热井,并通过散热地板为建筑物供暖、制冷。同时,穿过木框架窗户的自然风也将为室内空间带来光线与新鲜空气。
项目信息
△基地示意图
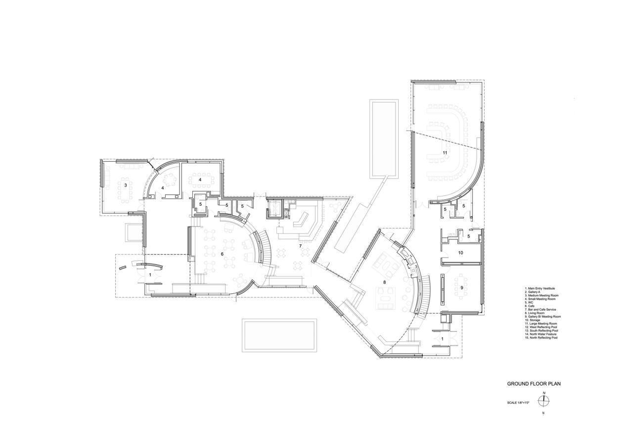
△首次平面图
△屋顶平面图
△夹层平面图
△立面图
△剖面图
△分析图
△分析图
△分析图
△分析图
△分析图
项目信息
建筑师: 斯蒂文·霍尔建筑事务所
项目年份 : 2022
摄影师 :Paul Warchol
业主 : 普林斯顿高等研究院
主持设计师 : Steven Holl
责任合伙人 : Noah Yaffe
项目高级建筑师 : Christina Yessios
项目助理建筑师 : Yun Shi
定制生产专家 : Michael Haddy
项目团队 : Xi Chen, Carolina Cohen Freue, Michael Haddy, Marcus Carter, Alessandra Catherine Calaguire, Elise Riley
厨房 : JME Hospitality
水景 : AquaDesign
MEPF 工程师 : ICOR
结构工程 : Guy Nordenson and Associates
可持续设计 : Transsolar
造价工程师 : Dharam Consulting
土木工程 : Van Note Harvey
泛光设计 : L’Observatoire International
景观设计 : Ed Hollander Landscape Architects
幕墙顾问 : Knippers Helbig Advanced Engineering
地点 : 美国,普林斯顿

BIM建筑网






















