建筑应该是一种文化、生活和风格的表达,他常常会在某一个细小的地方打动你,当那种来自内心的情感,被人抽离了一般蓬勃而出的时候,他与你之间便有了默契的秘密,他对于你而言或许便是特别的了……
基本情况
长沙铜官窑遗址公园是湖南省三大遗址公园之一,是湖南省第一批获批的国家级遗址考古公园,而长沙铜官窑遗址博物馆项目正位于遗址公园遗址核心区内,考虑到整体布局与已建的管理中心的相互联系又独立分开的格局,我们将铜官窑遗址管博物馆设置在场地西南角,与觉华山宝塔遥相呼应。建筑西邻滨江大道,与湘江一路之隔,在山水之间,宁静风雅,颇具有风韵。
因此建筑如何充分满足博物馆的功能需求,如何呼应场地条件,如何突出铜官窑的特质是我们需要面对的问题。让建筑以一种最接近大地的状态回归自然,是我们构思立意的起点。
构思立意
一、龙窑,生命的启示
任何器物都是从泥土中来最后回到泥土中去,这何尝不是一种自然的生命状态。紧紧抓住这一创意点,感觉建筑与龙窑的形式不谋而合,同时也非常适合博物馆的线性流线设计。
从参观者的角度看,建筑的整体格局平缓、自然、流动。在山体水体之间,建筑仿佛一条长长的记忆的载体——龙窑,从地面升起再回到地面,建筑的行走过程,他的起伏与高潮像瓷器烧制过程一样,在出窑的那一刻完成价值的体现。所以我们当时第一感觉是用了一个从地面渐渐升起的线型的展览流线,暗合龙窑的形式同时也满足了博物馆的基本功能:一个是它的流线非常清晰,再一个就是至始至终的转承启和体现了一个完整的生命过程。出口与入口完全设置在同一个竖向标高上,上与下之间,终究将回到地面,中间一切不过是一个过程。
二、观光塔,升华的器物
解读长沙窑文化的时候,我们读到了包容,开放,创新,也读到了艺术灵感来源于生活的最朴素的哲学。
我们在博物馆这线性的建筑中结合地形在中间构成一个转折,自然形成了一个庭院,既是行走路线途中的一个缓冲地段,打破冗长的线性展厅,也是给参观者一个相遇的空间节点,创造博物馆于生活层面的小插曲,这种设计思维模式与铜官窑的制作场景有某种层面的开放包容的契合。我们在庭院的中间设置了一个垂直交通体,与后面的觉华塔遥相呼应,两个高点串起自然山与水。
他从下沉庭院底部一直上升超越至最高的屋面,我们利用堆积层的概念在下沉式庭院内侧镶嵌了层层的陶瓷碎片,于是这个垂直的主体仿佛龙窑的烟囱,又好似一个器物从堆积层中获得重生,站在塔上,低头看下去,是历史,是碎瓷片堆积,抬头远眺,是现在以及未来千年不变的湘江。
这许许多多的材料和空间的组成,一直都在暗示着一个主题,无数的积累与放弃成就了精美的器物,人的成才成器大抵也是如此。
三、空间,陈列的舞台
铜官窑博物馆陈列大纲在建筑设计之前就已经成熟,对设计师而言是一个比较大的优势,在设计之初,展陈与建筑空间结合,分为七个部分,从序厅到尾厅,建筑空间被不断斜向上升的坡道与台阶巧妙分割。顶部的天光部分提供了多角度的展陈方式。直线、折线与大形空间相结合,在内部行走观展的过程中,平添趣味。
建筑展示空间按时间发展顺序娓娓道来,一气呵成。展厅时而平缓、时而高低错落,建筑本身形成的格局带来空间的丰富性与趣味性。细细品味周边的布置,还原的场景,极富表现力的造型给参观者带来不一样的体验。
不平凡的瓦渣坪往事,遍地瓷片,俯拾即是,似乎在诉说着长沙窑当年那段辉煌的历史。而心手之间的造化主要体现长沙窑瓷的制作工艺,窑火灵幻部分则将长沙窑的烧造工艺,放在建筑有天光的一侧,给线性空间带来惊喜。
时空留痕处,恰是首尾相通的贯穿,给人以意犹未尽的感。整个展场突破了以功能分区、展陈结构为骨架的传统观念,寻求到了人与自然在空间认知上的同构关系。
四、复合,生活的诗与画
紧靠着江边的博物馆,让人们从西南、东南两个方向汇聚而来,沿着滨江路极富情趣的前广场,作为观展人流的入口。利用上下叠加部分设计了开放式的图书阅览与餐厅、办公区等功能用房,做到场地的最有效利用,观展与休闲,行走在过程中,建筑内外皆是美景。
建筑造型自然洗练,一气呵成,体现出流动的美感与山水相映成趣。建筑背靠觉华山,面朝湘江,低调而谦和地匍匐在堤岸上,似乎还原了那场唐代的炉火漫天。相遇的节点,丰富的临展厅,面对自然山体的图书阅览室,参观途中可以停下来的手工教室,美好而有历史层次感的下沉庭院,站在最高处极目远眺的湘江,这一切不仅仅是参观学习交流的公共空间,他们已然复合成了所有人生活中的诗与画。
绿色节能
铜官窑遗址博物馆,充分结合气候条件、建筑的使用特点及项目所在地地理位置状况,以“被动式技术优先、主动式技术优化、可再生能源和非传统水源补充”为基本技术路线,量身定制了绿色设计方案,获得了三星级设计标识。
一、结合地形地貌、水体、植被等进行设计,保留北侧原有自然水体、东北和西北侧自然山体,减少建筑开发对环境的破坏和建筑开发完成后修复过程中资源的浪费。保留原有山体同时也利于对场地微气候的营造。项目为地上2层建筑,能利用保留的山体和树木实现对建筑的遮阳作用,有效阻挡冬季西北方向寒风直吹。项目南侧则放开在夏季和过渡季引入湘江凉爽的自然风。
二、合理使用地源热泵及太阳能热水系统等可再生能源。地源热泵供应冬季全部热负荷和50%的夏季冷负荷,场地东南侧室外绿化地下部分设计192口双U型地埋管井。利用地下土壤温度全年相对恒定的特点,由土壤源热泵提供夏季大部分空调制冷负荷和冬季全部空调制热负荷,大大降低对电力能源的需求,同时避免了冬季供暖采用燃气锅炉。目前使用效果良好。
三、外墙的装饰混凝土轻型墙板以当地矿山工业废料(石渣、石粉)为主要原材料,不但可以强烈的表现特殊质感,还能有效防止开裂、降低成本,而且消化当地工业废料,从而起到节约资源,促进生态建设的作用。
项目图纸
△手绘设计图
△手绘设计图
△手绘设计图
△手绘设计图
△区位图
△总平面图
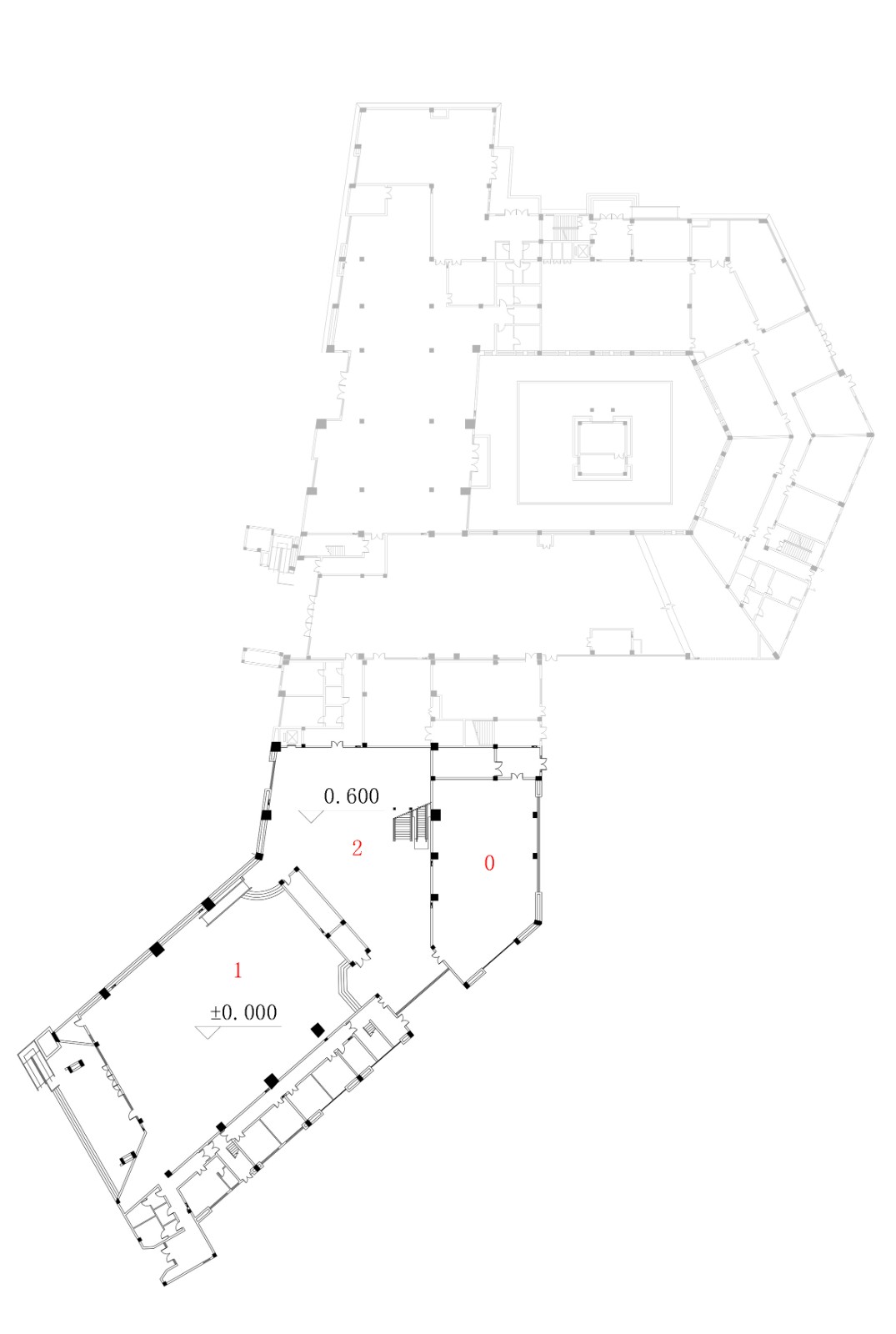
△一层平面图:0临展厅 1序厅 2 前言
△二层平面 3 “瓦渣坪”往事 4 心手之间 5 窑火灵幻 6 彩韵唐风
△一层平面图7 时空留痕(尾厅)
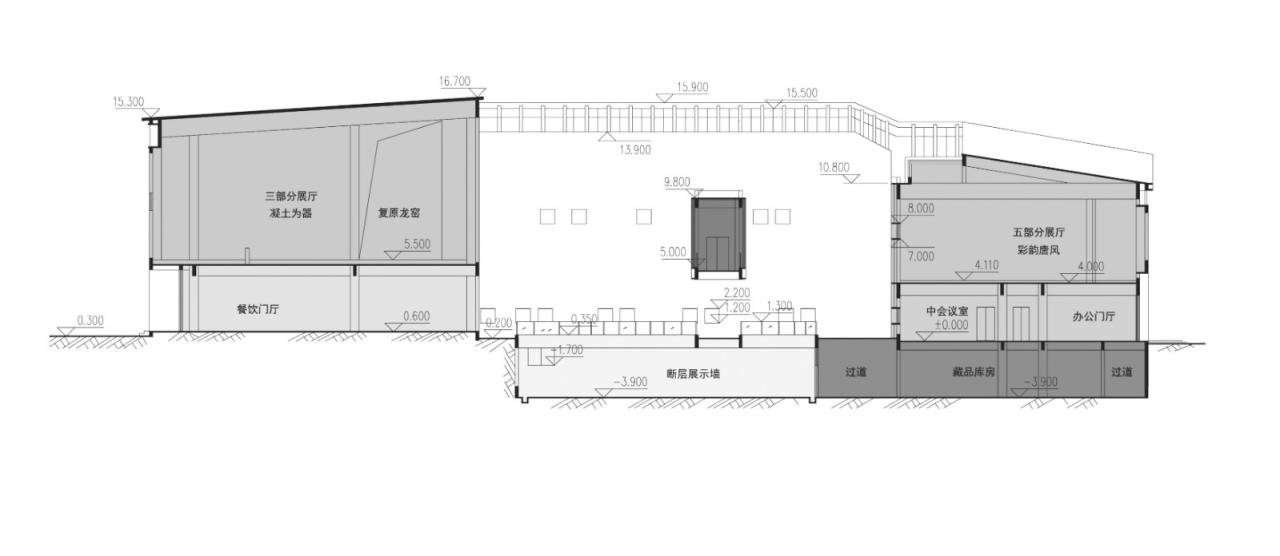
△剖面图
△观光塔
△建筑生成图
△爆炸图
项目信息
项目名称:铜官窑遗址博物馆
项目位置:长沙市望城区铜官街道
项目业主:湖南长沙铜官窑建设开发有限公司
设计团队:罗劲工作室
设计单位:中机国际工程设计研究院有限责任公司
建筑面积:11436.5平方米
总建筑师:罗劲
建筑:罗劲、谭志明、张昱婷、陈文锋
结构:付国忠、陈立、盛利
给排水:刘建明、杨帆
电气:周浩、周红伟
暖通:向宏、张勇华
景观:程启
设计时间:2010.11
竣工时间:2017.12

BIM建筑网






































