▲ 文保公园视角 ©AET
▲ 沿街主立面 ©AET
如何实现多元文化共融和生活服务共享,是本次设计展开的初心。以居住人群为中心,构建一整套家庭功能的延伸体系,满足人们在家附近寻求生活,实现文化交流的需求,将社区活动、日常福利、邻里交互等等日常场景,生成充满归属,温度与情感的共同体,这个过程也是一次关于社区理想生活方式的探索。
01 丨 社区与城市
本案位于珠海市唐家湾后环片区核心地带,深受唐家文化浸润,北邻近百年历史的中山公园和南海海湾,东侧则是未来珠江口西岸高端产业聚集发展区的深珠合作示范区。周边质朴的村落逐渐离场,但场地内部还留有一座上世纪初的中山公园门楼与数棵生长多年、与地块融为一体的参天榕树,记忆交错,空间破碎。地域属性和规划预期决定了本地块作为城市更新项目的复杂性和融合性。
▲ 区位分析图
▲ 场地内的留存的保护建筑与古树,左侧为现状村落
▲ 视线穿过中山公园,北侧即是一线海景 ©承迹设计
02 丨 可漫步的街道 有温度的社区
创造一段可体验、有温度、交互多样的邻里之旅,是我们在面对复杂设计需求的判断,也是我们贯彻始终的理念。
丨 边界 丨
邻里中心地块位于整个片区规划的主要轴线,南接城市,北连自然,东西串联住宅社区。我们希望它能将地域的复杂性兼容并蓄,把都市人的生活方式、自然的场域、人文的印记都衔接在一起,用空间的方式向人们发出邀请,让更多的自然与公共空间为社区及它所承载的生活方式带来新的可能。因此建筑的边界必须是消融的、与周边相互渗透的。
▲ 区域结构分析图
▲ 将文保公园绿意引入街区
我们在空间上设计了三条不同的动线,以多孔而开放的渗透性,丰富穿过的体验感。同时将北侧文保公园的绿意最大限度地引入街区。舍小得大,为释放更多空间至公共漫步空间,住宅用地退让出一部分景观空间给到邻里中心。
▲ 邻里中心串联起社区的三条漫步路径
▲ 邻里中心作为核心节点串联起南北用地
▲ 开放的架空层
▲ 开放的架空层 ©AET
丨 门楼前的场景再现与社交回归 丨
Real places are not found between buildings, but in experiences worth remembering.
—— Curtis J. Scharfenaker Prominent
文保公园中的中山公园门楼,距今已有近百年历史,见证了整个片区的更新与发展。原有的场所记忆对当地居民意义非凡,不仅仅是对时光的记录,更是一种情感回忆和精神归属,想要顺势而作保留场所精神就变成了一件自然而然的事情。我们希望古树古楼与新建的邻里中心,既能共同创造一个温馨而又记忆的空间,也能成为居民与过往链接的互动纽带。
▲ 保护建筑与树木分布图
设计以层层退让的形式回应,与文保建筑形成多维度的对话空间:首层空间中文保广场将成为漫游路径的重要节点,新旧建筑围合出一个向心空间,成为社区居民的社交聚集场所,促进邻里交流,以此连接人与场地,同时连接人与人之间的关系。
层层跌落的露台可以从高处观望门楼、在新旧交融的时空中休憩驻足。
▲ 修复后的中山公园门楼
▲ 与门楼对话的开放平台 ©张灏
丨 街区生活内容落位 丨
会所展厅、景观咖啡、生鲜超市等参与度高的功能被设置在建筑的底层,以院落街区的形式面向公众开放,并提供极具活力的公共界面。使用频率较低的社区功能垂直叠加在建筑二层公共露台之上,至此首二层都形成了大量的灰空间可供公共交流,也由此构成了一个开放的立体社区。最后,私密的会所功能布置于最顶部,眺望北侧自然景观。
▲ 方案生成
▲ 功能体块垂直叠加
▲ 首层会所展厅
▲ 首层会所展厅室内 ©WSD
▲ 公共开放的二层露台
▲ 四楼会所空间 ©WSD
03 丨 设计与建造的模数:既是手段也是目的
以最简洁的空间和体验,呈现具有场地特质的建筑。我们深知越简单的设计的背后,反而越需要更多的研究和协调。建筑从结构、到空间、再至幕墙,均以统一的基本模数控制,在对建造高度可控的同时,由内而外地表达精准和秩序的设计目的。
▲ 主立面用仿石材铝板与玻璃体块形成了重与轻、实与透之间的强烈对比
材料选择上主要选用浅灰色铝板与高反玻璃,顶部体块采用仿石材铝板替代石材,减少材料分缝。同时,三、四层采用低调的暗纹彩釉,使得建筑体块呈现半透明、透明的多种状态。天花完成面则采用低饱和度的暖色材料予以点缀,营造出简洁的、有标识度的美学特征。
▲ 建筑细部
▲ 建筑细部
▲ 建筑细部
▲ 施工过程
结语
此次设计是探寻未来社区生活方式的一次尝试,作为未来区域生活的重要节点,希望落成后的邻里中心能以开放、绿色的在地个性,为社区带来内外兼修的生活品质提升。同时这也是以建筑回应城市新旧交融对话的一次探索,我们相信好的设计不仅仅是面对场地时的激情创作,更是基于既有客观条件下的理性思考。在与业主、多方专业团队共同的价值框架内,用严谨科学的方法控制每一个环节,共同营造一系列动人的社区生活场景。
项目图纸
△总平面图
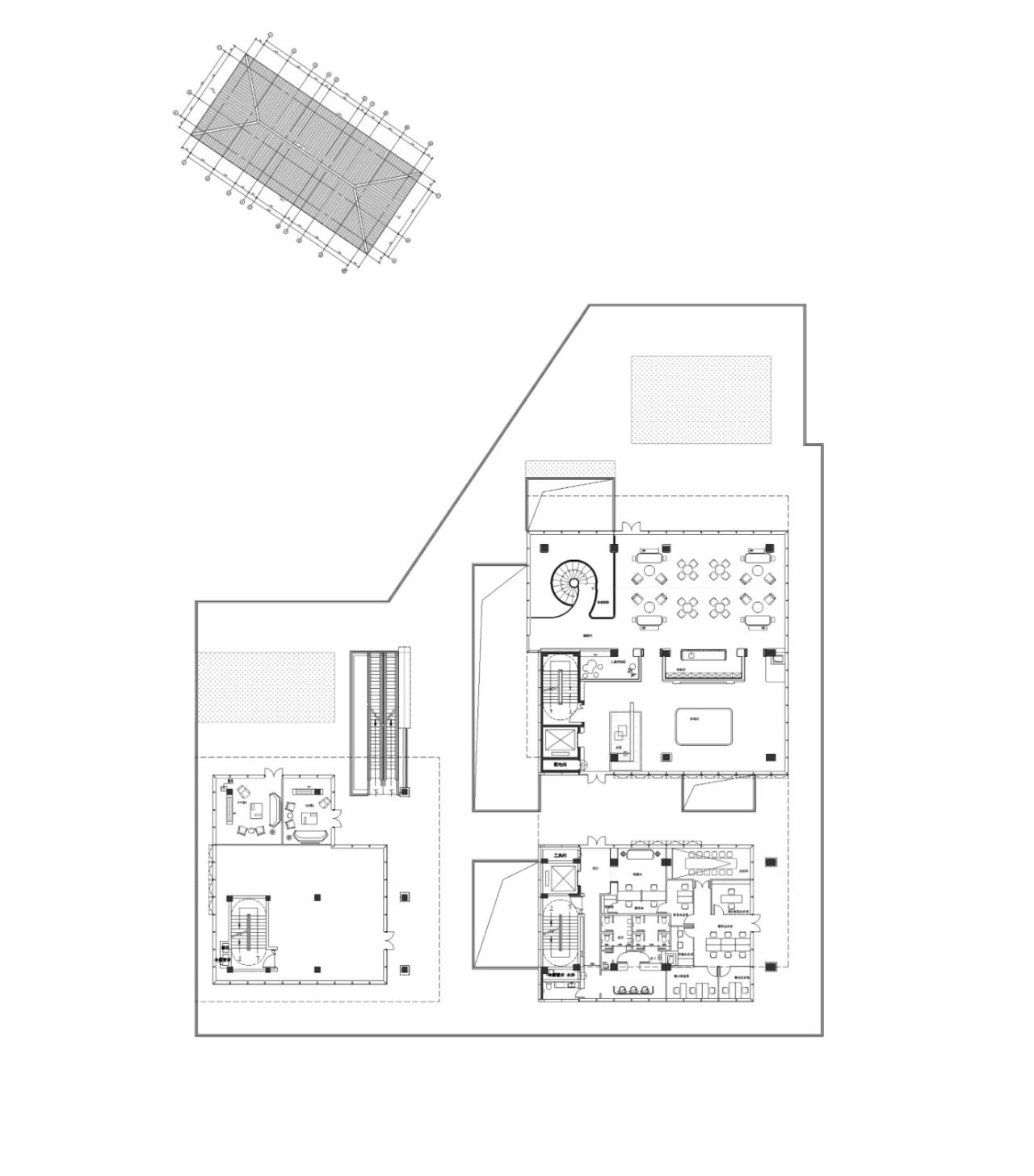
△二层平面图
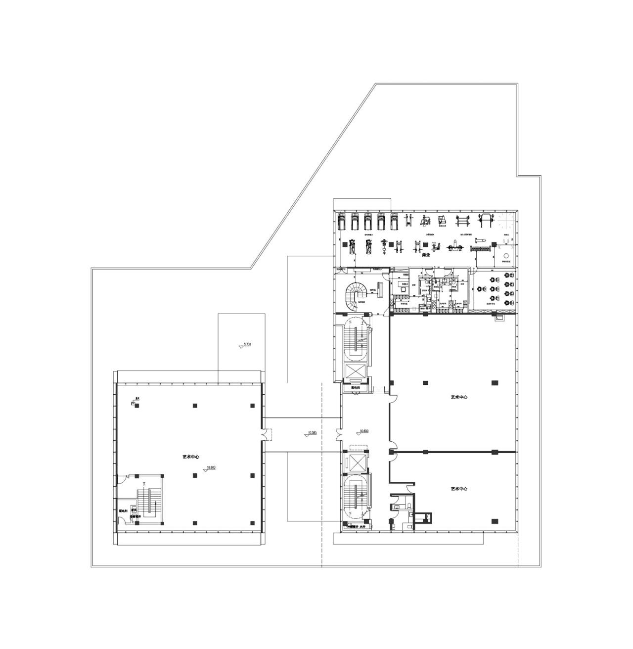
△三层平面图
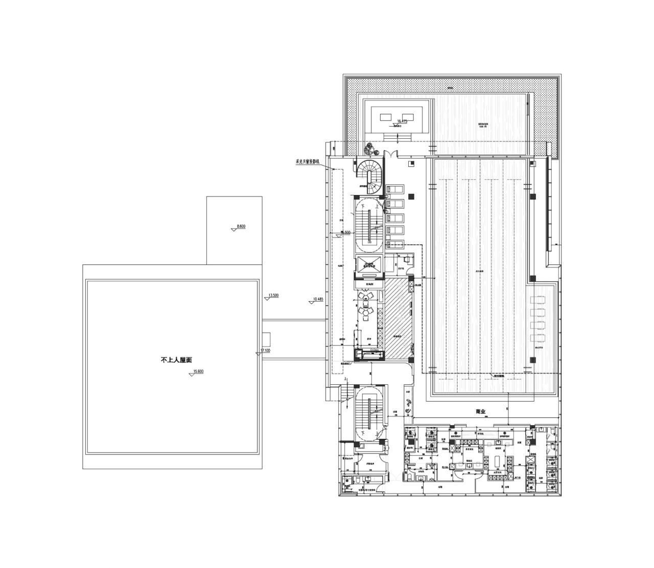
△四层平面图
△剖立面图
△剖立面图
项目信息
项目名称:仁恒·滨海湾邻里中心
项目类型:建筑
项目具体地址:香洲粤港澳大湾区·珠海唐家湾·深珠合作示范区旁
占地面积:6267平方米
建筑面积:5014平方米
设计时间:2019年3月
完成时间:2020年9月
设计方:PTA上海柏涛·9 STUDIO
主创建筑师:邵鑫,冯波,阮维庆
设计团队:马媛媛,白东宇,李建坤,王誉晓,吴煜,严语天,于游先,郑夏怡
业主:仁恒置地珠海公司
景观设计:承迹景观
室内设计:WSD世尊设计
施工图:广东都市建筑规划设计有限公司
幕墙顾问:TAM泰幕
泛光设计:AET以太照明
摄影师:Moment | 远洋 张雪晨
主要材料:浅灰色铝板、高反玻璃、仿石材铝板、暗纹彩釉玻璃

BIM建筑网







































