©存在建筑-建筑摄影
乡村究竟是什么样子,乡村自己又想成为什么样子?
当现代建筑走进传统乡村,不同寻常的形式带来关联与冲突,质朴的体量和空间传承不变的气质。
项目背景
项目位于重庆市江津区慈云镇,这里是典型的西南地区丘陵地带农村,距离江小白酒厂约 15 分钟车程,是江小白酒业生产的原材料种植基地,也是酒业集团形成一二三产联动的重要节点。
项目理念
“释放天性的乡村俱乐部”
由于品牌自身的独特属性,江小白的受众多为都市中的时尚人群,如同整个社会一样,他们的兴趣也正在逐步转向乡村。用现代的设计手法在老环境中创造新氛围,打造即不同于都市又区别与传统农家乐的当代乡村体验,探索当代乡村建设发展的全新可能性。鼓励人们来到乡村不仅仅是换个外部环境,也要换个内在心境,将身心同步回归自然,释放天性,感受快乐。
©未见筑设计事务所,武月
总体布局
“跳岛村落”
项目现场有一条小溪汇入一条主河流,周边地势相对平缓,若干个半岛随水系蜿蜒错落有致,规划选择将建筑及功能体验区分布在这些半岛上,采用“跳岛”的方式营造体验动线,既能丰富不同场景之间切换的独特体验感,又能满足各个不同功能板块之间相对的独立性和纯粹性。
©江小白
总平面图 ©未见筑
©未见筑设计事务所
”依托场地关系的空间原型“
没有过多的去考虑“乡村”应该长什么样子,而是关注于什么样的空间形态是最适合这几个半岛的场地关系,采用最纯粹的几何空间语言去呼应自然的环境,创造令人感到舒适的对比冲突和丰富变化。
空间形态思考草图 ©未见筑
©存在建筑-建筑摄影
©言隅建筑空间摄影
分项设计
入口停车场
©言隅建筑空间摄影
不规则的彩色混凝土停车位营造出自然放松的状态,散落的小乔木和种满风车茉莉的白色花架丰富了垂直空间的内容,营造到达后的花香气息,又在一定程度上提供夏日里的遮阳。
入口停车场 | 平面图 ©未见筑
入口卫生间
©言隅建筑空间摄影
入口卫生间整体呈一个朴素的长方体,位于停车场靠近入口的角落,与混凝土片墙形成一个具有引导性的入口通道空间。正面是一台由重庆青年建筑师群体集体涂鸦完成的废弃拖拉机,用艺术与乡村的亲密结合欢迎人们的到来。
入口卫生间 | 空间形态分析 ©未见筑
©言隅建筑空间摄影
打破传统卫生间的空间模式,打造一个由若干单体组合成的半室外空间集群,每一个位置都是一个独立小单间,公共区域的天窗引入阳光和雨水,滋养内部的植物生长,单间内的天窗不设置玻璃,出门即是野外,营造返璞归真的独特体验。
入口卫生间 | 轴侧图 ©未见筑
入口卫生间 | 平面图 ©未见筑
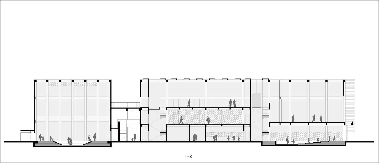
大地美术馆
©存在建筑-建筑摄影
大地美术馆 | 平面图 ©未见筑
1-1
1-2
1-3
大地美术馆 | 1-1 北立面图及短向剖面图,1-2 西立面图,1-3长向剖面图 ©未见筑
“高粱地里的水泥粮仓”
这是一座高粱地里水平稳重的清水混凝土坡屋顶建筑,用现代的手法诠释质朴的精神,尺度上的些许放大和形式上的些许传承,共同作用于乡村内在气质而非外在形式的延续。
方案草图 ©未见筑
©言隅建筑空间摄影
建筑体量演变©未见筑
©言隅建筑空间摄影
建筑形态思考 | 概念设计草图 ©未见筑
©存在建筑-建筑摄影
“ 高粱同心圆 ”
©言隅建筑空间摄影
平面草图©未见筑
关系衍变过程©未见筑
©言隅建筑空间摄影
线性的空间形态顺应长条状半岛的环境关系,兼顾农庄研究人员的日常使用与参观人群通行的作用,在半岛轴线的基础之上顺时针旋转 15 度,既使建筑山墙面正对车行入口,创造更好的展示效果,又让建筑出口避开现有步行桥面对回水塆,创造一个亲水平台作为节奏变化的空间节点。
©存在建筑-建筑摄影
亲水平台剖面图©未见筑
“ 敬畏农业 ”
©存在建筑-建筑摄影
穿过弧形的混凝土墙,一个仅有 2 米高的空间界定空间的转变,用独具精神性的轴线动线和和三角形的立面去营造庄严神圣的感受。
©言隅建筑空间摄影
立面比例©未见筑
进入美术馆随之而来一个通高的空间,空间向上,肃穆的斜向线条向天空汇聚,引入阳光;空间向下,圆形的下沉徐徐走入大地,用上下空与唤醒人们对农业的敬畏之心。
©存在建筑-建筑摄影
水景的剖透视图©未见筑
水景 | ©言隅建筑空间摄影
“ 空间组织与场所营造 ”
在一个完整的条状空间内通过条石幕墙,阳台,天窗,露台,混凝土幕墙等空间形式语言去营造丰富的室内外变化,让人们来到乡村,即便是走入了建筑内部也会不停的以不同方式与外部环境发生关系。
建筑东西向为长边主采光面,东侧日照时间相对较短,在一层布置展览空间,二层布置阳台,三层布置会议空间;西侧日照时间相对较长,在一层布置走廊,并用条石幕墙丰富光影效果,在二层开小窗,三层布置走廊。建筑南侧二层为混凝土幕墙,外部西南侧种植蓝花楹,在夏日遮挡一定的西晒,帮助控制室内温度,在冬日引入阳光,营造丰富的光影效果。
©言隅建筑空间摄影
©建筑师-何飙
©言隅建筑空间摄影
©存在建筑-建筑摄影
大地美术馆通风分析图©未见筑
大地美术馆材料与建造
木纹清水混凝土兼具自然的纹理和肃穆的现代性,其一次浇筑不可修改的特性具有极大的施工挑战,但对于希望用现代手法来传承质朴气息的大地美术馆来说无疑是最契合的选择,经过大量的打样最终呈现出了理想中出现代质朴的效果。
©未见筑
木纹清水混凝土打样过程©未见筑
“ 混凝土龙出水 ”
现场预制的成品混凝土龙出水让排水问题的解决方式回归自然,雨水经过坡屋顶自然流淌到排水天沟,再由龙出水流下到建筑周围的水渠,不刻意掩饰雨水与建筑原有的关系,让其自然呈现。
©存在建筑-建筑摄影
©言隅建筑空间摄影
BIM正向设计
从概念到现场管理全程使用BIM技术完成设计,在前期为频繁的方案修改出图提供了高效便利的工作流程方法,在后期极大程度的避免了各专业之间的碰撞问题与现场的施工误差。
BIM应用©未见筑
田野商店
©言隅建筑空间摄影
农副产品小超市与文创小商店作为配套的商业功能与美术馆主体建筑直接分离,在高粱地里以两个独立圆形平面的点状空间呈现,既从建筑体量上明确功能属性的不同,又有意识的将人们的行为活动从建筑内部拉到高粱地中,室内外频繁切换,回归自然。两个商店一个内部抬高 60 公分,营造轻松自由的平面,另一个抬高后又降低,营造沉入大地的氛围。
田野商店草图©未见筑
建筑周边环绕的木平台步道提供人们行走和坐在田间的可能性,平台离地 60 公分让人们坐下的时候腿脚刚好悬空摆动,营造轻松舒适的乡村体验。
农副产品小超市平面图及剖面图 ©未见筑
文创产品商店平面图及剖面图 ©未见筑
蜗牛菜园
©存在建筑-建筑摄影
位于紧邻美术馆的半岛端头,蜗牛菜园是一个为蔬菜花果设计的专属空间,砖砌固定花台用于种菜,周边一圈种满不同品种的花果树,在不同季节呈现不同的自然风貌。菜园整体平面布置为一个由中心向外蜿蜒延伸的螺旋线,既形似蜗牛壳的螺旋图案,又营造如蜗牛般缓慢行走的游览体验,靠近河边的位置穿过草丛延伸出五个神似蜗牛触须的亲水平台提供驻足停留的空间,用空间形式语言引导人们放慢节奏,耐心品味大自然的美好。
蜗牛菜园平面图©未见筑
菜园地面采用荧光石铺装,每到夜深人静的时候,地面的星空与天上的银河遥相呼应,河岸的萤火虫在身边飞来飞去,营造无比浪漫的乡村氛围,是“偷菜”与饮酒的绝佳场所。
©言隅建筑空间摄影
大地酒馆
©存在建筑-建筑摄影
“ 四向木屋 ”
大地酒馆位于蜗牛菜园后的第三个半岛,起到承上启下的作用,是人们停留聚集时间最长的空间区域。东侧为入口方向,有一座长满竹林的小山丘和几户农家,西侧三面环水,远眺丘陵农田风光,南边开阔拥有充足的阳光,北侧与美术馆和菜园遥相呼应。
©存在建筑-建筑摄影
1-1
1-2
1-3
大地酒馆 | 1-1平面图、1-2、1-3立面图 ©未见筑
体量生成gif©未见筑
建筑体量直接呼应四个方向所拥有的不同环境及视线关系,将一个十字体量空间在竖向上拆分为两个部分,底层东西向架空形成一个通透的灰空间,首层南侧体量顺河岸延伸以引入更加充足的阳光。一横一竖的空间组织用一种打破河流围合感的方式呼应了场地的空间关系,建筑与河流之间的灰空间变化丰富,让人们与河的关系也随之不停的变换。
©存在建筑-建筑摄影
首层南侧空间具有较好的采光,为咖啡下午茶空间,北侧采光较少,为厨房及酒吧空间,二层东侧是满足项目运营的用餐大厅,西侧拥有下午较好的光影和风景设置为用餐包房。各功能板块之间相对独立又通过架空层及楼梯通道进行有机串联,上下层空间方向的变化在一个小尺度空间中营造出既丰富又清晰的体验感。
©存在建筑-建筑摄影
“村口”大树
大地酒馆东北方向既有机动车入口,又有从大地美术馆和蜗牛菜园方向来的步行桥,一颗高大的柿子树以优雅的姿态迎接人们的到来,树下的木质平台提供了人们在“村口”树下的各种行为活动可能性,迎接送别、休息交流。
©言隅建筑空间摄影
©存在建筑-建筑摄影
“底层架空与下沉花园”
建筑东西向下方为一个整体架空的通廊,串联入口,咖啡厅,酒吧,楼梯以及半岛尽端的下沉庭院。靠近下沉庭院的部分两组 V 字柱轻松的界定了两桌用餐区域,结合架空层带来良好的通风和遮阳营造十分舒适的用餐氛围。下沉庭院在半岛尽端,三面环水,夏日可以烧烤篝火跳舞歌唱,冬日可以烤羊煮酒,还原乡间原本应有的自然轻松和生活氛围。
©存在建筑-建筑摄影
©江小白
“十字”中心
两个体量在平面上重叠的部分是上下联通的交通空间,上方的走廊顺应下方建筑的方向向南北向延伸,正中心上方是一个圆形天井,引入蓝天、阳光和雨水。
©存在建筑-建筑摄影
©言隅建筑空间摄影
“大地酒馆材料及建造”
材料的使用上,相对于大地美术馆“质朴“与”肃穆“的木纹清水混凝土运用,大地酒馆则更多将主题从敬畏农业转向亲近农业,”一座乡间的木制酒肆馆驿“是它的定调。
而在木材的选择上采用了上下两层材料分色的处理手法,一楼的木屋采用浅色灰化松木,使体量多变的一层建筑更加轻盈统一。二楼的架空体量则采用深灰色木材,形成乡间一道漂浮的黑色剪影。木饰面幕墙本身则采用节奏多变的凹凸面板与竖向肋板的构造,强化木材质感的同时通过细部尺度消减了整体体量对于乡野的压迫感。
©存在建筑-建筑摄影
©言隅建筑空间摄影
板岩叠放为下沉庭院的座位,野草生长其中形成十分生态自然的状态。
©未见筑
小白花房
©存在建筑-建筑摄影
位于大地酒馆南侧的第四个半岛,选择了最简单的圆点作为空间原型,将一个曲面的玻璃房子摆在花境中央,内外的植物遥相呼应,曲面的超白玻反射出天空和植物的变化,具有丰富的层次和变化。
©存在建筑-建筑摄影
建筑整体抬高 1 米,在底部解决空调外机的放置,使得建筑外立面是一个完整的曲面玻璃而不被打断,同时也避免植物的遮挡,在半岛上形成一个显眼的视觉焦点。顶部用金属板进行遮阳处理,结合内部天井的拔风作用应对重庆夏日的极热天气。
©存在建筑-建筑摄影
小白花房平面图©未见筑
乡村球场
在运动场设计中以打破常规的空间形态去引导探索不一样的运动体验,正方形的足球场可以让足球运动更加偏重左右转移,也可以设置 4 个球门进行游戏;圆形的篮球场可以满足成年人和儿童不同身高的篮球架需求,也可以设置 4 个篮筐的游戏规则。
©言隅建筑空间摄影
球场卫生间
©存在建筑-建筑摄影
运动场紧邻花房,无论动静都可以在农庄找到属于自己的乐趣,配套的卫生间设有露天淋浴的小隔间,在一场酣畅淋漓的运动之后可以继续释放天性。
球场卫生间平面图 ©未见筑
球场卫生间 轴侧图 © 未见筑
球场卫生间 剖面分析图 © 未见筑
植物地图
©未见筑设计事务所,武月
项目信息
项目名称:江小白的一亩三分地
项目地点:重庆市江津区白沙镇
业主:重庆江小白农庄有限公司
设计:未见筑设计事务所
设计内容:策划咨询,总体规划,建筑设计,景观设计
规划面积:1000mu
建筑面积:5000sqm
主持建筑师:李未韬,李博
设计团队:丁明新,易思琦,张鼎,邓林,杨梁玲,吕品,张智睿,陈泓宇,陈煜娴,谢雨晴,舒红桥,王玉莲
项目策划:陶石泉,唐鹏飞,姜楠,周俊峰,文颖
规划及策划顾问:方瑜,陈元媛
建筑及景观施工图设计:重庆都兴建筑设计有限责任公司
施工图负责人:雍容,丁朗杰
建筑及景观灯光设计:袁有无
景观设计顾问:李婉婷
植物设计:丁明新,蒋瑶,陈超野,刘秀
BIM 设备专业顾问:何振宇,张天琴
室内设计:深圳里与外文化创意有限公司
主持室内设计师:刘富荣
项目管理:重庆江小白农庄有限公司
现场负责人:孙开江
项目施工:重庆博达建设集团股份有限公司
项目经理:李成才
木饰面供应商:上海臻藏装饰有限公司
清水混凝土技术顾问:逸成工程 金晨
项目监理:重庆兴达建设监理有限公司
摄影:存在建筑-建筑摄影,言隅建筑空间摄影,未见筑设计事务所,建筑师何飙
海报:未见筑设计事务所,武月

BIM建筑网


























































































