MVRDV与天津规划设计院合作设计的天津滨海图书馆将成为城市文化中心区的重要一员。坐落于公园与文化新区之间的建筑不仅将成为人头攒动的教育中心,也将成为自然与城市间的桥梁。

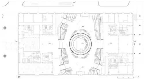
一个椭圆形的开口直穿建筑如同一只巨大的眼睛凝视着外界,球形的礼堂占据了宽阔大厅的中央位置,安静的室内空间和建筑外绿意葱葱的公园倒映在镜面上,创造出丰富的空间层次。阶梯式的书架呼应着球体空间,重重抬升,带来如同起伏山地般延绵的景观效果。而这层层叠叠的书架形式延续到立面上,成为了过滤刺眼阳光的百叶。

以一个镜面报告厅为中心的天津滨海图书馆。“这个巨大的眼睛是图书馆的核心空间。巨大的内部空间中林立的书架不仅成为了万千本书籍的安放场所,也塑造出休息、阅读、放松、攀爬的众多空间和通往别处的路径,这是一个生机勃勃的公共空间。

“MVRDV的联合创始人Winy Maas说到:“空间中央的镜面球体会场上倒映着周遭的环境,成为了一个可以360度纵观全景的窗口;这是一个真正的让人反思、沉思的空间。”

极具未来感的波纹状阶梯在顶部渐渐收拢,形成了一个如同教堂拱顶般的圆顶空间,贯穿上下,连接各层。在未来,与其相邻的四座公共建筑也将相继落成,来自Bernard Tschumi建筑事务所、Bing Thom建筑事务所、华汇设计和GMP的设计将让这里成为让人瞩目的“文化走廊”。

建筑的地上五层空间内分布着各式各样的教育设施,而后勤服务场所、图书储存室和档案室则位于地下一层。儿童和老年人阅读区设在了便于到达的地面一层,主入口连接着通往各个内部区域的路径,球形礼堂占据了中央位置,而阶梯状书架层层抬升,引导着人们前进。数个大小不一、藏书丰富的阅览室和休息区域散落在二层、三层各处,而最高的两层空间内,则是会议室、办公室、电脑室和音像室。

占地120000平方米,由GMP设计的滨海文化中心区旨在加强滨海新区的独特属性,而天津图书馆正是其中不可或缺的一员。

落成后的建筑将成为中心商务区,老城区,居住区,商业区和行政区域的交汇点,补足各区域现今所缺失的功能。建筑的整体体量由总平面而定,而“眼睛”及环绕其而建的内部空间将建筑转化为了半开放的公共空间,如同一个反向标示,成为了建筑的中心点和聚焦点。


本项目将成为MVRDV在天津落成的第二个项目。已于2009年完工的恬静经济技术开发区则包括了280,000平方米的高层和低层住宅和零售综合体。


BIM建筑网




