郑州市第130中学以“开放型空间”作为切入点,通过“组团院落”和 “二层活力平台”空间的打造来营造集约化校园;在遵循整体建筑风格的前提下,实现传统文化的当代表达;把细部设计作为空间设计的重要组成部分,高品质地呈现建筑的细部之美。
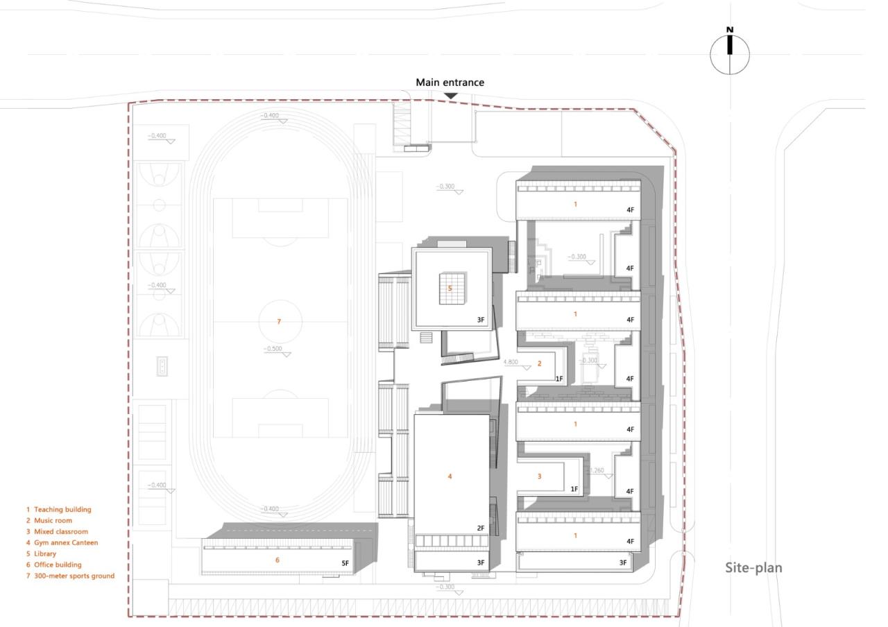
郑州市第130中学是一所30班的初级中学, 基地位于郑州航空港经济综合实验区河东第八安置区北部, 第八安置区是现代产业服务中心,未来将为社区提供安置房和配套设施。基地东、北侧为城市次干道,西侧邻近规划景观河道,南侧为规划商业用地。
设计主要实现了以下三点:1,建筑涂料饰面采用“包豪斯灰”,局部点缀格栅百叶。由于造价的严格控制,百叶的材料为空调室外机百叶的再循环利用,通过有节奏韵律的错动和变化彰显一定的细部品质。
2,相比于传统的学校,功能更集约化,空间感受更公建化,有许多建筑灰空间来提供交流场所,并且引入了隐性课堂和扩大的共享空间。二层的室外活动平台把教学楼、体育馆、食堂进行串联形成学生自己的活动中心,通过主体连廊的架空以及建筑体量的穿插、进退,在提供教学场所的同时,营造丰富的室内外活动场地,引导学校教育模式的革新。
在四栋教学楼之间,参照郑州传统的“学堂书院”的空间布局,重塑清新淡雅的书香氛围。
合班教室的置入激活原本相对消极的内院空间,室外小剧场,透明广播站,室外种植区等复合功能的叠加赋予了组团院落更多活动空间的可能性,从而达到了1+1>2的效果。
3,屋顶采用了单坡顶的形式,与整体风格保持一致;与此同时,我们遵循“形式追随功能”的原则,把坡屋顶下方的空间用作空调室外机组的存放空间,在传统坡顶的造型下,实现功能的“微创新”。
项目信息
△功能分区图
△总平面图
△办公室平面图
△办公室平面图
△办公室剖面图
△办公室立面图
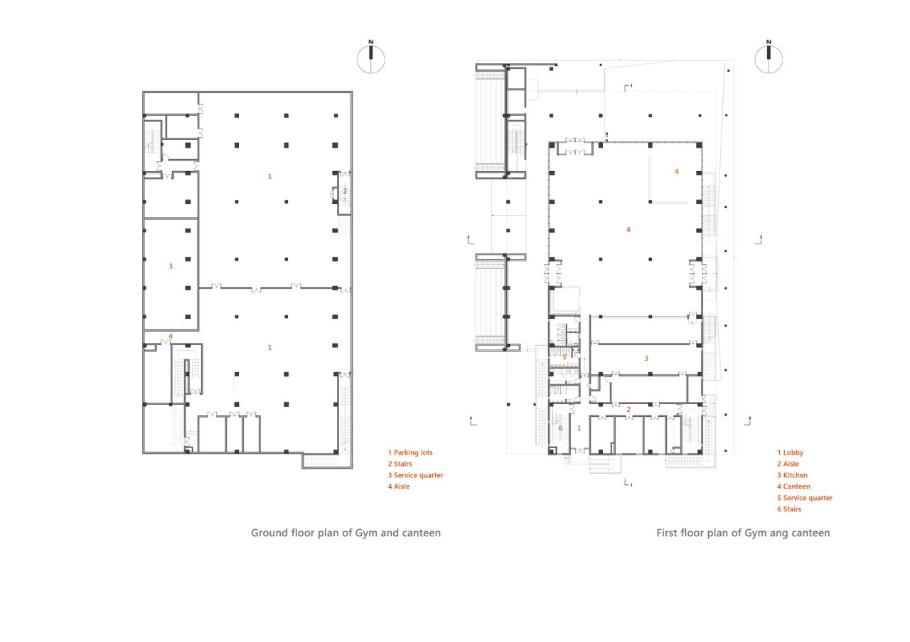
△体育场和食堂平面图
△体育场和食堂平面图
△体育场和食堂剖面图
△体育场和食堂立面图
△图书馆平面图
△图书馆剖面图
△图书馆立面图
△教学楼一层平面图
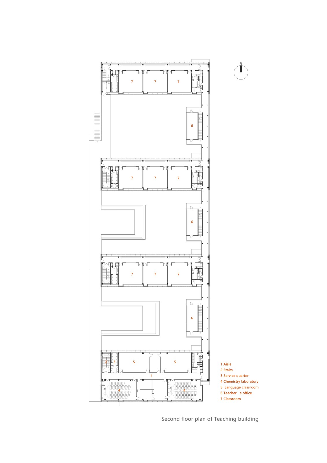
△教学楼二层平面图
△教学楼三层平面图
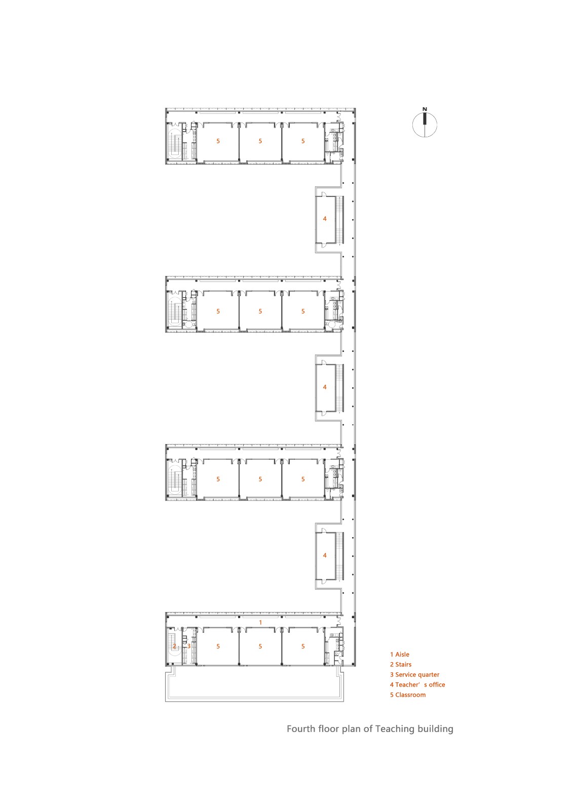
△教学楼四层平面图
△教学楼立面图
△教学楼立面图
△教学楼剖面图
△细部剖面图
△分析图
△爆炸图
△分析图
项目信息
建筑师:上海联创设计集团
面积 :22164m²
项目年份 :2019
摄影师 :MLEE
主创建筑师 :钱强、辜克威、陶方圆、蔡哲理、吴姗姗、杨佳蓉
设计团队 :UDG 中国一室
委托方 :郑州航空港区航程置业有限公司
机电设计 :UDG electrical and mechanical department I
结构设计 :UDG 结构一部
景观设计 :UDG 景观二部
施工方 :郑州一建集团有限公司
地点 :河南,郑州


BIM建筑网
























































