四川宜宾安石村,一个普通乡村,背靠碾盘山。村落阡陌相通,田塘错落,屋树交织,是典型的川南聚落。乡村书局位于安石村中心位置,三条道路交汇之处,场地与道路有4m的高差。建筑面对稻鱼共生区,建筑背后为开阔缓坡。
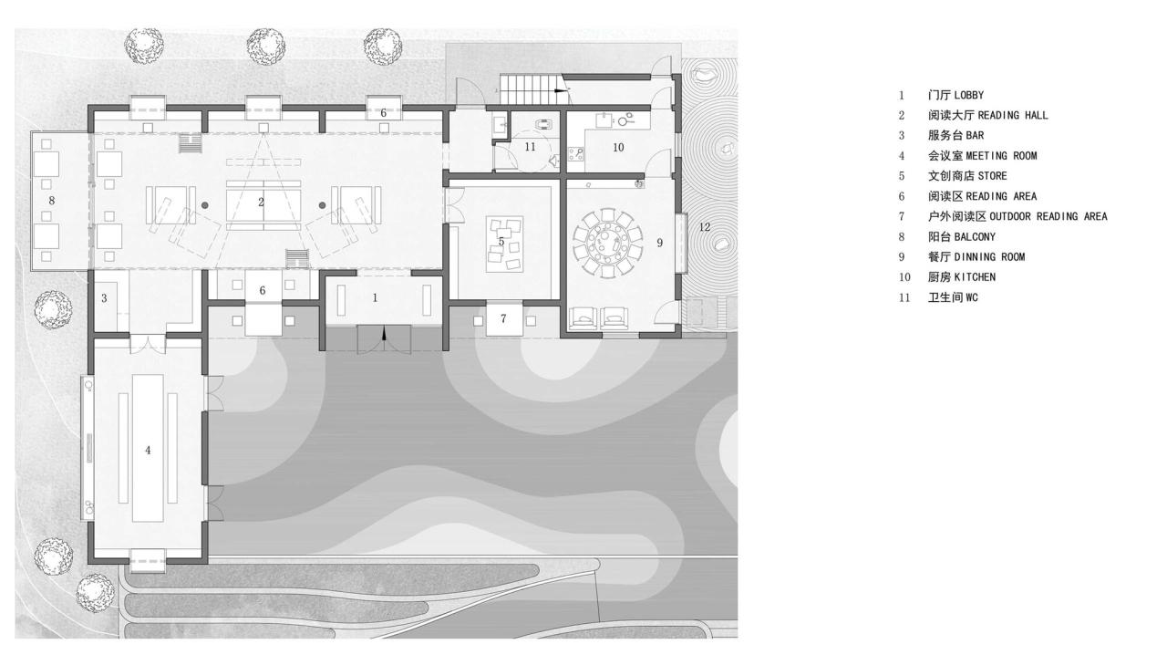
原有建筑整体呈现L形布局,由两层主楼和一层辅楼组成:主楼为生活区,辅楼为厨房及储藏功能。建筑为砖混结构,内部由承重墙分割为独立空间,南侧二层为走廊。在建筑的外形、轮廓以及高度不做大的变化的限制下,如何将小尺度的日常生活的居住空间转化成为公共开放的阅读空间是设计过程中需要解决的最主要问题。
设计中,我们将建筑靠近景观的主楼西侧内部一二层打通,通过构造柱及圈梁等结构加固方式达到整体结构的稳定性,再将两棵“大树”植入其中,支撑新的屋顶的同时形成一个独特的阅读空间。“大树”结构借鉴了何陋轩的处理方式:空间上通过并置的两棵树形结构,统领了内部空间;节点上通过黑色钢构件,强调了木构件之间的连接效果;柱子落地方式上,延续水磨石地面,以圆润的方式适当抬高形成柱础,达到对木柱的保护效果;灯光通过与钢构件整体设计的方式,照亮屋架及屋顶的同时达到隐藏的效果。内部的木构架支撑了整个屋面,与下部结构适当脱开,形成漂浮感。内部细腻的木结构体系通过玻璃内透出来,与外立面粗粝的砖石材质形成对比。
一条平缓的“之”形坡道联系道路和建筑前院,以丰富有趣的游览方式将人引导进建筑。坡道之间穿插标高的景观“梯田”, 将建筑与四周农田融为一体。材料上则采用了当地的红砂岩以及当地的工人和工艺。
考虑到日照对阅读的影响,在建筑南北两侧设计了不同的阅览空间类型:建筑南侧,为避免阳光直射,座位采用侧向窗户的排布方式面对而坐;建筑北侧,无阳光直射,景观视野良好,将座椅正对窗户布置,阅读之余可观赏山坡景色。建筑西侧直面山景,我们采用了大玻璃面将景观引入室内,外立面设置的电动遮阳百叶,打开和关闭时候以不同的表情面对环境的变化。原有建筑南侧一层部分,改造为会议室,上部为木屋架,西侧横向的大玻璃窗将碾盘山景色一览无余的引入到室内。
”教育就是一棵树摇动一棵树,一朵云推动一朵云,一个灵魂唤醒另一个灵魂”。那么希望在这个公益性质的图书馆里,在两颗大树之下,让村里更多的孩子在这里阅读、体验和交流,融入到村民日常的生活汇中去。
项目图纸
△模型图
△模型图
△总平面图
△一层平面图
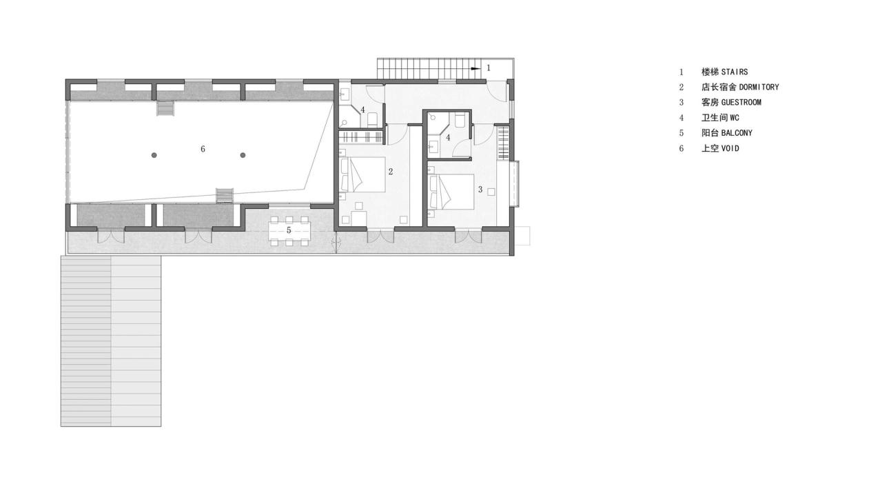
△二层平面图
△剖面图
△分析图
△分析图
项目信息
建筑师:FMD
面积 :240m²
项目年份:2021
摄影师:Qingshan Wu
厂家:方圆智能装配
主创建筑师:王坚锋
设计团队:王坚锋、Nico Willy Leferink、杨艺、王柳、马亦婷、王荣
结构设计:信瑞斌
委托方:宜宾翠屏农业发展投资有限公司
施工方:宜宾三鼎建设工程有限责任公司
施工图设计:智诚建科设计有限公司
灯光设计:麓米照明
景观设计:锋茂建筑
地点:四川,宜宾

BIM建筑网






























