来源:施加咨社
像这种坡屋顶我们可以观察到,它的屋顶轮廓都是带有坡度的,那我可以通过添加定义坡度的方式来绘制出该屋顶。
点击建筑选项卡中的屋顶按钮,选择迹线屋顶。
选择使用拾取线工具,在选项栏中将偏移值修改为500。
拾取墙边缘将屋顶迹线绘制出来。
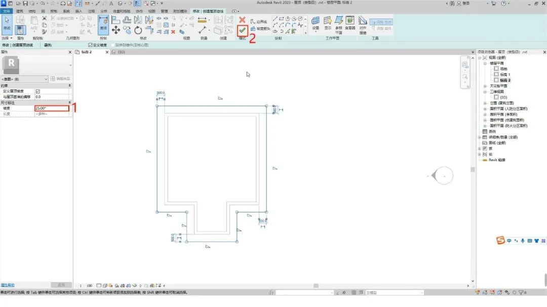
选中所有线,添加坡度值为25°,然后再点击完成按钮,
切换到三维视图观察一下。完成
微信公众号:xuebim
关注建筑行业BIM发展、研究建筑新技术,汇集建筑前沿信息!
← 微信扫一扫,关注我们+

BIM建筑网








