语境这座校园位于北京东四环外一处大规模化工厂旧址上,现在这里是一片发展建设之中的城市社区,是数以万计市民的新居所。在此设计一座72班十二年一贯制基础教育校园,我们希望它能以其特有的样态,一方面回应教育变革提出的全新诉求,可以传递温度和激励学习,另一方面对周边大量同质化住宅带来的单调城市节奏进行一种温和对峙与积极调剂。
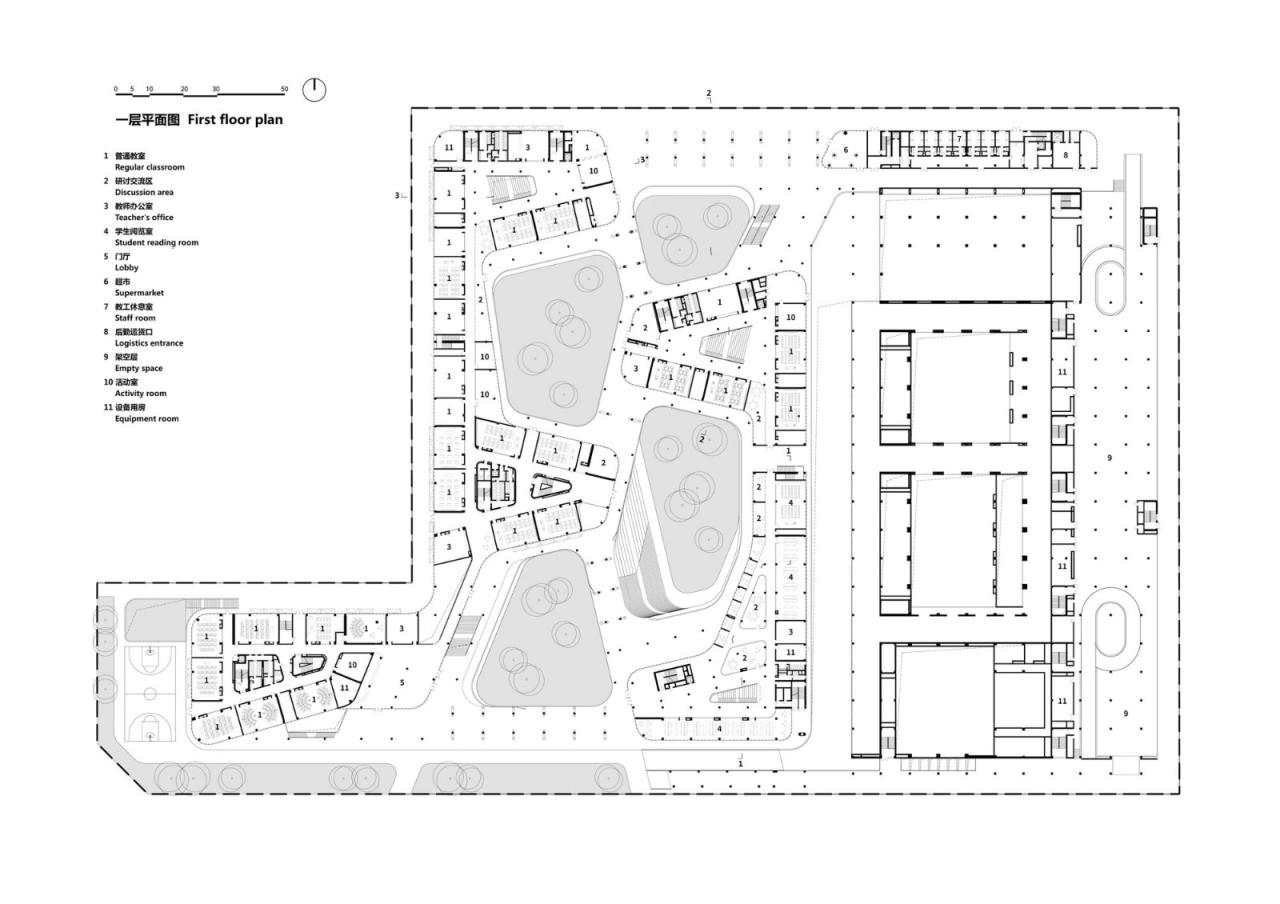
单元基础教学单元采用组团式布局,营造学习社区,给人以家的亲切感,邻里的共生感,并促进交流和共享。
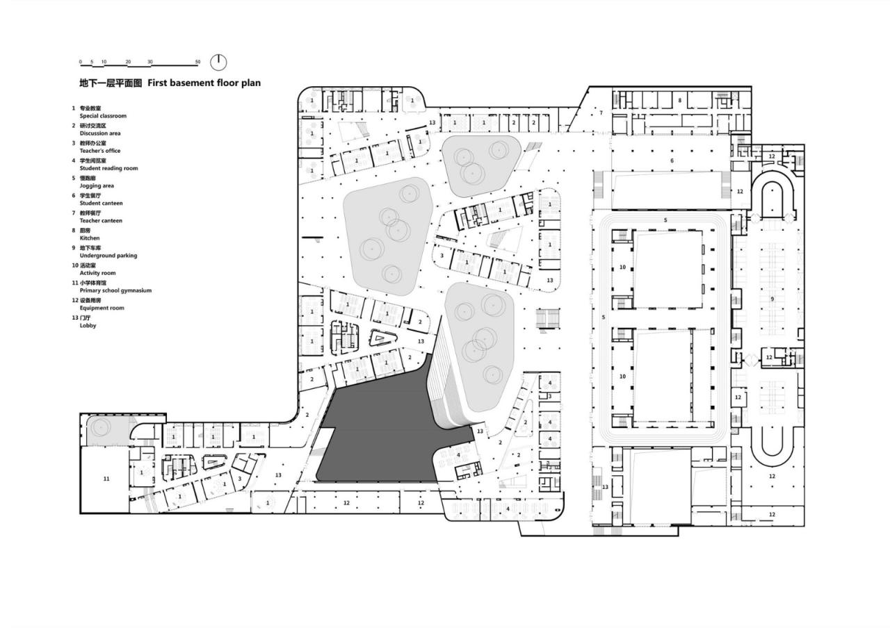
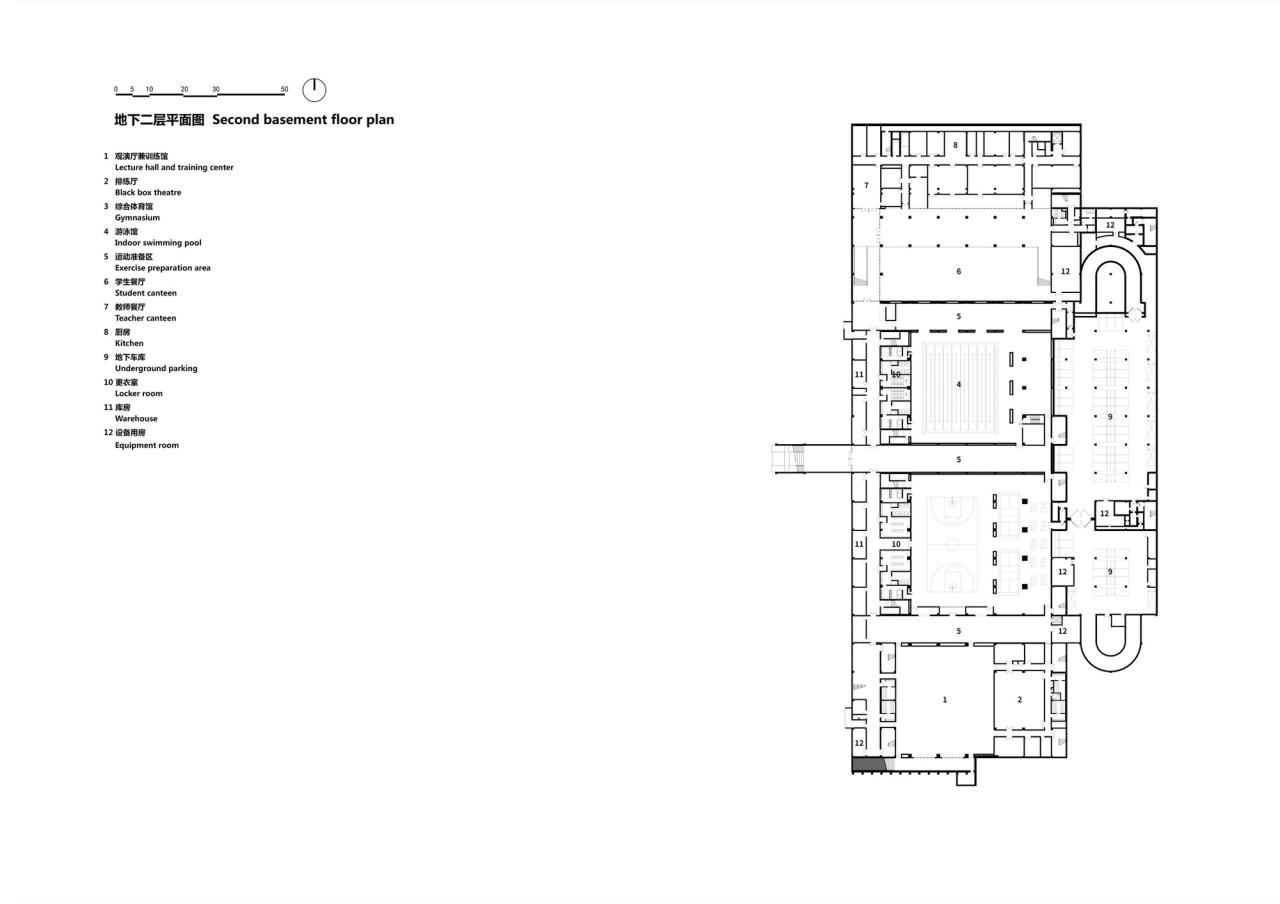
叠合在用地大小、日照条件的共同限制下,我们把校园进行叠合布置:二至四层为基础教学单元,一层和地下一层为公共教学层(包含实验、艺术、社团等),这样既方便学生往返于不同功能之间,又可打破边界,为互动创造条件。公共教学层将公共性漫延至校园每一个角落,其屋顶平台拓展了室外活动场地,更便于高楼层学生的课间活动。
地下利用
用地内留有为清除化工厂受污染土壤而挖掘的巨大换填坑,且用地规模无法匹配周边激增的适龄受教育者的就学需求。我们于是对换填坑进行利用,将公共教学层和体育、游泳、观演、餐厨等置于地下,其中大型场馆可分时段分区域向社区开放。
庭院我们通过下沉庭院解决地下空间的采光通风和消防疏散,并借助连通、架空、造景等来消除地下空间的封闭感和压抑感,且给予不同庭院不同主题,如露天剧场、校园市集、休憩运动、流动展览等。
观点我们尝试让校园去中心化,扁平化,通过空间的透明性和流动性,来鼓励人与人之间的交流,让学习随时随地发生,并通过空间的包容性和通用性,将校园的支配权更多的还给学习者,以激发其思考和创造。我们希望这座校园可以被看作是一种态度,也是一种行动,为学习者和社区注入力量。
项目图纸
△总平面图
△地下一层平面图
△地下二层平面图
△一层平面图
△二层平面图
△三层平面图
△四层平面图
△屋顶平面图
△剖透视
△剖透视
△剖面图
△立面图
△立面图
△细部大样图
△分析图
△爆炸图
△爆炸图
△分析图
△儿童手绘图
项目信息
建筑师:北京市建筑设计研究院
面积 :96751m²
项目年份 :2021
摄影师 :Meng Zhou,Zheng Wang,Shaopeng Li
厂家 : 中煤建设(ZhongMei),富思特(FIRST),达美(D-Mei)
主创建筑师 :王小工、王铮
设计团队 :陈恺蒂、贾文若、杨凯、李少鹏、何亚琴、卢植、张丹明、高诚、杨晨、丁洋、周梦
结构设计 :杨勇、陈栋、孙珂、钱凤霞、金汉
设备设计 :吴宇红、曾若浪、吴学蕾
电气设计 :张力、陈婷
委托方 :北京市朝阳区教育委员会
施工方 :中国新兴建筑工程有限责任公司
地点 :中国,北京

BIM建筑网





















































