远洋光华城北邻城市主干道北凤道,东临城市南北交通动脉银河路,占据了城市主轴的绝佳区位。建筑面积1850㎡,项目建成时间2022年1月。
依托廊坊南龙北凤文化的地理特点,设计师将建筑形式语言和地域文脉结合,把建筑流畅的线条演绎成舞动的凤凰,建筑与历史共情,焕新城市活力。
地块的中心我们放了一个玻璃盒子,给它穿上金属的纱衣,镶嵌在其上的一轮明月瞬间倒映在水面上。
建筑表皮加入星云意向,晚上,窗孔板里透出微微的光,以象征天体运行的曲线之美。除了瞬间的诗意,还要有氛围。我们用传统建筑的意境来传达,无论是灯下望月,还是月下观景,或显或隐,各有意蕴。
建成后的体验中心不仅服务于购房客户,也是未来市民休闲活动的场所。外部空间设计上,穿过长廊,回转,进入中心广场,豁然开朗。人们的各种交流活动融入景观之中,惬意又随性。
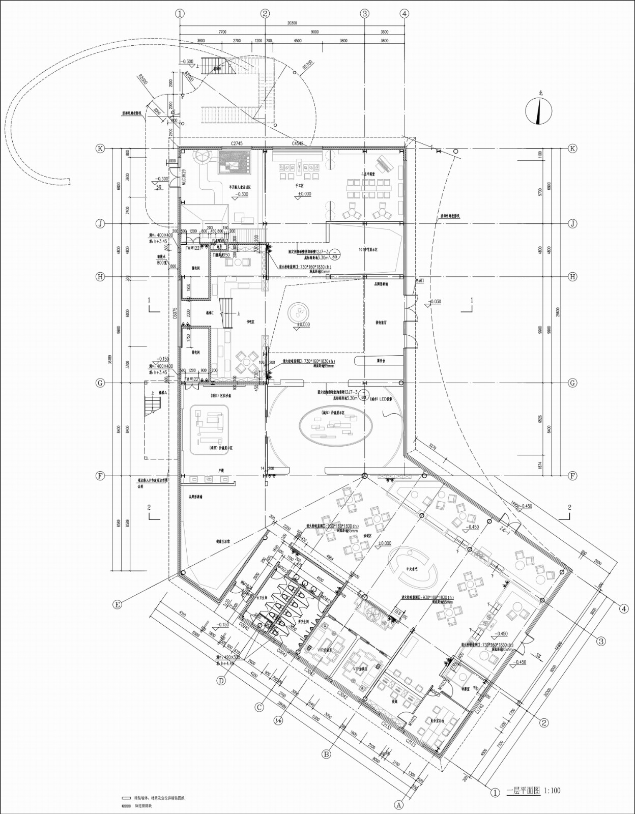
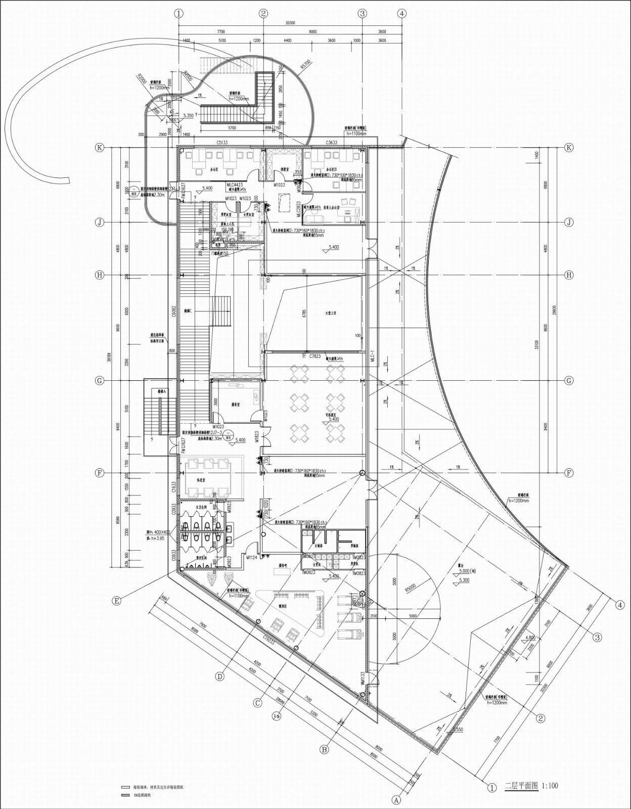
项目图纸
△一层平面图
△二层平面图
△屋顶平面图
△外廊平面图
△立面图
△立面图
△外廊立面展开图
项目信息
项目名称:远洋光华城示范区
项目类型:公共建筑
设计方:易筑设计有限公司
联系邮箱:120139210@qq.com
项目设计:建筑设计
完成年份:2022年
设计团队:王刚、孙渭杰、杨峥、李洋
项目地址:河北省廊坊市广阳区银河路
建筑面积:1850㎡
客户:廊坊市裕丰房地产开发有限公司
月亮雕塑:黄玉龙
微信公众号:xuebim
关注建筑行业BIM发展、研究建筑新技术,汇集建筑前沿信息!
← 微信扫一扫,关注我们+

BIM建筑网





















