△项目概览 ©MV建筑工作室
△建筑与绿地、溪流的关系 ©MV建 筑工作室
01环境
由泛入微感受村庄状态
大横村位于福建南平市延平区,村子东面的建溪处于武夷山崇阳溪下游,当梅雨季节发洪水时,水位线猛涨。滨河巷21号基地位于大横村中心,南面视野开阔:远处山丘平缓,中景为大片菜园与竹林,近处为草坪绿地。西边紧邻体育馆,东边是不到4米宽的巷道,场地北边连着大横村村道。
△基地位置 ©MV建筑工作室
原本老房子是青砖墙、木梁板混合的结构,年久失修,已被划为危房。场地南部是一块小菜地,西侧地面与体育馆室外地坪有着约2.5米的高差,从北面道路到南边菜地约有1.5米的高差。东北角有棵乔木。
△老房子未拆之前,河对岸视角 ©MV建筑工作室
业主的父母亲在乡镇中务农,种植蔬果,蓄养家禽,自给自足,同时还在镇集市上销售。业主三姐弟在城里工作,镇上的房子便成为一家子相聚的地方。
镇上的房子,大都是砖混结构和框架结构,外表面简单刷水泥灰,或是贴瓷砖。还有一部分是青砖墙、木楼板、小青瓦的一两层民宅,及极少部分木结构民居。钢筋水泥房,已成为近几十年来村民盖房子的首选,但稍深入了解就会发现,乡村中的这些房子,功能布局、采光通风、保温隔热、隔音防噪、应对环境等都没有太讲究。
△菜田即将丰收的时候©MV建筑工作室
02思考
由浅入深探索房子如何呈现
改建的房子如何最大限度延续业主家人们的生活习惯并提升生活空间环境,是设计的核心。采光通风、防水排水、保温隔热、隔音防噪能够从整体布局到细部都做出相应的考虑。为尽量节省造价,建造的材料和人工应大都来自于乡镇上。
△西南角鸟瞰 ©M 建筑工作室
△东北角鸟瞰 ©MV建筑工作室
△北面视角 ©MV建筑工作室
03设计
由粗到细规划布局与建构空间
呼应场域环境的高差和南面开阔的视野,房子的屋顶采用一气呵成的单坡屋面与露台,对话山丘田野。形体处理上,以一个简洁的体量搁置于架空层之上,上面作为居住用房,底层架空作停车、存放农具,同时可以应对发洪水时水位上涨的威胁。南面保留菜园,并在北面做一个入户庭院。
△建造过程 1 ©MV建筑工作室
△建造过程 2 ©MV建筑工作室
△建造过程 3 ©MV建筑工作室
北面场地高差如何处理是设计好流线的关键点。业主父亲腿脚不便,设计考虑入户庭院用坡道将一层、架空层及北边村道衔接起来,方便日常行走。
△入户前看建筑 ©MV建筑工作室
△入户庭院 ©MV建筑工作室
△与体育馆之间 ©MV建筑工作室
一层为日常使用最频繁的空间,包括厨房、餐厅、客厅以及业主父母亲的卧室。二三层为业主三姐弟及孩子们的房间。南北大窗大阳台、东西细长窗,呼应周边环境。
△北侧卧室 ©MV建筑工作室
△从过道看卧室 ©MV建筑工作室
△南侧卧室 ©Z . MINE
△坡屋面的高窗 ©Z.MINE
△大露台看山 ©Z.MINE
△小露台的视野 ©Z.MINE
04材料
延续与创造
主体结构采用钢筋混凝土框架结构。架空层采用青砖砌筑,延续原本老房子的基调。架空层以上的外饰面选用质感涂料。屋面铺设小青瓦,防水排水、保温隔热整体考虑。南面阳台与露台选用防腐木地板,为冬日里晒太阳提供更舒适的空间。
△东南角鸟瞰 ©MV建筑工作室
05回顾
未能实现的细节
原本场地北面的小乔木,拆除老房子时被砍掉略显可惜。设计中采用通透的网状护栏、暖黄色质感涂料以及暖黄色窗框,在建造过程中因材料价格上涨而不得不放弃。房子终究因人的生活才显得精彩,期待不断丰富的庭院花草、院前树木、菜园蔬果吧!
△夜幕降临时©MV建筑工作室
△夜里 ©MV建筑工作室
项目图纸
△架空层平面图
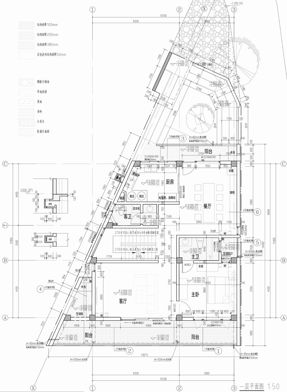
△一层平面图
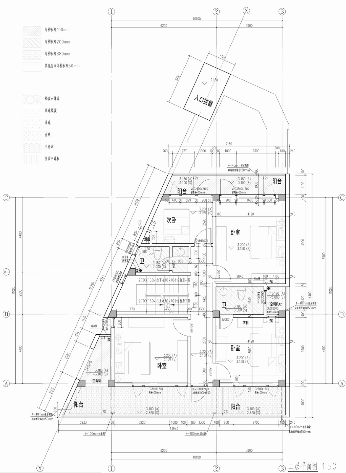
△二层平面图
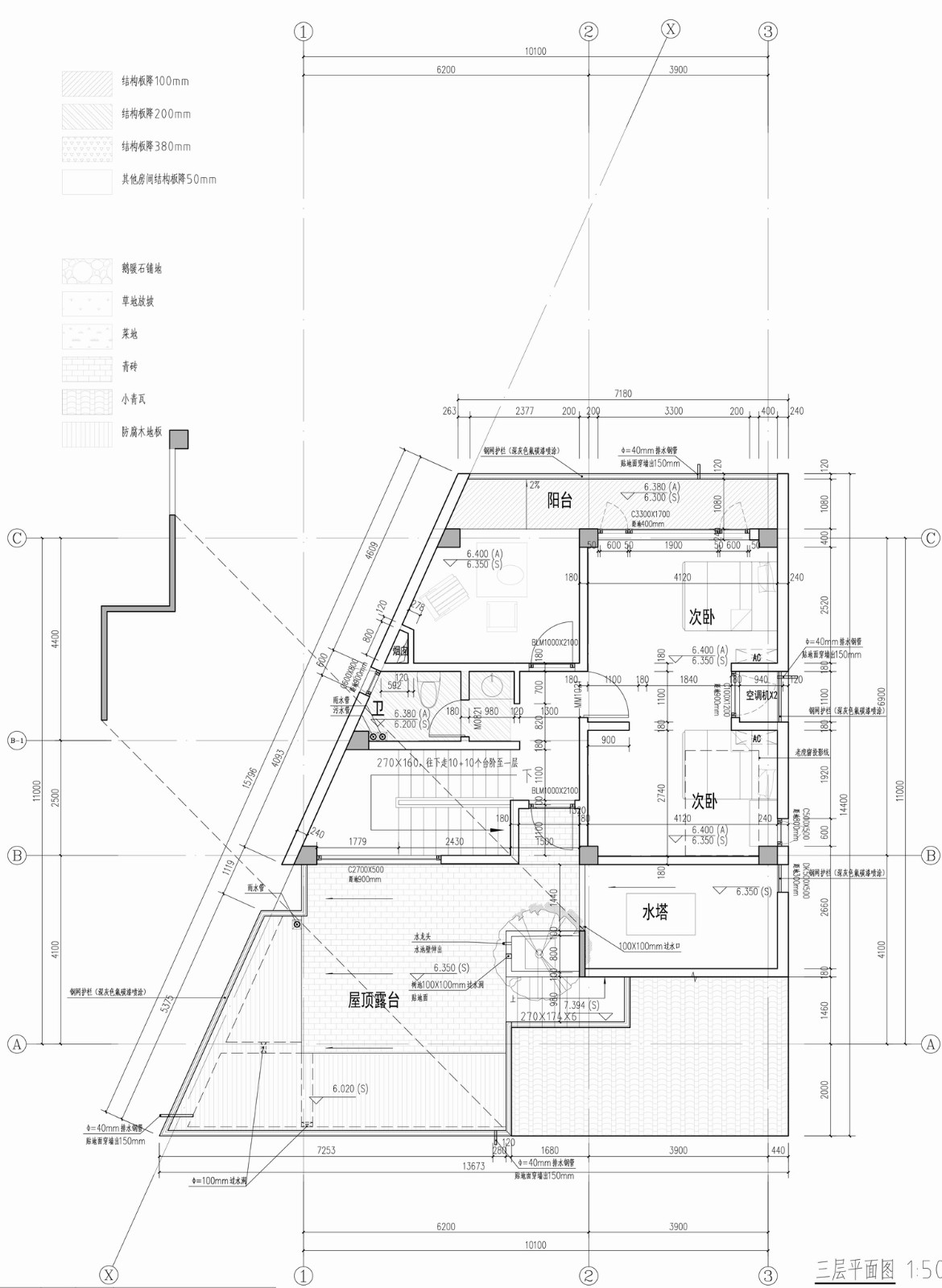
△三层平面图
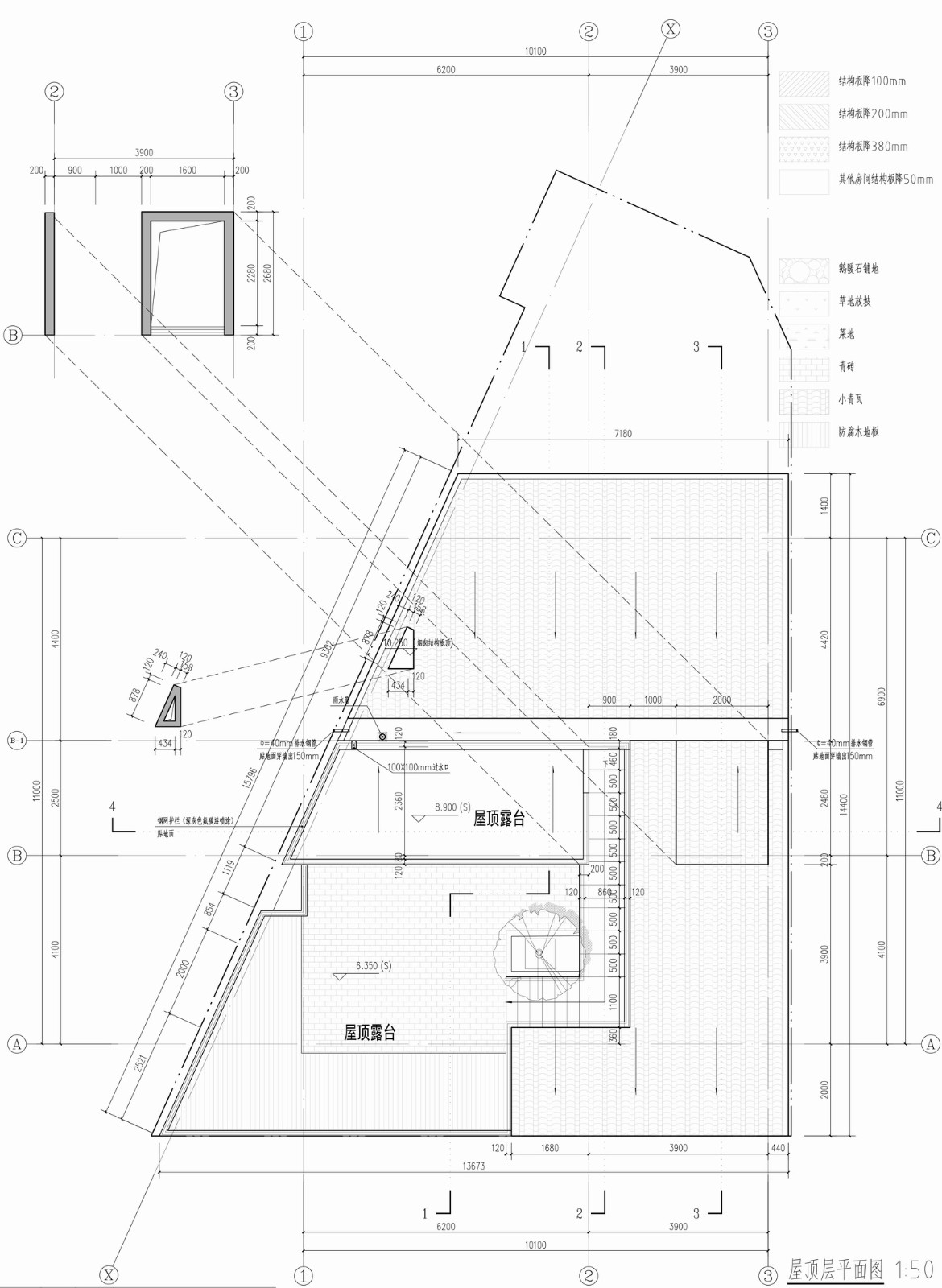
△屋顶平面图
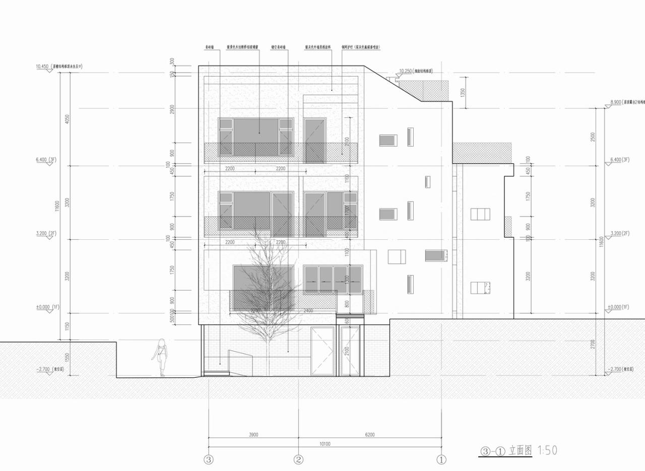
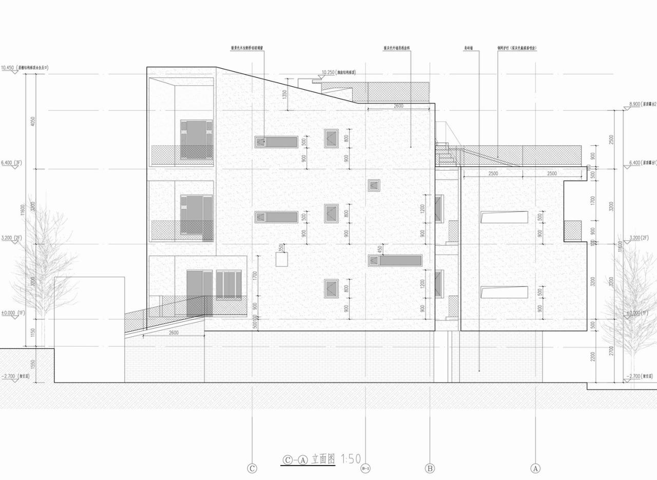
△立面图
△立面图
△立面图
△立面图
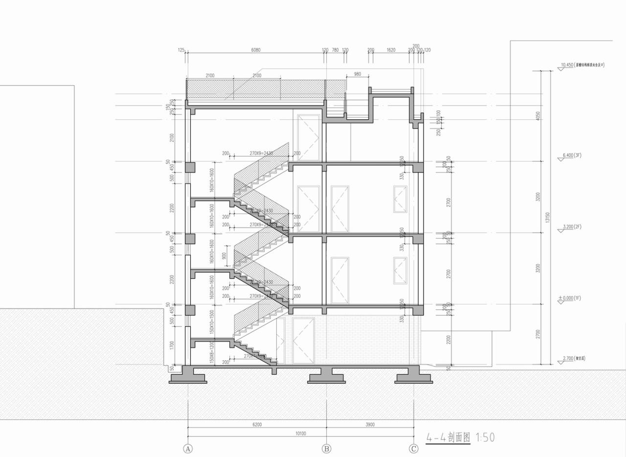
△剖面图
△剖面图
项目信息
项目名称:滨河巷21号
项目类型:私宅
建筑设计:MV建筑工作室
项目地址:中国福建省南平市延平区大横镇
建筑面积:450㎡
设计时间:2020.07-2020.09
完成年份:2022.02
主创建筑师:吴龙鑫
设计团队:吴龙鑫,陈振生,长 建,庄旭冠
摄影版权:Z.MINE,MV建筑工作室
客户:私人
材料:青砖,质感涂料,小青瓦

BIM建筑网




































