项目场地位于日本神户一个可以俯瞰神户湾的住宅区内。该地块坐落在一个朝南的斜坡上,场地的北侧则面向一个社区建设道路尽头的圆形广场。
业主希望利用场地形状来进行空间设计 —— 由巷路尽头所形成的四分之一圆。我们提议在弧形墙壁之间建立一个动态流线,以此连接室内外的楼梯和中庭。这种立体动线和由弧墙定义的空间创造了一个将空间变化和日常生活联系起来的生活空间。
长方形房间在建筑体量南侧成雁形排布,一道弧形的墙把它们与街道分隔开。整个建筑拥有一个连接多样外部空间的流线系统,比如屋檐下的区域,由墙围合成的露台,以及拥有开放视野的屋顶天台等。
项目图纸
△一层平面图
△二层平面图
△三层平面图
△屋顶平面图
△立面图
△立面图
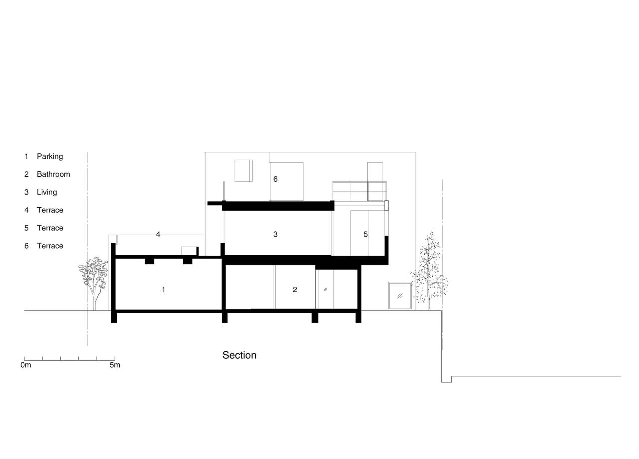
△剖面图
项目信息
建筑师: T2P Architects Office
面积 : 205 m²
项目年份 : 2022
摄影师 :Shigeo Ogawa
建筑设计 : Tatsuhito Ono, Tomonori Miura, Shikwan Yang
地点: 日本,Kōbe
微信公众号:xuebim
关注建筑行业BIM发展、研究建筑新技术,汇集建筑前沿信息!
← 微信扫一扫,关注我们+

BIM建筑网
























