法国AS建筑工作室设计的南方科技大学校园二期项目 (A地块:南科大中心; C地块:人文学院、学术交流中心)于2020年10月正式投入使用。
A地块:南科大中心由西入口步入校园,南科大中心占据视线的核心位置。穿行于各个微单元间的绿色生态走廊带动人流,形成丰富流畅的场景感,师生们可以在此散步、交流、观展、逗留、赏景。南科大中心功能涵盖餐饮中心、图书馆和综合服务楼。餐饮中心位于首层,就餐区向绿色开放,面对花园设置通高的玻璃幕墙。师生可以通过独立入口自由进入心仪的餐厅,流线互不干扰。图书馆和综合服务楼的体量舒缓上升,突破绿色走廊,将室内的视线向周边景色打开。同时两者以相同的建筑语言来组织,与餐饮中心形成一个整体。
四通八达的环状系统,将不同功能的建筑体块有效率的统一在内;绿色步行长廊穿插缝合,创造出生动的公共空间;人性化的微气候使南科大中心与校园内其他独栋建筑形成对比。师生在各功能楼之间便捷穿梭,充分享受室内外的活动,不受恶劣天气的干扰。建筑外墙仿佛被大片暖色系帷幕包裹,低调且优雅。石材、轻质陶土板和玻璃有规律的排列,引导人流顺势进入内部。
C地块:人文学院和学术交流中心建筑布局顺应山势,呈小体量群落形态,空间和造型上都传承了岭南传统园林的精髓,以现代的手法诠释岭南地域文化的内涵。人文学院和学术交流中心两组建筑一南一北、一高一低的布局,与山体和景观呼应,是校园人文景观轴线上的一个生态有机的群落。
人文学院人文学院在功能上由人文部、社科部、国学部三个学科和共享的教室、阅览室组成。三个学科分别布局在三个独立的体量内,顺应山势一字排开,并通过廊道联系。在形态上,建筑的屋檐围合出的庭院提供了宁静的学术环境,发扬岭南建筑中建筑与庭院相互交融的特质。每个学科所在的建筑内部都拥有一个独立的内庭院,学科的办公室和教室向外享有湿地和山体景观,向内拥有宁静的庭院景观。
学术交流中心学术交流中心通过内庭院将其各个功能组织起来,教授俱乐部与其在功能上具有许多内在的联系,设计也将其囊口其中。建筑的入口广场位于台地上,通过景观大台阶与东侧的校园道路联系。建筑坐北朝南,呈合院式布局在整体形态上呼应了岭南传统建筑的气质。灰砖装饰的立面,坡屋顶和挑檐是对岭南传统建筑元素的呈现,同时充满韵律感的立面设计,是对传统元素进行的一次现代演艺。
适逢南方科技大学十周年校庆,工作室借此机会希望以校园二期项目为契机为师生提供更多的启发身心的公共空间,让师生在体验当中身心放松地学习,在学习当中潜移默化地体验人生,将“游”与“学”融合。同时也希望南方科技大学的明天更加辉煌,更加璀璨。
项目图纸
△总平面图
△2C总平面图
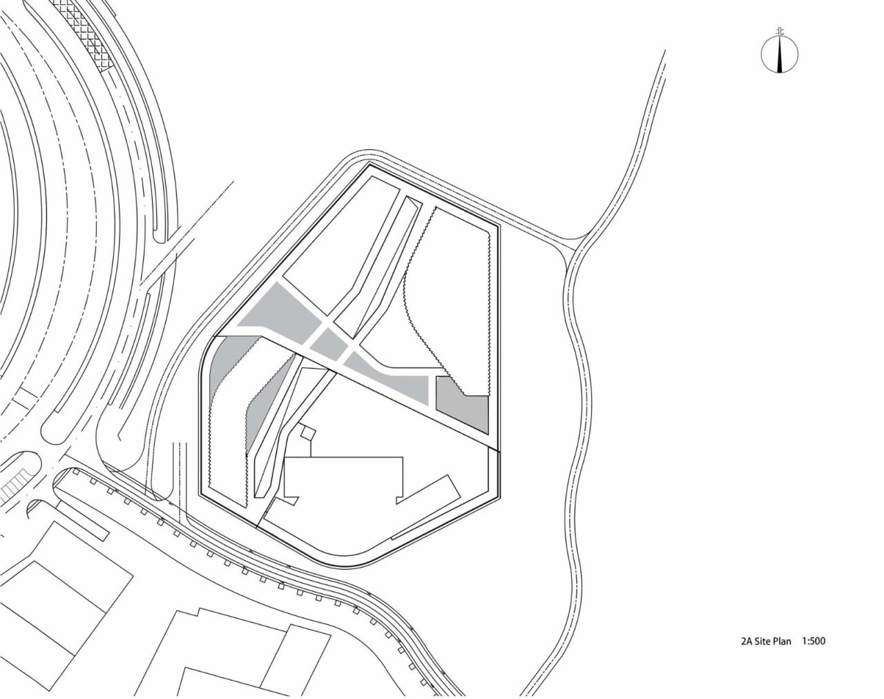
△2A总平面图
△2A一层平面图
△2A四层平面图
△2A屋顶平面图
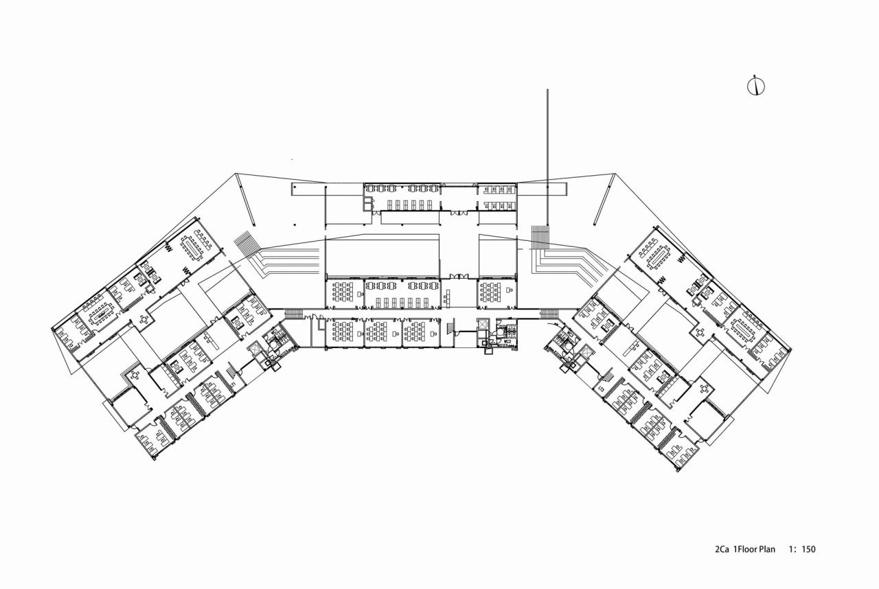
△2C一层平面图
△2C二层平面图
△2C三层平面图及屋顶平面图
△2C地下一层平面图
△2C一层平面图
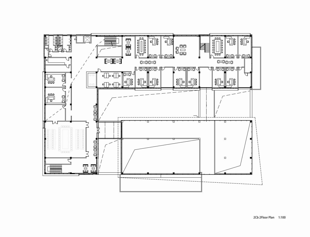
△2C二层平面图
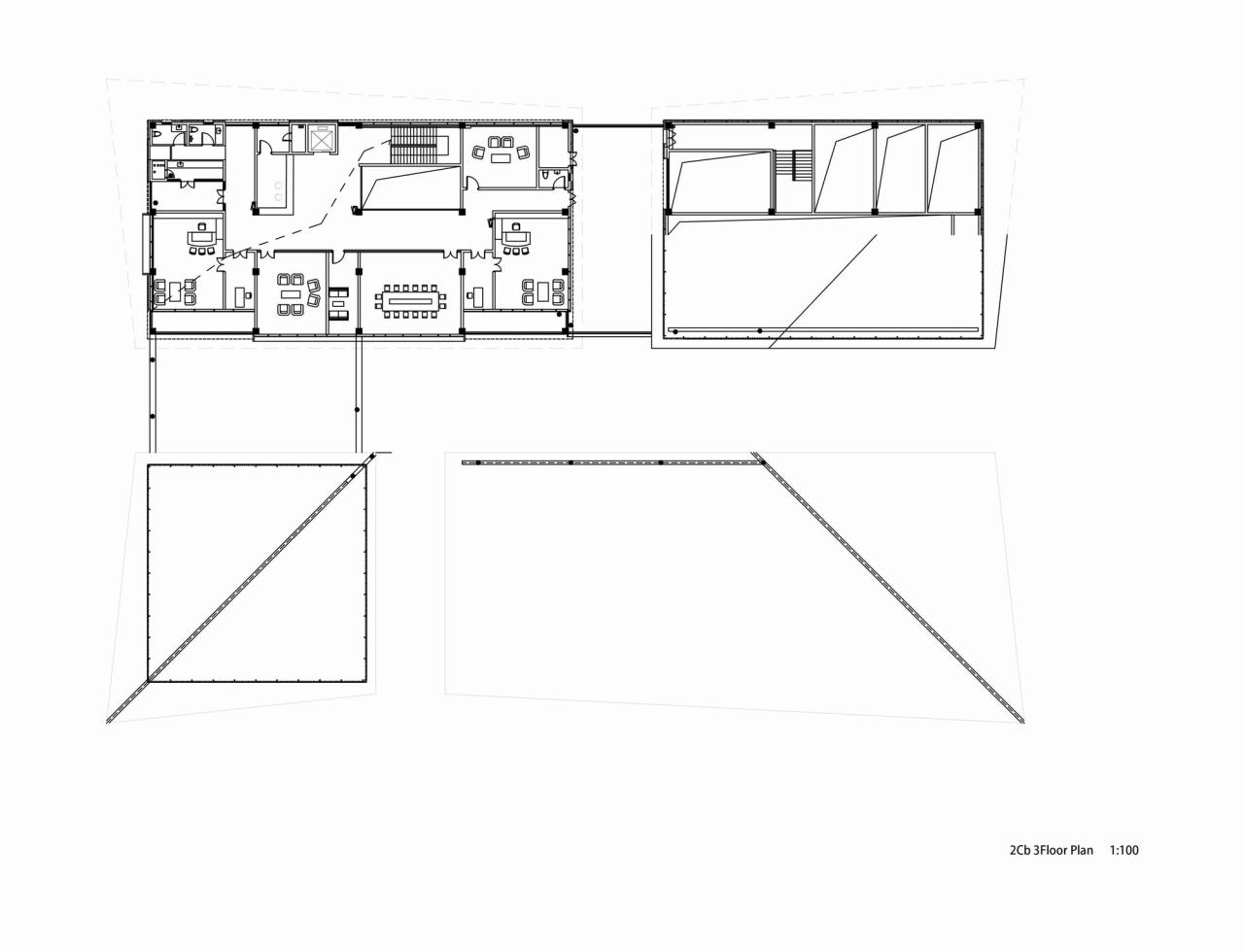
△2C三层平面图
△2C屋顶平面图
△2A立面图
△2A立面图
△立面图
△立面图
△立面图
△立面图
△剖面图
△剖面图
△节点大样图
项目信息
建筑师:法国AS建筑工作室
面积:46477 m²
项目年份:2020
摄影师:Jiuli Architectural Photography
厂家 : 墙煌 Alucosuper, 大师漆 PPG, 新嘉理 – ceramic
主创建筑师 : 应朝君、René-Henri ARNAUD, 潘莉
设计团队:Nicolas PAPIER, 李永康、莫潇溶、Andres ORRADRE, 别晓烨、李杨、张一
委托方:南方科技大学
地点 : 中国,深圳

BIM建筑网

















































