建筑温度的可感知性,在于其回应城市自然生发的每一帧。
作为三盛集团进驻徐州的首个项目三盛·中城的展示中心,基地毗邻成熟化商圈、规划居住区及配套商业街,交通通达性优越,其承担的责任不仅仅只是展示,更重要的是要具备一定的形象性、话题性、原创性,来呈现三盛“有温度”的品牌理念。
△项目区位及周边现状©纯点
△展示中心手绘构思
△展示中心实景©纯点
得益于项目所处的历史区位,设计赋予它一种既开放又具文化内涵的场所特质,进而在此基调之上演绎功能,组织叙事。
以使用者触角焕活原生场域
文化与空间的重构
设计以“研究使用人群的需求、回应城市自然生发的日常”为切入点,对人流的行为模式进行研究,衍生三角形体平面的构思,并在此基础上延伸出立体空间极致造型的刻画、重点场所的表达。
平面视角下三角形体的初衍
△规划层面回应城市人流来向©纯点
设计深度剖析场地三方人流的来向,引用“三花聚顶”的概念,就势形成三角形建筑空间,营造视觉及空间聚焦之所。在最大程度使得沿街立面享有最佳城市展示界面的基础上,优化三角形锐角区域,使其成为可远眺的观景空间,由此形成“以使用者视角进行规划”的布局形式,打造整个地块的活力中心。
△以使用者视角进行的规划分析
立体维度中三视界面的刻画
△造型层面精细刻画三视界面©纯点
设计依据规划剖析,通过将原始体块挤压、错位等,构筑回应场所的“三视面”, 同时形成大面积的绿化与观景空间,有利于空气流通、视线交流,以打造街区焦点建筑。
△形体生成过程的示意图
空间体验上形式与功能的统一
△空间层面承载日常情境©纯点
形体的错位造就可触式灰空间 错位设计不仅丰富着具有流动性的形体,也在层间形成了弧形联动的灰空间,构筑无边界的交流区域,增强与外部的互动性,承载更多美好情境。
△层中灰空间实景©纯点
△灰空间下与周边场地有效联动的示意图
由外入内的旋梯串联空间流线 旋梯由室外切入建筑主体,具有空间话题性,并成为第三维度串联平面与立体空间的洄游动线中的重要一环。同时,其采用纯白烤漆而铸就的纯粹式语言,充盈着视觉效果。
△旋梯由室外切入建筑主体实景©纯点
同时,设计将层间掏空,利用旋梯与光影串联本无关联的平面,并以使用者的视角进行空间部署和能动形式,使来访者能在这个小建筑中感受到地域文化的自信。
△旋梯与光影串联平面实景©纯点
△旋梯形成的立体体验流线©纯点
无柱设计消隐建筑体量 建筑的无柱设计给予每层用书架堆砌整面墙体的空间,营造出强烈的文化氛围感,凸显其文化展示的主要功能。同时,书架的面墙呈现出的“有层次、无重量”的视觉感受,也在一定程度上消隐了建筑体量。
△室内书墙在视觉上消隐建筑体量©纯点
△首层平面图
第五立面汇聚中庭之光 屋顶设置“中间垫高 四周微低”的釉点玻璃采光顶,不仅成为透亮中庭的光束之源,也前瞻性地解决天窗积灰、积水问题。
△第五立面透亮中庭实景©纯点
△中庭采光剖面图
△光束透过采光顶洒向室内中庭实景©上海联思建筑设计
以精细控制实现高还原度落地
材料与形态的新生
团队在深度剖析实现设计效果的不同材质后,以超白玻璃的植入,实现悬浮之态的底层架空;以模数化幻彩穿孔铝板与LED灯的结合,演绎出主体幕墙白天与黑夜的不同光影变幻;以光电幕墙在展示窗口的运用,回应城市日常的每一帧。
超白玻营造悬浮之态
△通透并悬浮的主视界面©纯点
设计一层层高达6.9m,并采用超白玻璃,与水景交融,构成建筑的悬浮之态。
△剖面节点
幻彩穿孔铝板演绎韵律变幻
△点亮场域的星点幕墙©纯点
主体幕墙采用幻彩穿孔铝板,大层面上,运用渐变设计,使得上下幕墙分别呈现上下至中、由下至上穿孔越来越大的韵律,构筑整体视觉效果的光影变幻,回应人视视线丰富性的需求。
△铝板穿孔韵律感渐变近景©纯点
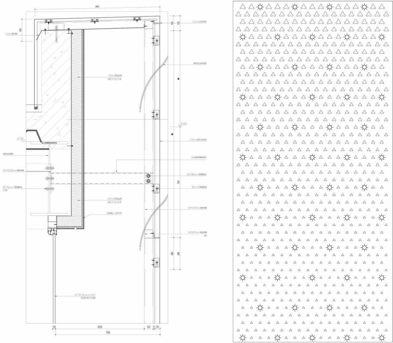
小层面上,铝板的穿孔采用建筑基本平面形状的模数化设计,实现元素运用上的原创与统一,构筑出强烈的造型标识感。同时,幕墙内侧植入的间时无规律闪动的LED灯,为幕墙增加星点,注入温度。
△LED灯闪动效果图
△穿孔铝板剖面节点及其与LED灯模数化结合的节点图
光电幕墙昭示文化之窗
△主展示橱窗的光电幕墙©纯点
因就形体造型而成就的文化之窗,在面向十字路口的方向采用光电幕墙,回应城市日常自然生发的每一帧。
△光电幕墙节点
延展肌理 保有温情
项目作为呈现徐州文化风貌的物质载体,不仅要在场所之下叙述好当下的故事,更应延续着历史的肌理找到古今共鸣,也要在生命历史长河的维度内,成为保有温情的未来记忆。
项目信息
建筑类型:展示中心
建筑面积:2 380平方米
开发业主:三盛集团
建筑设计:UA尤安设计
地点:中国,江苏,徐州

BIM建筑网





























