本项目位于湖南省长沙市,开福北青竹湖板块。项目地块整体沿太阳山脚分布,呈不规整的被包围状态。紧邻湘郡长德实验学校&太阳山森林公园,生态资源优渥。
以山为形,以水为意。引领项目新中式建筑风格的定位,展示中心更设计了南北庭院,北庭园为开放式景观跌水,南庭园为生活内庭院,与自然相生相融,天地入我院。
整体规划布局在最大化因地制宜顺应场地的基础上,结合中国传统文化中园林式布局,通过“造园”的建筑手法形成丰富的空间关系与建筑形态,动静相宜,移步异景。
结合现状用地条件、权属,规划形成“一轴二园”的总体布局结构。
“一轴”指东西向贯穿的连续商业流线;“二园”指面向南北两侧不同景观资源,通过多重视线分析合理布置的两处开放式院落。
建筑整体造型立意为“立体山水”,层峦叠嶂,碧水如镜。建筑连续的坡屋面有效地营造了连续的外廊空间,成为提供静坐品茗、凭栏眺望的场所,也是建筑与环境过渡、融合、室内外情景交替的空间。
商业外墙材料主要为玻璃、玻璃幕墙和深香槟金铝板、石材等现代材料。办公玻璃幕墙系统通过控制玻璃透明度和反射率的方式来体现幕墙之间不同的层次,另外通过玻璃和铝板体系的组合对比来突出体量之间不同的线条。
项目图纸
△负一层平面图
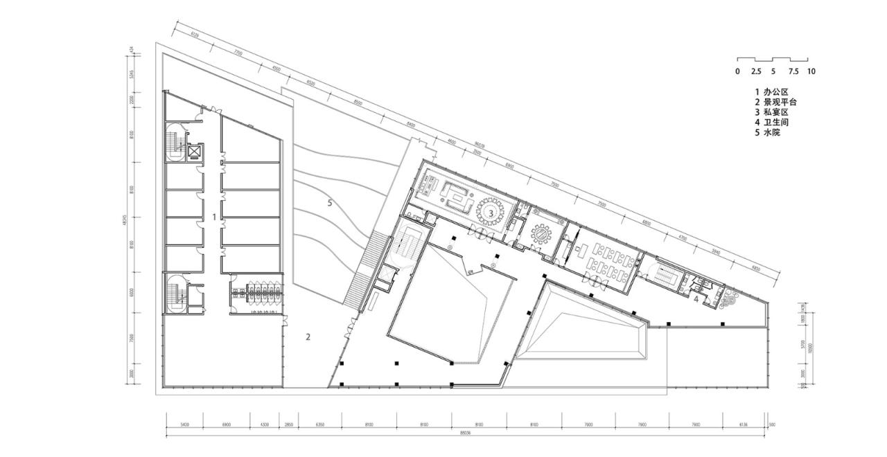
△一层平面图
△二层平面图
△北立面图
△东立面图
△南立面图
△西立面图
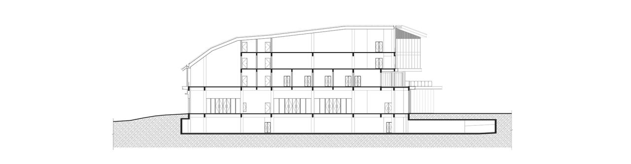
△剖面图
△剖面图
△剖面图
△剖面图
△剖面图
△剖面图
△流线分析图
△形态生成图
△材料示意图
项目信息
项目名称:长沙麓隐青竹湖展示中心
项目类型:展示中心
项目具体地址:中国·湖南·长沙
占地面积:9250平方米
建筑面积:7806平方米"
设计时间:2021年3月
完成时间:2022年5月"
设计方:PTA上海柏涛
主创建筑师:陈凌,梅宇峰,翁金鑫
设计团队:张晶,杨毫丰,吴浩东,于静,赵禹,郅新凯
业主:湖南天景名园置业有限责任公司
景观设计:上海魏玛景观规划设计有限公司
室内设计:深圳市弓屋室内设计有限公司,长沙市美意堂装饰设计工程有限公司
照明设计:湖南正哲光电科技有限公司
施工图:湖南悍马建设工程有限公司"
摄影师:李逸
主要材料:玻璃、玻璃幕墙和深香槟金铝板、石材

BIM建筑网












































