城镇历史文化处于不断演化之中,
历史建筑的保护与活化需要更俗立新,
结合新时代精神、新业态,
才能成为焕发活力、可持续的城镇空间。
南通市海门区的常乐镇,是清末民初著名的实业家、政治家、教育家张謇(1853-1926)的故里。因常乐老街改造的文旅项目中南·张謇故里小镇而得名“謇里小镇”。goa大象设计承担了整座小镇的规划和设计,其中謇里小镇展览馆是项目核心区常乐老街的门户所在。
常乐老街成于乾隆年间,青石板路东西延伸300多米,小镇展览馆场地位于老街东端起始点,北侧毗邻的常乐镇供销社是一座有着百年历史的木构保护建筑。新展馆如何与小体量的历史保护建筑和谐共生?文旅功能如何融合当地文脉特征,在唤起文化归属感的同时也让謇公“更改旧俗,树立新风”的精神在今日延续?设计由此展开。
“四汀宅沟”的启发:延续传统民居策略,建筑与自然相互融合
謇里小镇展览馆依水而建,借鉴长江入海口北岸崇启海地区(崇明、海门、启东)特色民居原型“四汀宅沟”:崇启海地区位于长江入海口,地势低洼、积沙成陆,劳动人民从宅地周边挖沟取土,筑高基地,形成环宅沟渠形态;宅沟常设于南侧,若以四周环绕,则被称为“四汀宅沟”。
△ 崇启海地区“四汀宅沟”空间形态示意图
宅沟形态体现了传统农耕文化的智慧:水源可供日常饮用、洗涤、灌溉、消防,又是一道“护宅河”,宅前以小桥为径。时至今日,沙洲地貌已随着现代化建设而变迁,但环宅水系和小桥,仍普遍延续在当地的乡村民居的形态中,是当地风土的宝贵印记。
△东立面实景
建筑师延续了“宅沟”形态的策略,保留场地原始水系,在建筑南、东两侧设计新桥,建立场地与对岸空间的联系;在建筑周围以绿植和水景营造汀洲特色风貌,遵循木构老建筑的尺度,延续当地的人文风土和空间肌理。
△ 西立面实景
展馆整体为钢结构,门厅和序厅内柱体消隐于幕墙的竖挺中,展厅内钢柱与墙体结合巧妙,内部空间最终以无柱的形式呈现。建筑师在核心功能空间的交汇处置入窄院,将阳光、园景充分引入内部。玻璃与墙体虚实相间,使建筑内外交融,光影纯净而变化丰富。
△序厅及内院实景
轻盈的屋顶:以新语言解构传统符号、缝合肌理
屋面最高点达15m,建筑师尝试以新的建筑语言回应历史,将传统的屋顶形式解构为四片单坡双曲屋面。低矮的檐口回应老街既存建筑尺度,屋顶向中心汇聚,为展览功能创造空间。化整为零的策略既巧妙地化解了大体量展馆与小体量历史保护建筑的矛盾,又形成了具有当代精神的标志性文化形象。
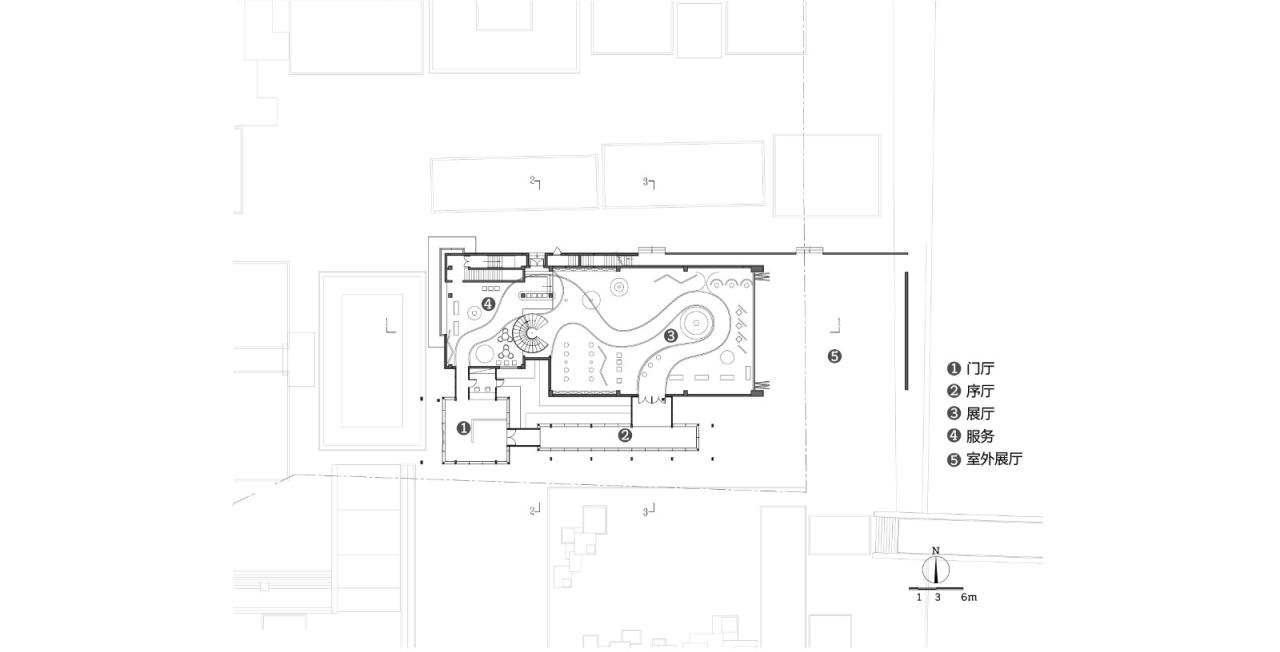
△功能整合于非对称的平面布局
△化整为零的形态生成策略
△计概念模型
屋面由中心向四周延伸,解构的屋顶分别对应不同的功能分区:门厅、序厅、展厅和服务,构成不对称的风车状微型聚落,在古典建筑对称性构图的基础上增加现代建筑非对称的均衡感与动态性特征。
建筑北侧做双层屋檐处理,分别呼应北侧老供销社商店木构建筑的两层屋檐,与遗存的老建筑取得体量尺度上的协调。
△北侧双层屋檐,与老建筑的两层屋檐分别呼应
开阔的坡顶从东侧向西侧逐步抬升,展厅内纯净白色天花则呈阶梯状,顺势层层递进,形成强烈的秩序感,结合序列性参观流线,引导人们参观展品。室内的展陈与空间形态完美配合,浑然一体,呈现艺术之美。
△a+b展厅室内实景
双曲面作为系统: 构造枕形空腔,结构、设备整合其中
屋面的选材上,建筑师重点关注环境可持续表现。结合海门当地的气候特征,选用了绿色环保的钛锌板。这种轻质的屋顶材料具有天然的抗腐蚀性,适应海门湿润的亚热带季风气候。石墨灰色搭接型曲面钛锌板金属屋面与老街区域内传统的灰瓦白墙形成呼应。随着时间的推移,钛锌板逐渐形成的致密钝化保护层,也会为建筑增添独特的魅力。
屋面找形采用了双曲面数形逻辑,便于有效地控制施工。在屋面中,横向与纵向的梁皆为正圆弧,各自弧度、形状完全相同。四片双曲面屋顶采用三维建模设计,控制球面施工精确定位。
△参数化工具辅助研究及定位屋顶结构
为了塑造轻盈感,建筑师将屋面内部构造设计为“气枕”状空腔:整体造型中间厚边缘薄,500mm厚的钢梁结构隐藏在构造内部,檐口收薄。从各个角度看,屋檐都是一条纤细优雅的弧线。
△屋顶构造详图
吊顶材料采用了天然木皮树脂板,利用参数化软件进行模块划分。曲线屋面强化了开放的空间边界,轻盈优美。为了适应多功能场景,让室内空间与室外场地景观更好结合,展厅15m宽折叠门可以完全打开。
吊顶材料采用了天然木皮树脂板,利用参数化软件进行模块划分。曲线屋面强化了开放的空间边界,轻盈优美。为了适应多功能场景,让室内空间与室外场地景观更好结合,展厅15m宽折叠门可以完全打开。
△a+b展厅幕墙可开启,实现室内外展陈空间融合
城镇历史文化处于不断演化之中,在社会快速发展的当下,历史建筑的保护与活化,需要接轨新业态,创造新话题,激发新活力,才能真正再度成为有温度、可持续的城镇空间。謇里小镇老街更新及展览馆设计,是一次历史保护语境下的积极探索,建筑师运用当代材料和设计手法,延续謇公“更改旧俗,树立新风”的开创精神,为当地创造了一座新的文化交流中心,为南通海门的城镇发展注入了新的活力。
项目图纸
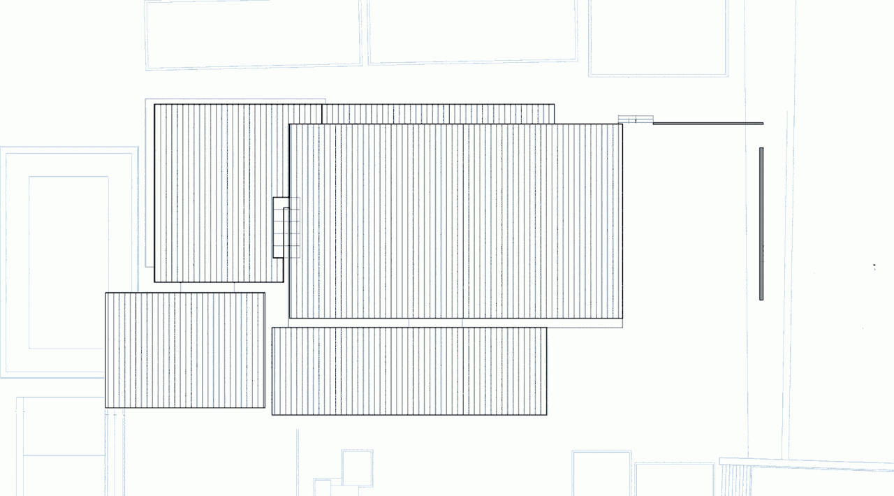
△一层平面图
△二层平面图
△立面图
△立面图
△剖面图
项目信息
项目名称:謇里小镇展览馆
设计单位:goa大象设计
所在地:江苏省南通市
设计/竣工:2018-2021
建筑面积:约952㎡
图片版权:此间建筑摄影、goa大象设计

BIM建筑网

































